Sandėliukas Vilniuje, Gilužio g. 57 R4, pradinė kaina 2640 EUR, vykstanti antsto...
Parduodamas pirmosios pakartotinės antstolių varžytynės sandėliukas Vilniaus mieste, esantis Gilužio gatvėje 57-R4. Šis turtas parduodamas 1/1 dalimi ...
Nekilnojamojo turto aukcionai visoje Lietuvoje.
Parduodamas pirmosios pakartotinės antstolių varžytynės sandėliukas Vilniaus mieste, esantis Gilužio gatvėje 57-R4. Šis turtas parduodamas 1/1 dalimi ...
Parduodama 1/16 dalis žemės sklypo Panevėžio rajono savivaldybėje, Vėjeliškių kaime. Šio daikto pradinė kaina aukcione yra 417 EUR. Tai yra puiki inve...
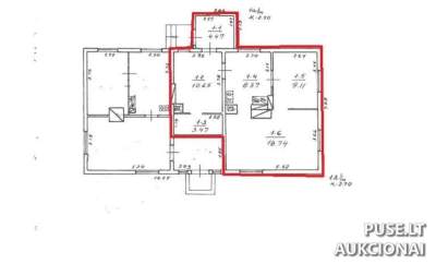
Parduodamos avarinės būklės gamybinės patalpos Vilniaus rajono savivaldybėje, Kalvelių kaime, adresu Žaliašilio g. 1. Tai yra nemokumo administratorių...
Parduodamas kambarys Kauno mieste, Raudondvario pl. 174-31, unikalus numeris 1996-1026-7019:0024, kurio bendras plotas yra 16,11 kv. m. Prie parduodam...
Parduodamas 1/1 dalies nuosavybės teisės butas su rūsiu Naujosios Akmenės mieste, Respublikos gatvėje 5-20, kurio bendras plotas yra 44,32 kv. m. Šis ...
Parduodamas 1/1 dalies butas su rūsiu Mažeikių miesto centre, Taikos gatvėje 14-22, Mažeikių rajono savivaldybėje. Šis pirminio tipo NT objektas (ID 5...
Parduodamas 42,95 kv. m bendro ploto butas Šakių rajono savivaldybėje, Kudirkos Naumiesčio mieste, Dariaus ir Girėno gatvėje 33-1, per Turto banko auk...
Parduodamas nekilnojamasis turtas aukcione - 1/1 dalis buto Klaipėdos mieste, adresu Viršutinė g. 28-7. Tai yra 32,15 kvadratinių metrų ploto, 1926 me...
Parduodama 5/12 žemės sklypo dalis Antstolių varžytynėse Kupiškio rajono savivaldybėje, Kuokiškio kaimo vietovėje. Ši antrosios pakartotinės pardavimo...
Parduodamas 0,1056 ha ploto valstybinės žemės sklypas Šiaulių r. savivaldybėje, Aukštelkės kaime, Spindulio g. 50. Pagrindinė žemės sklypo naudojimo p...
Parduodamas žemės sklypas Panevėžio rajono savivaldybėje, Paežerio I kaime, Ramunio gatvėje 30, antstolių varžytynių būdu. Tai yra pirmosios kategorij...
Lietuvos savivaldybių pakartotinis aukcionas siūlo įsigyti 210,89 kv. m ploto pastatą - katilinę, esančią adresu Dvaro g. 8A, Paežerių k., Šeimenos se...
Parduodamas 1 kambario gyvenamosios paskirties butas Vilkaviškio rajono savivaldybėje, Kybartų mieste, Vištyčio gatvėje 24-10, kurio bendras plotas si...
Viešo konkurso būdu Alytaus miesto savivaldybės administracija teikia nuomoti 429,61 kv. m pastatą - sandėlį, esantį Alytuje, Ulonų g. 8A. Šis nekilno...
Alytaus miesto savivaldybės administracija skelbia viešą nuomos konkursą ilgalaikei 21,69 kv. m ploto pastato, žinomo kaip Gelbėjimo postas, nuomai Al...
Išparduodamas žemės sklypas antstolijų varžytynėse Kėdainių rajono savivaldybėje, Plinkaigalio kaime, adresu Jaunimo g. 2. Šis nekilnojamasis turtas p...
Parduodamas gyvenamosios paskirties butas Telšių rajono savivaldybėje, Telšių mieste, Kalno gatvėje 17-7. Šis nekilnojamasis turtas yra parduodamas pe...
Parduodamas 1/1 dalies valstybinės žemės sklypas Rietavo savivaldybėje, Tverų miestelyje, Jono Jakšto g. 9A. Tai puiki investavimo galimybė asmenims, ...
Parduodamas 2 kambarių butas su rūsiu Joniškio rajono savivaldybėje, Minčaičių kaime, Berželio gatvėje 26-1, antrųjų varžytynių būdu, kurio pradinė ka...
Parduodamos 74/400 dalys žemės sklypo Šilalės rajono savivaldybėje, Šakių kaime, kurio bendras plotas siekia 1,0748 hektaro. Šios turto dalies pradinė...
Parduodama 557/8000 dalis žemės ūkio paskirties žemės sklype Šilalės rajono savivaldybėje, Plunksnių kaime. Ši dalis yra išvaržoma Antstolių varžytynė...
Parduodamas antrosios pakartotinės aukciono procedūros būdu žemės ūkio paskirties žemės sklypas, esantis Klaipėdos rajono savivaldybėje, Jucaičių kaim...
Parduodamas 3.4000 ha ploto žemės sklypas Kervių kaime, Skuodo rajono savivaldybėje, Kervių kaimo vietovėje, kurio pagrindinė naudojimo paskirtis nuro...
Parduodamas 1/1 dalies administracinis pastatas Vilniaus miesto savivaldybėje, adresu Vasaros g. 3. Tai unikali proga įsigyti Nekilnojamąjį turtą Viln...
Parduodama 527/2908 dalis žemės sklypo, esančio Plungės rajono savivaldybėje, Plungės mieste, Vingio gatvėje 5. Šis pardavimas vyksta kaip antstolių v...
Parduodamas 0,9600 hektaro žemės ūkio paskirties žemės sklypas Trakų rajono savivaldybėje, Rūdiškių seniūnijoje, Dergionių kaime. Šis nekilnojamasis t...
Parduodamas pastatų kompleksas Kupiškio mieste, P. Matulionio g. 18A, kurį sudaro muziejus, kiemo rūsys ir ūkinis pastatas, taip pat dalis žemės sklyp...
Parduodamas 0.2488 hektaro ploto žemės sklypas Vilniaus rajono savivaldybėje, Murlinės kaimo vietovėje, adresu Bijūnų g. 40. Šis sklypas yra parduodam...
Parduodamas gyvenamasis namas, ūkiniai pastatai ir 0.2818 ha žemės sklypas Marijampolės savivaldybėje, Riečių kaime, Žuvinto gatvėje 41, už pradinę 24...
Parduodama 1/2 valstybinės žemės sklypo dalis Plungės rajono savivaldybėje, Babrungo kaimo vietoje, vykstančių antstolių varžytynių būdu. Šis sklypas ...
Nekilnojamojo turto aukcionai – tai galimybė įsigyti butą, namą, žemės sklypą ar komercinį objektą už rinkos kainą arba net pigiau. Mūsų platformoje rasite daug aktyvių NT aukcionų visoje Lietuvoje, kuriuose parduodami įvairūs nekilnojamojo turto objektai.
Populiariausios kategorijos: gyvenamieji butai Vilniuje, Kaune, Klaipėdoje, gyvenamieji namai su sklypu, žemės sklypai sodyboms, komerciniai pastatai, administracinės patalpos, garažai. Dauguma objektų parduodami per Turto Banką, bankus ir antstolius po negrąžintų hipotekos paskolų.
Kaip dalyvauti NT aukcione? Pasirinkite dominantį objektą, užsiregistruokite aukcione sumokėję užstatą (paprastai 10% nuo pradinės kainos), ir dalyvaukite varžytinėse. Išsamios procedūros aprašytos kiekvieno aukciono puslapyje. Sėkmės įsigyjant būstą!