Vilniuje: prekybos paviljonas Šventaragio (Odminių) skvere — 14 m², pradinė kaina 3430 EUR
📝 Aprašymas
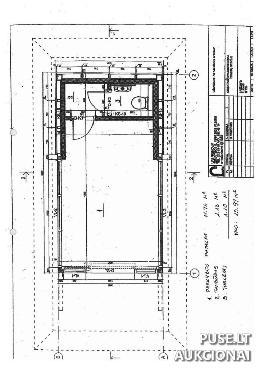
Vilniaus miesto savivaldybė nuomoja 13,97 m² (apytiksliai 14 m²) prekybos paviljoną, esantį Šventaragio (Odminių) skvere, 5 metų nuomos terminui prekybos ir paslaugų veiklai. Pradinė kaina už visą plotą: 3430 EUR. Pradinis įnašas: 10 290 EUR. PVM neskaičiuojamas. Registracijos mokestis: 20 EUR.
Objektui taikomos konkretūs naudojimo ir priežiūros reikalavimai: nuomininkas privalo užtikrinti, kad šalia paviljono būtų laikomasi Vilniaus miesto savivaldybės tarybos 2011-11-23 sprendimu Nr. 1-326 patvirtintų Tvarkymo ir švaros taisyklių; prekybai ir paslaugoms naudojami įrenginiai turi būti tvarkingi (valomi, remontuojami, dažomi) ir estetiški; visi tipinio paviljono funkcionavimui būtini inžineriniai įrenginiai (vėsinimo, šildymo, elektros paskirstymo, ryšių ir pan.) turi būti integruoti arba paslėpti paviljono konstrukcijoje arba viduje; nuomininkas privalo reguliariai ir tinkamai šalinti grafičius nuo paviljono; nuo pagrindinių durų ne toliau kaip 3 metrai turi būti įrengta, valoma ir prižiūrima šiukšlių dėžė su pelenine; prekiaujant maistu vienkartiniuose induose prieigose ne toliau kaip 3 metrai turi būti ne mažesnė kaip 120 litrų talpos šiukšlių dėžė.
Konkurso dalyvis privalo pateikti reikiamus dokumentus registracijai - dokumentų sąrašas ir papildoma informacija skelbiama organizatoriaus tinklalapyje. Nuomos sutarties projektas prieinamas viešai.
Objektui taikomos konkretūs naudojimo ir priežiūros reikalavimai: nuomininkas privalo užtikrinti, kad šalia paviljono būtų laikomasi Vilniaus miesto savivaldybės tarybos 2011-11-23 sprendimu Nr. 1-326 patvirtintų Tvarkymo ir švaros taisyklių; prekybai ir paslaugoms naudojami įrenginiai turi būti tvarkingi (valomi, remontuojami, dažomi) ir estetiški; visi tipinio paviljono funkcionavimui būtini inžineriniai įrenginiai (vėsinimo, šildymo, elektros paskirstymo, ryšių ir pan.) turi būti integruoti arba paslėpti paviljono konstrukcijoje arba viduje; nuomininkas privalo reguliariai ir tinkamai šalinti grafičius nuo paviljono; nuo pagrindinių durų ne toliau kaip 3 metrai turi būti įrengta, valoma ir prižiūrima šiukšlių dėžė su pelenine; prekiaujant maistu vienkartiniuose induose prieigose ne toliau kaip 3 metrai turi būti ne mažesnė kaip 120 litrų talpos šiukšlių dėžė.
Konkurso dalyvis privalo pateikti reikiamus dokumentus registracijai - dokumentų sąrašas ir papildoma informacija skelbiama organizatoriaus tinklalapyje. Nuomos sutarties projektas prieinamas viešai.
❓ Dažnai užduodami klausimai
Kokia paviljono vieta ir plotas?
Paviljonas yra Šventaragio (Odminių) skvere, Vilniuje. Naudingas plotas apie 13,97 m² (suapvalinus 14 m²).
Kokia pradinė kaina ir pradinis įnašas?
Pradinė kaina už visą paviljoną 3430 EUR. Pradinis įnašas 10 290 EUR.
Koks nuomos terminas ir kam galima naudoti patalpą?
Nuoma siūloma 5 metams. Leista prekybos ir paslaugų veikla, su sąlyga laikytis nustatytų priežiūros ir įrengimų reikalavimų.
Kokios registracijos datos ir mokestis?
Registracija vyksta nuo 2025-11-17 00:00 iki 2025-11-18 23:59. Registracijos mokestis 20 EUR.
Kada vyksta aukcionas?
Aukcionas prasideda 2025-11-20 09:00 ir baigiasi 2025-11-21 13:59:59.
Kokios pagrindinės nuomos sąlygos paviljonui?
Nuomininkas privalo užtikrinti paviljono estetinę išvaizdą ir įrenginių tvarką, integruoti inžinerinius įrenginius į paviljono konstrukciją arba vidų, reguliariai šalinti grafičius, ir užtikrinti šiukšlių tvarkymą (šiukšlių dėžė su pelenine ne toliau kaip 3 m; prekybai maistu — ne mažiau kaip 120 l talpos šiukšlių dėžė per 3 m). Daugiau sutarties sąlygų nurodyta nuomos sutarties projekte.