Prekybos paviljonas Vilniuje, Šventaragio (Odminių) skvere, 5 metų nuomai, pradinė kaina 3430 Eur
📝 Aprašymas
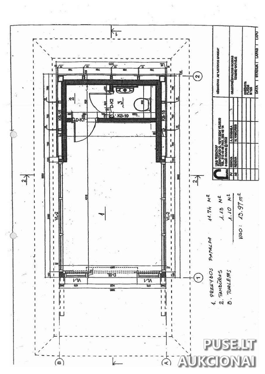
Vilniaus miesto savivaldybės administracija skelbia neterminuotą nuomos konkursą dėl 13,97 kv. m prekybos paviljono, esančio strateginėje vietoje – Šventaragio (Odminių) skvere, Vilniuje. Nuomos terminas nustatytas 5 metams, skirtas prekybos ir paslaugų veiklai.
Konkurso pradinė nuomos kaina yra 3430 Eur už visą plotą (metinė? / visam laikotarpiui? Originaliame tekste nurodyta kaip „KAINA (pradinė): 0 EUR“, bet aprašyme – „Pradinė kaina 3430 Eur už visą plotą“. Naudoju aprašyme nurodytą 3430 Eur kaip realią pradinę nuomos kainą, o 0 EUR kaina skiltyje KAINOS IR DATOS yra tikriausiai technine klaida, kurią turime ignoruoti pagal nurodytą aprašymą apie 3430 Eur).
Registracijos mokestis dalyviams siekia 20 EUR. Konkurso laimėtojas privalo sumokėti 10290 Eur dydžio pradinį įnašą (atitinkantį 3 mėnesių nuomos kainą), kuris lieka nuomotojui kaip sutarties įvykdymo užtikrinimas ir grąžinamas pasibaigus nuomos terminui, jei sąlygos vykdomos tinkamai.
Nuomojant šį paviljoną taikomi griežti išlaikymo ir priežiūros reikalavimai. Nuomininkas privalo užtikrinti, kad šalia paviljono būtų laikomasi Vilniaus miesto savivaldybės tvarkymo ir švaros taisyklių, o naudojami įrenginiai būtų tvarkingi, estetiški, valomi ir remontuojami. Visi inžineriniai laidojimai (vėsinimas, šildymas, elektra) turi būti integruoti arba paslėpti paviljono konstrukcijoje ar viduje.
Taip pat privaloma reguliariai valyti grafičius. Jei vykdoma maisto prekyba, prieigose (ne toliau 3 metrų nuo pagrindinių durų) privaloma pastatyti, valyti ir prižiūrėti ne mažesnę kaip 120 litrų talpos šiukšliadėžę.
Konkurso pradinė nuomos kaina yra 3430 Eur už visą plotą (metinė? / visam laikotarpiui? Originaliame tekste nurodyta kaip „KAINA (pradinė): 0 EUR“, bet aprašyme – „Pradinė kaina 3430 Eur už visą plotą“. Naudoju aprašyme nurodytą 3430 Eur kaip realią pradinę nuomos kainą, o 0 EUR kaina skiltyje KAINOS IR DATOS yra tikriausiai technine klaida, kurią turime ignoruoti pagal nurodytą aprašymą apie 3430 Eur).
Registracijos mokestis dalyviams siekia 20 EUR. Konkurso laimėtojas privalo sumokėti 10290 Eur dydžio pradinį įnašą (atitinkantį 3 mėnesių nuomos kainą), kuris lieka nuomotojui kaip sutarties įvykdymo užtikrinimas ir grąžinamas pasibaigus nuomos terminui, jei sąlygos vykdomos tinkamai.
Nuomojant šį paviljoną taikomi griežti išlaikymo ir priežiūros reikalavimai. Nuomininkas privalo užtikrinti, kad šalia paviljono būtų laikomasi Vilniaus miesto savivaldybės tvarkymo ir švaros taisyklių, o naudojami įrenginiai būtų tvarkingi, estetiški, valomi ir remontuojami. Visi inžineriniai laidojimai (vėsinimas, šildymas, elektra) turi būti integruoti arba paslėpti paviljono konstrukcijoje ar viduje.
Taip pat privaloma reguliariai valyti grafičius. Jei vykdoma maisto prekyba, prieigose (ne toliau 3 metrų nuo pagrindinių durų) privaloma pastatyti, valyti ir prižiūrėti ne mažesnę kaip 120 litrų talpos šiukšliadėžę.
❓ Dažnai užduodami klausimai
Kokia yra prekybos paviljono nuomos pradinė kaina ir nuomos terminas?
Pradinė nuomos kaina yra 3430 Eur už visą plotą. Nuomos sutartis sudaroma 5 metams.
Kada vyksta nuomos e. konkursas?
Aukcionas prasideda 2025-12-18 09:00:00 ir baigiasi 2025-12-19 13:59:59. Registracija vyksta nuo 2025-12-15 00:00:00 iki 2025-12-16 23:59:59.
Koks yra privalomas pradinio įnašo dydis ir kam jis skirtas?
Privalomas pradinio įnašo dydis yra 10290 Eur (lygus 3 mėnesių nuompinigių dydžiui). Ši suma lieka nuomotojui kaip užtikrinimas ir grąžinama, jei nuomininkas tinkamai vykdo sutarties sąlygas.
Kokios yra pagrindinės sąlygos paviljono priežiūrai?
Nuomininkas privalo užtikrinti tvarką pagal Vilniaus miesto savivaldybės taisykles, valyti grafičius ir įrengti šiukšliadėžę su pelenine ne toliau 3 metrų nuo durų, o maisto prekybos atveju - didesnę šiukšliadėžę prieigose.
Kada galiu apžiūrėti nuomojamą komercinį turtą?
Patalpų apžiūra yra organizuojama darbo dienomis nuo 2025 m. gruodžio 1 d. iki 2025 m. gruodžio 12 d., nuo 9 iki 15 val., registruojantis telefonu.
Koks yra registracijos šiam konkursui mokestis?
Registracijos mokestis dalyviams yra 20 EUR.