📝 Aprašymas
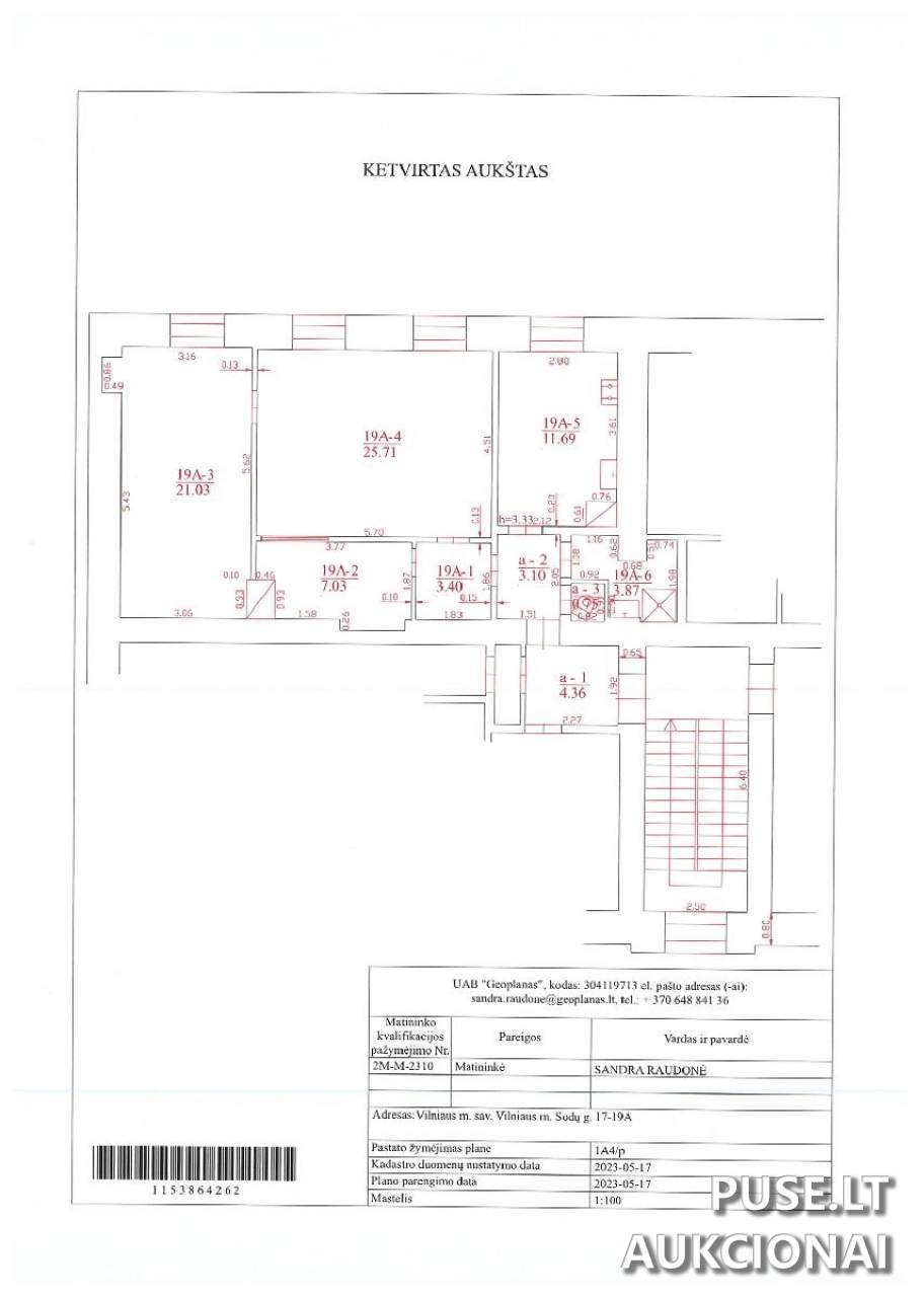
Parduodamas 1/1 dalies butas Vilniuje, Sodų g. 17-19A, esantis keturių aukštų mūrinio pastato ketvirtame aukšte. Bendras buto plotas yra 72.73 kvadratiniai metrai, papildomai priskiriamos 3.63 kv. m bendrojo naudojimo patalpos. Šis nekilnojamasis turtas parduodamas esamos fizinės ir funkcinės būklės.
Svarbūs apribojimai, susiję su objekto naudojimu: patalpos yra kultūros vertybės - Nuomojamasis namas (unikalus kodas Kultūros vertybių registre 12594) - statusą turinčiame pastate. Todėl patalpų naudojimas, tvarkymas bei bet kokie statybos, remonto ar rekonstrukcijos darbai reglamentuojami Lietuvos Respublikos nekilnojamojo kultūros paveldo apsaugos įstatymu ir kitais susijusiais teisės aktais. Ši sąlyga yra lemiama pardavimo sąlyga.
Pradinė šio turto pardavimo kaina iš VĮ Nismo aukciono yra 185400 EUR. Užmokestis už dalyvavimą aukcione (garantinis mokestis) sudaro 18540 EUR, o registracijos mokestis yra 145 EUR. Aukciono dalyviai privalo sumokėti garantinį įnašą ir registravimo mokestį iki registracijos pabaigos.
Numatomas aukciono laikas yra nuo 2025-08-25 09:00:00 iki 2025-08-26 13:59:59. Registracija į aukcioną vyksta nuo 2025-08-18 00:00:00 iki 2025-08-20 23:59:59. Nekilnojamojo turto pirkimo-pardavimo sutartis turi būti pasirašyta per 30 dienų nuo aukciono vykdymo dienos, o visa kaina sumokėta per 10 dienų po sutarties pasirašymo.
Turto apžiūra organizuojama 2025-07-31 11.00 val. ir 2025-08-07 11.00 val. Dėl apžiūros būtina iš anksto susitarti su atsakingu specialistu (Senamiesčio seniūnija).
Šio aukciono organizatorius yra Vilniaus miesto savivaldybės administracija (įmonės kodas 188710061).
Svarbūs apribojimai, susiję su objekto naudojimu: patalpos yra kultūros vertybės - Nuomojamasis namas (unikalus kodas Kultūros vertybių registre 12594) - statusą turinčiame pastate. Todėl patalpų naudojimas, tvarkymas bei bet kokie statybos, remonto ar rekonstrukcijos darbai reglamentuojami Lietuvos Respublikos nekilnojamojo kultūros paveldo apsaugos įstatymu ir kitais susijusiais teisės aktais. Ši sąlyga yra lemiama pardavimo sąlyga.
Pradinė šio turto pardavimo kaina iš VĮ Nismo aukciono yra 185400 EUR. Užmokestis už dalyvavimą aukcione (garantinis mokestis) sudaro 18540 EUR, o registracijos mokestis yra 145 EUR. Aukciono dalyviai privalo sumokėti garantinį įnašą ir registravimo mokestį iki registracijos pabaigos.
Numatomas aukciono laikas yra nuo 2025-08-25 09:00:00 iki 2025-08-26 13:59:59. Registracija į aukcioną vyksta nuo 2025-08-18 00:00:00 iki 2025-08-20 23:59:59. Nekilnojamojo turto pirkimo-pardavimo sutartis turi būti pasirašyta per 30 dienų nuo aukciono vykdymo dienos, o visa kaina sumokėta per 10 dienų po sutarties pasirašymo.
Turto apžiūra organizuojama 2025-07-31 11.00 val. ir 2025-08-07 11.00 val. Dėl apžiūros būtina iš anksto susitarti su atsakingu specialistu (Senamiesčio seniūnija).
Šio aukciono organizatorius yra Vilniaus miesto savivaldybės administracija (įmonės kodas 188710061).
📍 Objekto lokacija
📍 Vilniaus m. sav. Vilniaus m. Sodų g. 17-19A
❓ Dažnai užduodami klausimai
Kokia pradinė buto Sodų g. 17-19A kaina ir kokia jo kvadratūra?
Pradinė kaina yra 185400 EUR. Buto plotas yra 72.73 kv. m, su 3.63 kv. m bendrojo naudojimo patalpų dalimi, esantis ketvirtame aukšte.
Kada vyksta buto aukcionas Vilniuje?
Aukcionas prasideda 2025-08-25 09:00:00 ir baigiasi 2025-08-26 13:59:59.
Kokie yra registracijos terminai dalyvavimui aukcione?
Registracija į aukcioną vyksta nuo 2025-08-18 00:00:00 iki 2025-08-20 23:59:59. Garantinis mokestis yra 18540 EUR.
Kokios pagrindinės sąlygos taikomos šio turto naudojimui?
Patalpos yra parduodamos esamos būklės ir yra kultūros paveldo objektas (Nuomojamasis namas, kodas 12594), todėl visos rekonstrukcijos ar tvarkybos darbos privalo atitikti Nekilnojamojo kultūros paveldo apsaugos įstatymo reikalavimus.
Kada galima apžiūrėti butą Sodų g. 17-19A?
Turto apžiūros numatytos 2025-07-31 11.00 val. ir 2025-08-07 11.00 val., tačiau būtina iš anksto suderinti laiką su atsakingu specialistu.
Koks yra turto unikalus numeris ir kas yra pardavėjas?
Unikalus turto numeris yra 1094-0072-4012:0067. Pardavėjas yra Vilniaus miesto savivaldybė.