LT EN RU UA

Nuomojamas 739 kv. m administracinis pastatas Vilniuje, Laisvės pr. 28, pradinė nuomos kaina 0 EUR

📝 Aprašymas

★★★★★ ★★★★★ 3.8
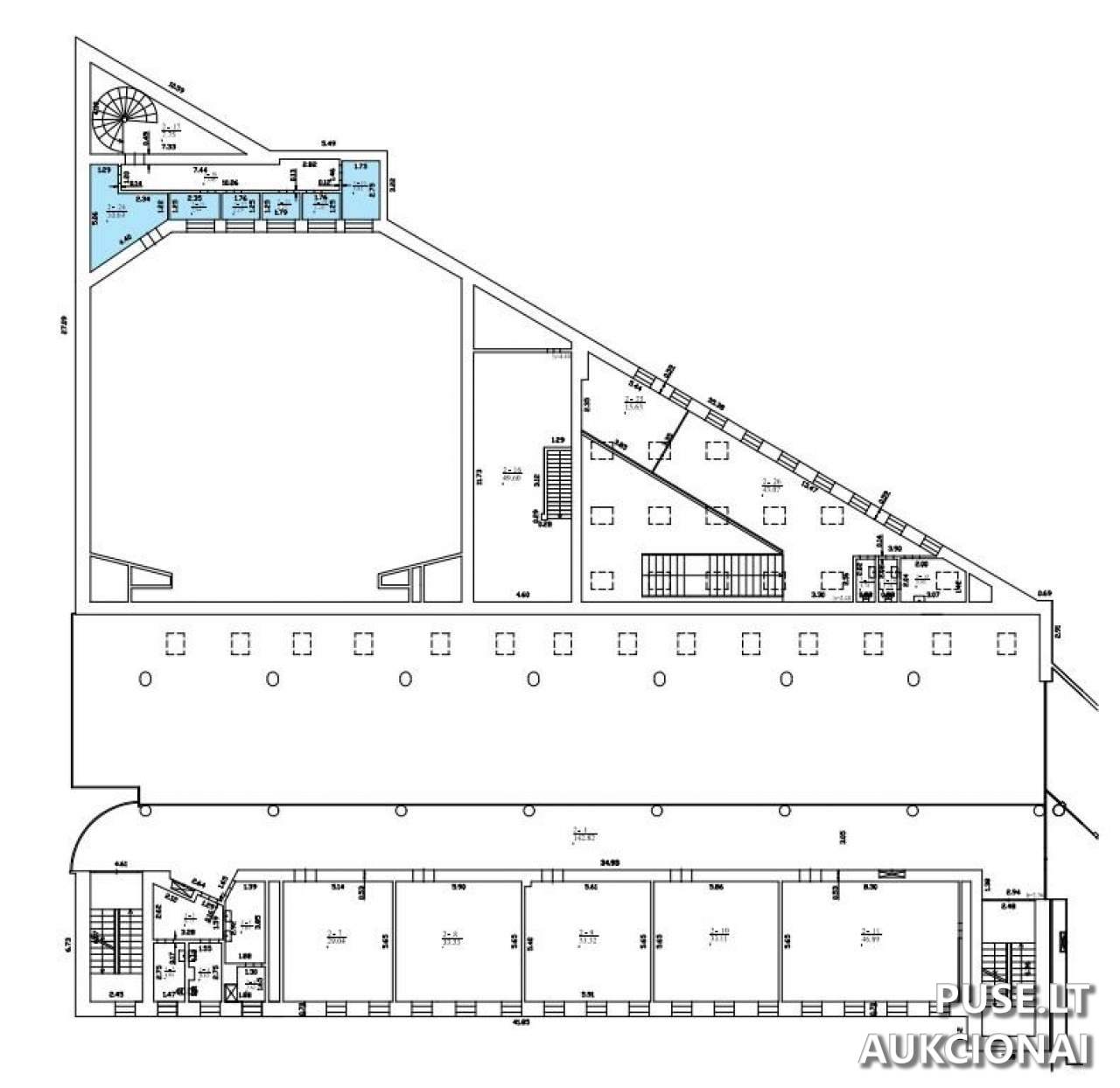
Skelbiamas nuomos konkursas dėl didelės apimties, 739,44 kv. m. komercinių patalpų Vilniaus mieste, Laisvės prospekte 28. Patalpos, pažymėtos indeksais 1-24 iki 1-29 ir nuo 2-19 iki 2-24, nuomojamos esamos būklės. Tai puiki galimybė investuoti į erdvę, pritaikytą kūrybinei, meninei ir pramogų organizavimo veiklai. Pagrindinis nuomojamas plotas yra 453,18 kv. m, tačiau bendras nuomojamas plotas, įskaitant bendro naudojimo patalpas, sudaro 739,44 kv. m. Nuomininkas turės galimybę patalpas įsirengti pilnai pagal specifinius savo poreikius sąmatą ir lėšomis. Unikalus turto kodas: 1099-7015-4024. Nors pradinė nuomos kaina nurodyta 0 EUR, tai yra nuomos konkursas, kurio sąlygos turi būti įvertintos dalyvių teikiamuose pasiūlymuose.

Nuomos konkursas prasideda 2025-09-03 09:00:00 ir baigiasi 2025-09-04 13:59:59. Norintys dalyvauti, turi užsiregistruoti nuo 2025-08-25 00:00:00 iki 2025-08-27 23:59:59. Už dalyvavimą e-konkurse reikės sumokėti 50 EUR registracijos mokestį.

Patalpų apžiūra organizuojama 2025-08-19 - 2025-08-27, nuo 10:00 iki 15:00 valandos. Būtina išankstinė registracija – informuoti kontaktinį asmenį ne vėliau kaip prieš 1 darbo dieną iki apžiūros. Administruoja Valstybės įmonė Turto bankas (įmonės kodas 112021042), savininko statusas yra Lietuvos Respublika. Konkursas vyksta taikant Valstybės ilgalaikio materialiojo turto nuomos elektroninio konkurso bendrąsias sąlygas.

📍 Objekto lokacija

📍 Vilniaus m. sav. Vilniaus m. Laisvės pr. 28

❓ Dažnai užduodami klausimai

Kada vyksta nuomos konkursas ir iki kada galima teikti pasiūlymus?
Aukcionas prasideda 2025-09-03 09:00:00 ir baigiasi 2025-09-04 13:59:59.
Koks yra bendras nuomojamas administracinių patalpų plotas Vilniuje, Laisvės pr. 28?
Bendras nuomojamas plotas su bendro naudojimo patalpomis yra 739,44 kv. m, iš kurių 453,18 kv. m pačios patalpos (indeksai 1-24 iki 1-29 ir 2-19 iki 2-24).
Kokia yra pradinė nuomos kaina ir kokius mokesčius reikia sumokėti dalyvaujant?
Pradinė nuomos kaina nurodyta 0 EUR. Registracijos mokestis dalyviui yra 50 EUR.
Kada ir kaip galima apžiūrėti nuomojamas patalpas Laisvės pr. 28?
Apžiūros vyksta 2025-08-19 - 2025-08-27, nuo 10:00 iki 15:00 valandos. Būtina iš anksto informuoti kontaktinį asmenį.
Kokia turto būklė ir kokie yra įrengimo reikalavimai?
Patalpos nuomojamos esamos būklės, o nuomininkas privalo savo lėšomis jas įsirengti pagal savo poreikius.
Kam skirtos šios patalpos ir kas yra organizatorius?
Patalpos skirtos kūrybinei, meninei ir pramogų organizavimo veiklai. Konkursą organizuoja Valstybės įmonė Turto bankas.
Kokie yra pasiūlymų registracijos terminai?
Registracija prasideda 2025-08-25 00:00:00 ir baigiasi 2025-08-27 23:59:59.

⏱ Aukciono laikas

Aukcionas pasibaigė

Registracija

Iki: 2025-08-27 23:59:59

Aukcionas

Iki: 2025-09-04 13:59:59

🏠 Objekto informacija

📍 Adresas
Vilniaus m. sav. Vilniaus m. Laisvės pr. 28
Tipas
Pirminis
Potipis
Pastatai
Objekto ID: 392163
💰 Pradinė kaina
Registracijos mokestis
50.00 €
Mažiausias kainos didinimas
150.00 €
Patvirtinimas
per 4 d. d.
Dalyvauti aukcione
🔑 Raktažodžiai
komercinės patalpos nuomai Vilniuje didelio ploto nuoma Laisvės prospekte administracinis pastatas Vilniuje kūrybinės erdvės nuomos konkursas 739 kv m nuoma Vilniuje