📝 Aprašymas
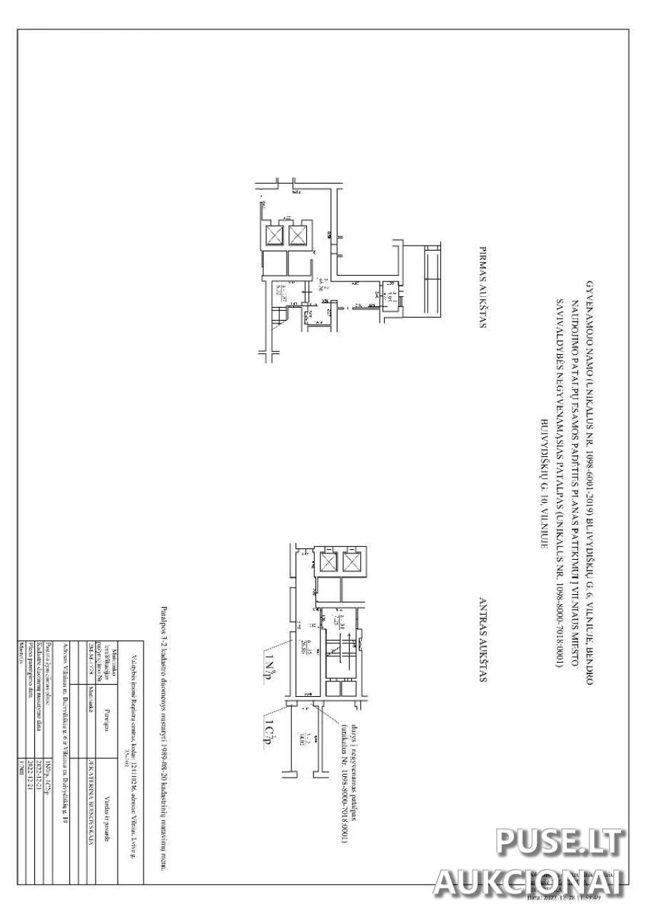
Parduodamos 1/1 dalies negyvenamosios patalpos Vilniaus mieste, Buivydiškių g. 10-3, esančios 2 aukštų mūrinio pastato 2 aukšte. Bendras patalpų plotas siekia 513,47 kv. m. Šis objektas parduodamas pakartotiniu Savivaldybės aukcionu, kurio pradinė kaina yra 398700 EUR. Unikalus nekilnojamojo turto kadastro numeris yra 1098-8000-7018:0001.
Pardavimo sąlygos numato, kad patalpos parduodamos esamos fizinės ir funkcinės būklės, remiantis esamais kadastro duomenimis, kurie nebuvo tikslinti, panaikinus galimus įėjimus/išėjimus (indeksai 3-1, 3-15, 3-16). Vilniaus miesto savivaldybė neįsipareigoja tikrinti aktualios nekilnojamojo turto kadastro duomenų būklės. Taip pat, teismo sprendimais ir nutartimis yra įregistruotas servitutas per bendrojo naudojimo I ir II aukšto patalpas (plane a-1, a-2, a-5, a-137, a-31, a-35) patekimui į kitas savivaldybės patalpas (unikalus Nr. 1098-8000-7018:0001). Savivaldybė neįsipareigoja iškraustyti patalpose esančių daiktų.
Norintys dalyvauti aukcione privalo sumokėti 39870 EUR garantinį mokestį ir 145 EUR registracijos mokestį. Garantinis įnašas ir registravimo mokestis turi būti sumokėti iki registracijos pabaigos į Vilniaus miesto savivaldybės administracijos sąskaitą (kodas 188710061, AB SEB banke, sąskaita LT63 7044 0600 0123 5132). Aukciono laimėtojas privalo sudaryti pirkimo-pardavimo sutartį per 30 dienų nuo vykdymo dienos, o visą kainą sumokėti per 10 dienų po sutarties pasirašymo.
Aukcionas vyks 2025-10-27 nuo 09:00:00 iki 2025-10-28 13:59:59. Registracija vyksta nuo 2025-10-20 00:00:00 iki 2025-10-22 23:59:59. Galimos turto apžiūros datos yra 2025-10-08 10:00 val. ir 2025-10-15 10:00 val. (būtina išankstinis suderinimas).
Organizatorius yra Vilniaus miesto savivaldybės administracija (įmonės kodas 188710061). Informaciją dėl sutarčių projektų teikia Teisės grupės patarėja.
Pardavimo sąlygos numato, kad patalpos parduodamos esamos fizinės ir funkcinės būklės, remiantis esamais kadastro duomenimis, kurie nebuvo tikslinti, panaikinus galimus įėjimus/išėjimus (indeksai 3-1, 3-15, 3-16). Vilniaus miesto savivaldybė neįsipareigoja tikrinti aktualios nekilnojamojo turto kadastro duomenų būklės. Taip pat, teismo sprendimais ir nutartimis yra įregistruotas servitutas per bendrojo naudojimo I ir II aukšto patalpas (plane a-1, a-2, a-5, a-137, a-31, a-35) patekimui į kitas savivaldybės patalpas (unikalus Nr. 1098-8000-7018:0001). Savivaldybė neįsipareigoja iškraustyti patalpose esančių daiktų.
Norintys dalyvauti aukcione privalo sumokėti 39870 EUR garantinį mokestį ir 145 EUR registracijos mokestį. Garantinis įnašas ir registravimo mokestis turi būti sumokėti iki registracijos pabaigos į Vilniaus miesto savivaldybės administracijos sąskaitą (kodas 188710061, AB SEB banke, sąskaita LT63 7044 0600 0123 5132). Aukciono laimėtojas privalo sudaryti pirkimo-pardavimo sutartį per 30 dienų nuo vykdymo dienos, o visą kainą sumokėti per 10 dienų po sutarties pasirašymo.
Aukcionas vyks 2025-10-27 nuo 09:00:00 iki 2025-10-28 13:59:59. Registracija vyksta nuo 2025-10-20 00:00:00 iki 2025-10-22 23:59:59. Galimos turto apžiūros datos yra 2025-10-08 10:00 val. ir 2025-10-15 10:00 val. (būtina išankstinis suderinimas).
Organizatorius yra Vilniaus miesto savivaldybės administracija (įmonės kodas 188710061). Informaciją dėl sutarčių projektų teikia Teisės grupės patarėja.
📍 Objekto lokacija
📍 Vilniaus m. sav. Vilniaus m. Buivydiškių g. 10-3
❓ Dažnai užduodami klausimai
Kokia negyvenamųjų patalpų adresas ir plotas, parduodamų aukcione?
Parduodamos negyvenamosios patalpos yra Vilniaus m. sav., Buivydiškių g. 10-3. Bendras plotas yra 513,47 kv. m, patalpos yra 2 aukštų pastato 2 aukšte.
Kokia pradinė kaina ir mokestiniai įnašai šiam objektui?
Pradinė kaina yra 398700 EUR. Būtinas sumokėti garantinis mokestis yra 39870 EUR, o registracijos mokestis – 145 EUR.
Kada vyks šio nekilnojamojo turto aukcionas?
Aukcionas prasideda 2025-10-27 09:00:00 ir baigiasi 2025-10-28 13:59:59. Registracija vyksta nuo 2025-10-20 iki 2025-10-22.
Kokie pagrindiniai pardavimo sąlygos aspektai turėtų būti žinomi?
Patalpos parduodamos esamos būklės. Yra įregistruotas servitutas patekimui į savivaldybės patalpas per šias patalpas, ir savivaldybė neįsipareigoja pašalinti daiktų iš patalpų.
Kada galima apžiūrėti negyvenamąsias patalpas Buivydiškių g. 10?
Apžiūros numatytos 2025-10-08 10:00 val. ir 2025-10-15 10:00 val., tačiau apžiūros laiką privaloma iš anksto suderinti.
Kokie yra apmokėjimo ir sutarties sudarymo terminai laimėjus aukcioną?
Sutartis sudaroma per 30 dienų nuo aukciono vykdymo dienos, o visa kaina turi būti sumokėta per 10 dienų po sutarties pasirašymo.