📝 Aprašymas
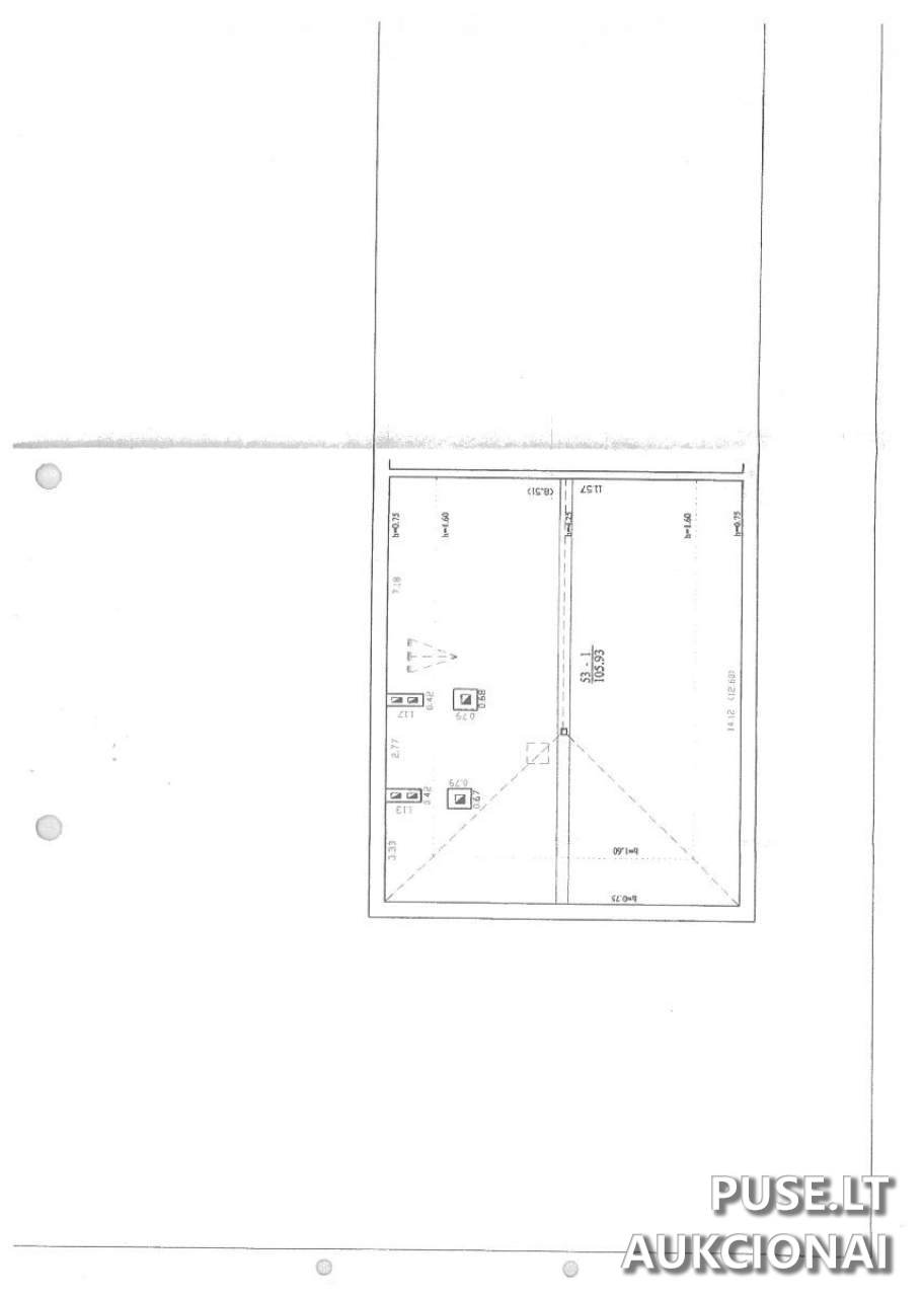
Parduodama 185/10000 dalis negyvenamosios patalpos - neįrengta pastogė Vilniaus mieste, Šilo gatvėje 4. Tai pakartotinis savivaldybės aukcionas, pradinė pardavimo kaina siekia 278 EUR, o bendras parduodamos dalies plotas yra 1,96 kv. m iš bendro 105,93 kv. m pastato ploto. Pastatas yra mūrinis.
Svarbu atkreipti dėmesį, kad šiuo metu parduodama pastogė yra neįrengta ir perduodama esamos fizinės bei funkcinės būklės, remiantis galiojančiais nekilnojamojo turto kadastro duomenimis. Pastogė performuota atidalijimo būdu, dėl ko jos faktiškai bendras plotas yra sumažėjęs. Kadastriniai matavimai po atidalijimo nebuvo atlikti ir nepatikslinti. Vilniaus miesto savivaldybė neįsipareigoja nustatyti aktualios nekilnojamojo turto kadastro duomenų būklės, todėl potencialus pirkėjas turi tai įvertinti.
Aukcionas prasideda 2025-10-27 09:00:00 ir baigiasi 2025-10-28 13:59:59. Pirkėjo registracija vyksta nuo 2025-10-20 00:00:00 iki 2025-10-22 23:59:59. Privalomas garantinis mokestis yra 27 EUR, o registracijos mokestis siekia 70 EUR. Šie mokesčiai turi būti sumokėti iki elektroninio aukciono registracijos pabaigos.
Pirkimo-pardavimo sutartis su laimėtoju turi būti sudaryta per 30 dienų nuo aukciono vykdymo dienos, o visa kaina sumokėta ne vėliau kaip per 10 dienų po sutarties pasirašymo.
Paskelbtos turto apžiūros vyks 2025-10-08 9.00 val. ir 2025-10-15 9.00 val. Dėl apžiūros laiko būtina iš anksto derintis su atsakingais specialistais.
Svarbu atkreipti dėmesį, kad šiuo metu parduodama pastogė yra neįrengta ir perduodama esamos fizinės bei funkcinės būklės, remiantis galiojančiais nekilnojamojo turto kadastro duomenimis. Pastogė performuota atidalijimo būdu, dėl ko jos faktiškai bendras plotas yra sumažėjęs. Kadastriniai matavimai po atidalijimo nebuvo atlikti ir nepatikslinti. Vilniaus miesto savivaldybė neįsipareigoja nustatyti aktualios nekilnojamojo turto kadastro duomenų būklės, todėl potencialus pirkėjas turi tai įvertinti.
Aukcionas prasideda 2025-10-27 09:00:00 ir baigiasi 2025-10-28 13:59:59. Pirkėjo registracija vyksta nuo 2025-10-20 00:00:00 iki 2025-10-22 23:59:59. Privalomas garantinis mokestis yra 27 EUR, o registracijos mokestis siekia 70 EUR. Šie mokesčiai turi būti sumokėti iki elektroninio aukciono registracijos pabaigos.
Pirkimo-pardavimo sutartis su laimėtoju turi būti sudaryta per 30 dienų nuo aukciono vykdymo dienos, o visa kaina sumokėta ne vėliau kaip per 10 dienų po sutarties pasirašymo.
Paskelbtos turto apžiūros vyks 2025-10-08 9.00 val. ir 2025-10-15 9.00 val. Dėl apžiūros laiko būtina iš anksto derintis su atsakingais specialistais.
📍 Objekto lokacija
📍 Vilniaus m. sav. Vilniaus m. Šilo g. 4
❓ Dažnai užduodami klausimai
Kokia yra neįrengtos pastogės pradinė kaina Vilniuje, Šilo g. 4?
Pradinė neįrengtos pastogės (1,96 kv. m dalies) kaina yra 278 EUR.
Kada vyks galutinis aukcionas, kuriame parduodama pastogė Šilo g. 4?
Aukcionas prasideda 2025-10-27 09:00:00 ir baigiasi 2025-10-28 13:59:59.
Koks yra parduodamos dalies unikalus numeris ir bendras pastato plotas?
Parduodamos dalies unikalus Nr. yra 4400-2059-9617:6106. Pastatas yra mūrinis, bendras plotas 105,93 kv. m, parduodama 1,96 kv. m dalis.
Kokie papildomi mokesčiai taikomi dalyvaujant aukcione?
Dalyviui taikomas 27 EUR garantinis mokestis ir 70 EUR registracijos mokestis.
Kuo svarbu atkreipti dėmesį dėl turto būklės ir kadastro duomenų?
Patalpos parduodamos esamos būklės, kadastriniai matavimai po atidalijimo neatlikti ir nepatikslinti, todėl Savivaldybė neįsipareigoja nustatyti aktualios kadastro būklės.
Kada numatytos turto apžiūros ir kam skambinti?
Apžiūros numatytos 2025-10-08 9.00 val. ir 2025-10-15 9.00 val. Visą laiką reikia derinti su atsakingais specialistais telefonu.