📝 Aprašymas
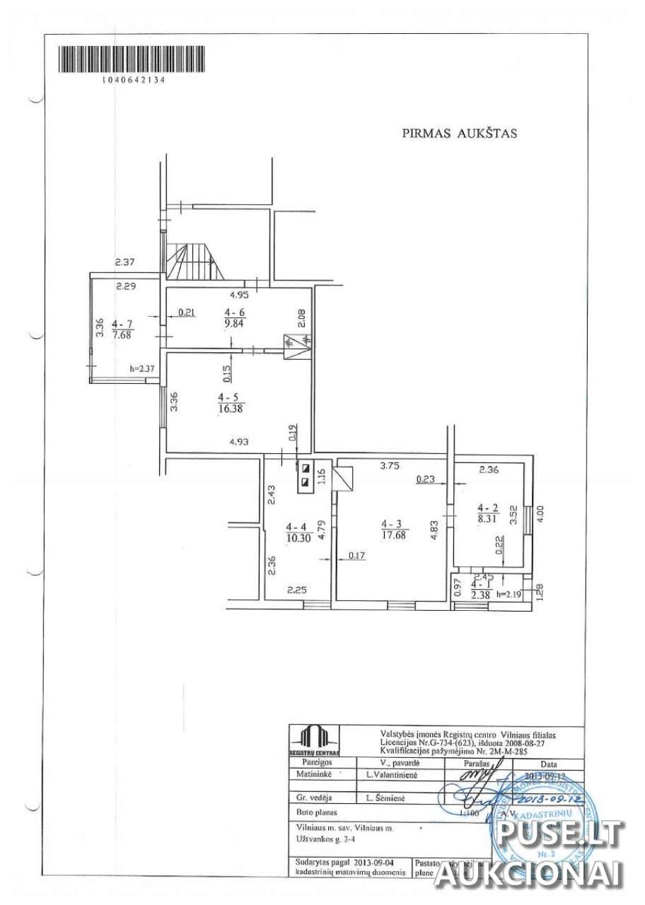
Parduodamas 72.57 kv. m ploto butas Vilniaus mieste, Užtvankos gatvėje 2-4, esant 1/1 bendrosios nuosavybės daliai. Šis vieno aukšto medinio pastato butas yra pirmame aukšte. Nekilnojamasis turtas parduodamas esamos būklės. Tai yra savivaldybės paskelbtas pakartotinis patalpų aukcionas.
Pradinė objekto kaina nustatyta 79200 EUR. Pirkėjas privalo sumokėti 7920 EUR garantinį mokestį ir 145 EUR registracijos mokestį. Visa turto kaina (įsigijimo suma) turi būti sumokėta ne vėliau kaip per 10 dienų po pirkimo-pardavimo sutarties pasirašymo, kuri turi būti sudaryta per 30 dienų nuo pardavimo aukcione dienos.
Elektroninis aukcionas vyks nuo 2025-10-27 09:00:00 iki 2025-10-28 13:59:59. Registracija į aukcioną vykdoma nuo 2025-10-20 00:00:00 iki 2025-10-22 23:59:59.
Turto apžiūra organizuojama 2025-10-10 9.00 val. ir 2025-10-17 9.00 val. Dėl apžiūros laiko būtina iš anksto derintis su atsakingu darbuotoju.
Šis nekilnojamasis turtas priklauso Vilniaus miesto savivaldybei, o organizavimo funkcijas atlieka Vilniaus miesto savivaldybės administracija (įmonės kodas 188710061). Informacija apie sutarties projektus teikiama atskirai.
Pradinė objekto kaina nustatyta 79200 EUR. Pirkėjas privalo sumokėti 7920 EUR garantinį mokestį ir 145 EUR registracijos mokestį. Visa turto kaina (įsigijimo suma) turi būti sumokėta ne vėliau kaip per 10 dienų po pirkimo-pardavimo sutarties pasirašymo, kuri turi būti sudaryta per 30 dienų nuo pardavimo aukcione dienos.
Elektroninis aukcionas vyks nuo 2025-10-27 09:00:00 iki 2025-10-28 13:59:59. Registracija į aukcioną vykdoma nuo 2025-10-20 00:00:00 iki 2025-10-22 23:59:59.
Turto apžiūra organizuojama 2025-10-10 9.00 val. ir 2025-10-17 9.00 val. Dėl apžiūros laiko būtina iš anksto derintis su atsakingu darbuotoju.
Šis nekilnojamasis turtas priklauso Vilniaus miesto savivaldybei, o organizavimo funkcijas atlieka Vilniaus miesto savivaldybės administracija (įmonės kodas 188710061). Informacija apie sutarties projektus teikiama atskirai.
📍 Objekto lokacija
📍 Vilniaus m. sav. Vilniaus m. Užtvankos g. 2-4
❓ Dažnai užduodami klausimai
Kokia yra pradinė pardavimo kaina šiam 72.57 kv. m butui Užtvankos g. 2-4?
Pradinė buto kaina yra 79200 EUR.
Kada vyks šio nekilnojamojo turto aukcionas?
Aukcionas prasidės 2025-10-27 09:00:00 ir baigsis 2025-10-28 13:59:59.
Kada reikia spėti užsiregistruoti dalyvauti aukcione?
Registracija į elektroninį aukcioną vyksta nuo 2025-10-20 00:00:00 iki 2025-10-22 23:59:59.
Kokie papildomi mokesčiai mokami, be pradinės kainos?
Privaloma sumokėti 7920 EUR garantinį mokestį ir 145 EUR registracijos mokestį.
Kada turi būti sudaryta sutartis ir apmokėta visa kaina po aukciono laimėjimo?
Pirkimo-pardavimo sutartis turi būti sudaryta per 30 dienų, o visa kaina sumokėta per 10 dienų po sutarties pasirašymo.
Kokia turto apžiūros tvarka?
Apžiūros numatytos 2025-10-10 9.00 val. ir 2025-10-17 9.00 val., jas būtina iš anksto suderinti.