📝 Aprašymas
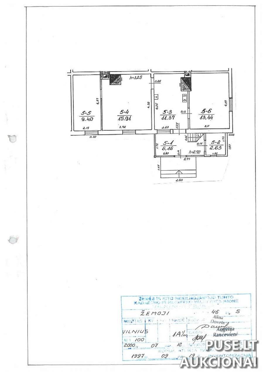
Parduodamas 58,91 kv. m. ploto butas Vilniaus mieste, Žemojoje gatvėje 46-5, esantis vieno aukšto medinio pastato pirmame aukšte. Unikalus turto Nr. 1094-0480-0015:0005. Turto pardavimo sąlyga yra parduoti esamos būklės, po įvykusio gaisro. Tai yra pakartotinis pardavimas per savivaldybės aukcioną.
Pradinė šio nekilnojamojo turto pardavimo kaina aukcione – 10827 EUR. Pirkėjams privaloma sumokėti 1082 EUR garantinį mokestį ir 70 EUR registracijos mokestį. Aukcionas prasidės 2025-10-27 09:00:00 ir baigsis 2025-10-28 13:59:59.
Registracija į elektroninį aukcioną vyksta nuo 2025-10-20 00:00:00 iki 2025-10-22 23:59:59. Garantinis įnašas priimamas įskaitomas į Vilniaus miesto savivaldybės administracijos sąskaitą SEB banke (kodas 188710061, sąskaita LT63 7044 0600 0123 5132).
Sutartis turi būti sudaryta per 30 dienų nuo pardavimo dienos, o visa kaina sumokėta per 10 dienų po sutarties pasirašymo. Būsimi pirkėjai gali apžiūrėti turtą 2025-10-10 10.00 val. ir 2025-10-17 10.00 val. Dėl apžiūros būtina susitarti iš anksto. Pardavėjas yra Vilniaus miesto savivaldybė (kodas 111109233).
Pradinė šio nekilnojamojo turto pardavimo kaina aukcione – 10827 EUR. Pirkėjams privaloma sumokėti 1082 EUR garantinį mokestį ir 70 EUR registracijos mokestį. Aukcionas prasidės 2025-10-27 09:00:00 ir baigsis 2025-10-28 13:59:59.
Registracija į elektroninį aukcioną vyksta nuo 2025-10-20 00:00:00 iki 2025-10-22 23:59:59. Garantinis įnašas priimamas įskaitomas į Vilniaus miesto savivaldybės administracijos sąskaitą SEB banke (kodas 188710061, sąskaita LT63 7044 0600 0123 5132).
Sutartis turi būti sudaryta per 30 dienų nuo pardavimo dienos, o visa kaina sumokėta per 10 dienų po sutarties pasirašymo. Būsimi pirkėjai gali apžiūrėti turtą 2025-10-10 10.00 val. ir 2025-10-17 10.00 val. Dėl apžiūros būtina susitarti iš anksto. Pardavėjas yra Vilniaus miesto savivaldybė (kodas 111109233).
📍 Objekto lokacija
📍 Vilniaus m. sav. Vilniaus m. Žemoji g. 46-5
❓ Dažnai užduodami klausimai
Kokia nekilnojamojo turto apžiūros data ir laikas?
Turto apžiūra numatyta 2025-10-10 10.00 val. ir 2025-10-17 10.00 val. Būtina iš anksto suderinti laiką su atsakingu darbuotoju.
Kada vyksta aukcionas, kur parduodamas butas Žemojoje g. 46-5?
Aukcionas vyks nuo 2025-10-27 09:00:00 iki 2025-10-28 13:59:59.
Kokia yra pradinė buto pardavimo kaina ir būtini mokesčiai?
Pradinė kaina 10827 EUR. Reikalingas 1082 EUR garantinis mokestis ir 70 EUR registracijos mokestis.
Kokie yra pagrindiniai buto pardavimo apribojimai?
Patalpos parduodamos esamos būklės, atsižvelgiant į tai, kad turtas yra po gaisro.
Per kiek laiko reikia sudaryti sutartį ir sumokėti visą kainą po aukciono laimėjimo?
Pirkimo-pardavimo sutartis turi būti sudaryta per 30 dienų nuo pardavimo dienos, o visa kaina turi būti sumokėta ne vėliau kaip per 10 dienų po sutarties pasirašymo.
Koks unikalus buto identifikavimo numeris ir plotas?
Unikalus Nr. 1094-0480-0015:0005, bendras plotas 58,91 kv. m.