Kambarys Vilniuje, Žolyno g. 6, 17.6 kv.m. su bendromis patalpomis, pradinė kaina 45720 EUR

📝 Aprašymas

★★★★★ ★★★★★ 3.5
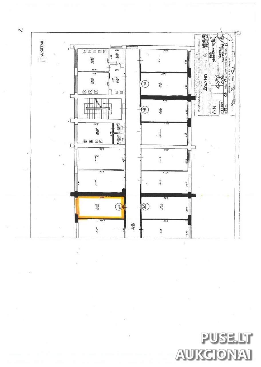
Parduodamas 1/1 dalis kambario Vilniaus miesto savivaldybėje, esančio adresu Žolyno g. 6-67. Tai yra 17,60 kv. m. kambarys su 7,66 kv. m. bendrojo naudojimo patalpų dalimi, įsikūręs 5 aukštų mūrinio pastato trečiame aukšte. Nekilnojamasis turtas parduodamas esamos būklės, jis yra pavadintas kaip Pakartotinis Patalpos/Butai tipas, ir pardavimas vyksta Vilniaus miesto savivaldybės organizuojamuose aukcionuose.

Aukcionas prasideda 2025-10-27 09:00:00 ir baigiasi 2025-10-28 13:59:59. Registracija dalyvavimui priimama nuo 2025-10-20 00:00:00 iki 2025-10-22 23:59:59. Pradinė kaina nustatyta 45720 EUR, o garantinis mokestis, kurį reikia sumokėti dalyvaujant, yra 4572 EUR (10% nuo pradinės kainos), taip pat registracijos mokestis 145 EUR.

Turto apžiūros galimos 2025-10-08 9.30 val. ir 2025-10-15 9.30 val. Pirkimo-pardavimo sutartis su aukciono laimėtoju turi būti sudaryta per 30 dienų nuo pardavimo dienos, o visa kaina turi būti sumokėta per 10 dienų po sutarties pasirašymo.

Visą informaciją apie sutarčių projektus teikia Teisės grupės patarėja.

📍 Objekto lokacija

📍 Vilniaus m. sav. Vilniaus m. Žolyno g. 6-67

❓ Dažnai užduodami klausimai

Kokia yra nekilnojamojo turto, Žolyno g. 6-67, pradinė kaina aukcione?
Pradinė kaina nustatyta 45720 EUR.
Kada vyks šio kambario aukcionas Vilniuje?
Aukcionas vyks nuo 2025-10-27 09:00:00 iki 2025-10-28 13:59:59.
Kiek laiko yra registracija į aukcioną?
Registracija vyksta nuo 2025-10-20 00:00:00 iki 2025-10-22 23:59:59.
Kokie yra būtini mokesčiai dalyvaujant šiame aukcione?
Reikalingas garantinis mokestis 4572 EUR ir registracijos mokestis 145 EUR.
Kokie yra turto apžiūros apribojimai ar tvarka?
Apžiūros numatytos 2025-10-08 ir 2025-10-15 9.30 val., tačiau apžiūros laiką reikia iš anksto suderinti su atsakingu darbuotoju.
Kokie yra apmokėjimo terminai po aukciono laimėjimo?
Pirkimo-pardavimo sutartis sudaroma per 30 dienų, o visa kaina sumokama per 10 dienų po sutarties pasirašymo.
Kokia bendra turto aprašoma kvadratūra?
Kambarys yra 17,60 kv. m., jam priklauso 7,66 kv. m. bendrojo naudojimo patalpos.

⏱ Aukciono laikas

Aukcionas pasibaigė

Registracija

Iki: 2025-10-22 23:59:59

Aukcionas

Iki: 2025-10-28 13:59:59

🏠 Objekto informacija

📍 Adresas
Vilniaus m. sav. Vilniaus m. Žolyno g. 6-67
Tipas
Pakartotinis
Potipis
Patalpos/Butai
Objekto ID: 395237
💰 Pradinė kaina
45720.00 €
Užstatas
4572.00 €
Registracijos mokestis
145.00 €
Mažiausias kainos didinimas
457.00 €
Patvirtinimas
per 2 d. d.
Dalyvauti aukcione
🔑 Raktažodžiai
kambarys vilniuje aukcionas nekilnojamas turtas zolyno g. priklauso savivaldybei turtas parduodama kambario dalis vilniuje aukcionas 2025 spalis