📝 Aprašymas
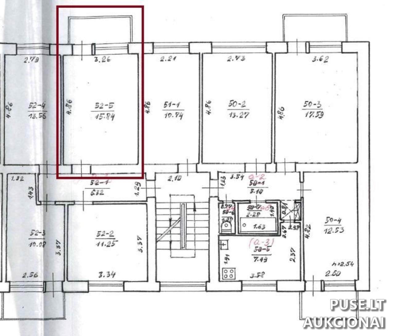
Parduodamas pirminis nekilnojamasis turtas – butas, esantis Akmenės rajono savivaldybėje, Ventoje, Bausko gatvėje 7-50A. Šis 1/1 dalies butas pasižymi mažu bendru plotu, siekiančiu 15.84 kv. m, ir parduodamas su dalimi bendro naudojimo patalpų, kurių plotai nurodyti konkrečiomis dalimis (pvz., 52-1-1.58 kv. m, 50-1-0.64 kv. m ir kt.).
Pradinė objekto kaina yra itin maža – vos 317 EUR. Aukcionas vyks trumpą laikotarpį, pradedant 2025-10-27 09:00:00 ir baigiantis 2025-10-28 13:59:59. Būtina užsiregistruoti iš anksto: registracijos laikotarpis trunka nuo 2025-10-20 00:00:00 iki 2025-10-22 23:59:59.
Svarbu atkreipti dėmesį, kad nekilnojamasis turtas parduodamas esamos fizinės ir funkcinės būklės, pagal esamus kadastro duomenis. Valstybės įmonė Turto bankas neįsipareigoja nustatyti aktualios būklės ar iškraustyti esančių daiktų. Taip pat pažymima, kad bendraturčiai nėra sudarę susitarimų dėl bendros dalinės nuosavybės tvarkos.
Šis pastatas, kuriame yra parduodamas butas, yra Ventos regioninio parko teritorijoje (kodas: 0700000000007). Jo naudojimas, tvarkymas bei statybos ar remonto darbai yra griežtai reguliuojami Lietuvos Respublikos žemės, Saugomų teritorijų ir Statybos įstatymų bei susijusių teisės aktų, todėl pirkėjas turės laikytis šių specifinių aplinkosaugos ir statybos reglamentų.
Būtini mokesčiai yra 31 EUR dydžio garantinis mokestis ir 1 EUR dydžio registracijos mokestis. Sutarčių projektai pasiekiami nurodytose nuorodose, o dėl detalesnės informacijos galima kreiptis į specialistes.
Pradinė objekto kaina yra itin maža – vos 317 EUR. Aukcionas vyks trumpą laikotarpį, pradedant 2025-10-27 09:00:00 ir baigiantis 2025-10-28 13:59:59. Būtina užsiregistruoti iš anksto: registracijos laikotarpis trunka nuo 2025-10-20 00:00:00 iki 2025-10-22 23:59:59.
Svarbu atkreipti dėmesį, kad nekilnojamasis turtas parduodamas esamos fizinės ir funkcinės būklės, pagal esamus kadastro duomenis. Valstybės įmonė Turto bankas neįsipareigoja nustatyti aktualios būklės ar iškraustyti esančių daiktų. Taip pat pažymima, kad bendraturčiai nėra sudarę susitarimų dėl bendros dalinės nuosavybės tvarkos.
Šis pastatas, kuriame yra parduodamas butas, yra Ventos regioninio parko teritorijoje (kodas: 0700000000007). Jo naudojimas, tvarkymas bei statybos ar remonto darbai yra griežtai reguliuojami Lietuvos Respublikos žemės, Saugomų teritorijų ir Statybos įstatymų bei susijusių teisės aktų, todėl pirkėjas turės laikytis šių specifinių aplinkosaugos ir statybos reglamentų.
Būtini mokesčiai yra 31 EUR dydžio garantinis mokestis ir 1 EUR dydžio registracijos mokestis. Sutarčių projektai pasiekiami nurodytose nuorodose, o dėl detalesnės informacijos galima kreiptis į specialistes.
📍 Objekto lokacija
📍 Akmenės r. sav. Ventos m. Bausko g. 7-50A
❓ Dažnai užduodami klausimai
Kokia nekilnojamojo turto pradinė kaina Ventoje, Bausko g. 7-50A?
Pradinė buto kaina yra 317 EUR.
Kada vyks aukcionas, kuriame parduodamas šis butas?
Aukcionas prasideda 2025-10-27 09:00:00 ir baigiasi 2025-10-28 13:59:59.
Koks yra bendras parduodamo buto plotas ir unikalus numeris?
Bendras buto plotas yra 15.84 kv. m, su dalimi bendrojo naudojimo patalpų. Unikalus numeris: 3296-9005-4010:0056.
Kokie papildomi mokesčiai yra mokami aukcione, be pradinės kainos?
Dalyviai turi sumokėti 31 EUR garantinį mokestį ir 1 EUR registracijos mokestį.
Kokie apribojimai taikomi parduodamam objektui dėl jo vietos?
Pastatas patenka į Ventos regioninio parko teritoriją, todėl jo naudojimas ir tvarkymo darbai reglamentuojami Saugomų teritorijų įstatymu.
Iki kada reikia pateikti registraciją dalyvauti aukcione?
Registracija vyksta nuo 2025-10-20 00:00:00 iki 2025-10-22 23:59:59.