📝 Aprašymas
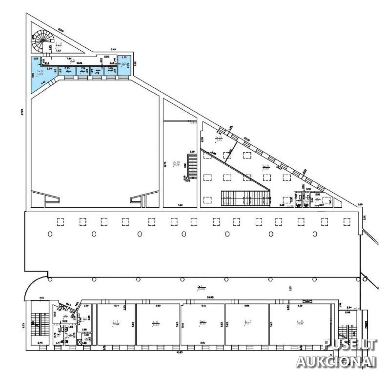
Parduodamas (nuomojamas) pakartotinis administracinis pastatas Vilniaus mieste, esantis Laisvės pr. 28. Šis objektas nuomojamas kūrybinei, meninei ir pramogų organizavimo veiklai. Bendra nuomojama ploto apimtis yra 739,44 kv. m, įskaitant bendro naudojimo patalpas bei specifines patalpas su indeksais nuo 1-24 iki 1-29 ir nuo 2-19 iki 2-24, kurių bendras plotas siekia 453,18 kv. m.
Nuomojamos patalpos perduodamos esamos būklės. Taip pat suteikiama galimybė nuomininkui savo lėšomis įsirengti patalpas pagal išskirtinius poreikius ir veiklos specifiką. Pradinė nuomos kaina nustatyta 0 EUR, tačiau tai yra nuomos konkursas, kurio metu bus nustatyta galutinė nuomos kaina.
Unikalus objekto numeris viešajame registre yra 1099-7015-4024. Patalpų apžiūros galimos nuo 2025-09-16 iki 2025-10-01, kasdien nuo 10:00 iki 15:00 valandos. Būtina išankstinė registracija ir informavimas apie atvykimą ne vėliau kaip prieš 1 darbo dieną.
Registracija dalyvauti nuomos konkurse vyksta nuo 2025-09-29 iki 2025-10-01. Pats nuomos konkursas vyks nuo 2025-10-08 09:00:00 iki 2025-10-09 13:59:59. Dalyvio registracijos mokestis yra 50 EUR. Apmokėjimas už registracijos mokestį ir pradinį įnašą (jei taikoma) atliekamas į VĮ Turto bankas (įm. k. 112021042) sąskaitą AB SEB banke.
Nuomojamos patalpos perduodamos esamos būklės. Taip pat suteikiama galimybė nuomininkui savo lėšomis įsirengti patalpas pagal išskirtinius poreikius ir veiklos specifiką. Pradinė nuomos kaina nustatyta 0 EUR, tačiau tai yra nuomos konkursas, kurio metu bus nustatyta galutinė nuomos kaina.
Unikalus objekto numeris viešajame registre yra 1099-7015-4024. Patalpų apžiūros galimos nuo 2025-09-16 iki 2025-10-01, kasdien nuo 10:00 iki 15:00 valandos. Būtina išankstinė registracija ir informavimas apie atvykimą ne vėliau kaip prieš 1 darbo dieną.
Registracija dalyvauti nuomos konkurse vyksta nuo 2025-09-29 iki 2025-10-01. Pats nuomos konkursas vyks nuo 2025-10-08 09:00:00 iki 2025-10-09 13:59:59. Dalyvio registracijos mokestis yra 50 EUR. Apmokėjimas už registracijos mokestį ir pradinį įnašą (jei taikoma) atliekamas į VĮ Turto bankas (įm. k. 112021042) sąskaitą AB SEB banke.
📍 Objekto lokacija
📍 Vilniaus m. sav. Vilniaus m. Laisvės pr. 28
❓ Dažnai užduodami klausimai
Kokia nuomojama turto vieta ir pagrindinis plotas?
Administracinis pastatas nuomojamas Vilniaus mieste, Laisvės pr. 28. Bendra nuomojama ploto apimtis yra 739,44 kv. m.
Kada baigiasi nuomos konkursas ir kada galima teikti paraiškas?
Nuomos konkursas baigiasi 2025-10-09 13:59:59. Registracija dalyvauti vyksta iki 2025-10-01 23:59:59.
Kokia yra pradinė objekto nuomos kaina?
Pradinė nuomos kaina aukcione nustatyta 0 EUR. Tai yra nuomos konkursas, kur metu bus nustatoma galutinė nuomos kaina.
Kokie yra registracijos ir apžiūros reikalavimai?
Registracijos mokestis dalyviui yra 50 EUR. Apžiūros metu būtina informuoti kontaktinį asmenį ne vėliau kaip prieš 1 darbo dieną.
Kam skirta nuomojama patalpa?
Patalpos nuomojamos kūrybinei, meninei ir pramogų organizavimo veiklai.
Kokia yra turto būklė ir ar galima jį pritaikyti savo reikmėms?
Patalpos nuomojamos esamos būklės, tačiau nuomininkas turi galimybę savo lėšomis jas įsirengti pagal savo poreikius.