📝 Aprašymas
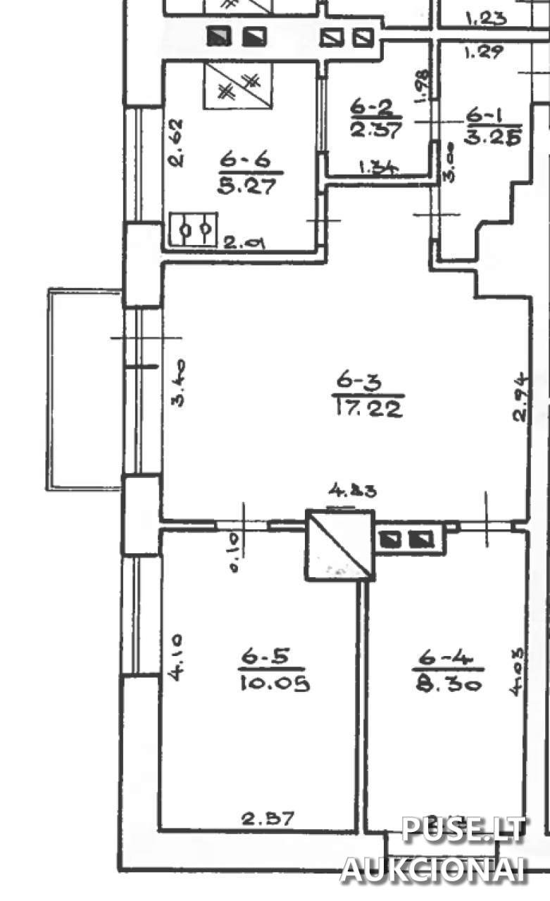
Parduodama 1/2 dalis buto Zarasų rajone, Naršėnų kaimo Sodų gatvėje 17-6, su daline nuosavybe ir kitais priklausiniais. Šis pakartotinis aukcionas siūlo nekilnojamąjį turtą pradinėje 315 EUR kaina. Bendra parduodamo buto dalies naudinga kvadratūra yra 46.46 kv. m, unikalus Nr. 4397-2002-1015:0001.
Be buto dalies, parduodama ir 1/16 dalis sandėlio, kurio užstatytas plotas 122.31 kv. m (unikalus Nr. 4397-2002-1026), bei 1/32 dalis ūkinio pastato su temperiu, užstatytas plotas 275.01 kv. m (unikalus Nr. 4397-2002-1037). Taip pat parduodama 1/4 dalis kiemo statinio (išvietės) su unikaliu Nr. 4400-0070-0789, esančio Sodų g. 17.
Aukcionas prasideda 2025-11-10 09:00:00 ir baigiasi 2025-11-11 13:59:59. Registracija vyksta nuo 2025-11-03 00:00:00 iki 2025-11-05 23:59:59. Garantinis mokestis yra 31 EUR, o registracijos mokestis - 1 EUR.
Parduodamas nekilnojamasis turtas yra esamos fizinės ir funkcinės būklės pagal kadastro duomenis. Valstybės įmonė Turto bankas neįsipareigoja nustatyti aktualios būklės ir neiškraustyti esamų daiktų. Svarbu paminėti, kad bendraturčiai nėra sudarę susitarimų dėl bendros dalinės nuosavybės naudojimosi tvarkos. Parduodama dalis yra valstybinėje žemėje, kuriai sklypas nėra suformuotas, todėl pardavėjas teisių į sklypą neperleidžia.
Lauko tualetas (unikalus Nr. 4400-0070-0789) neatitinka taikomų teisės aktų reikalavimų. Potencialiems pirkėjams rekomenduojama įvertinti visas su tokios būklės statinio įrengimu ar nugriovimu susijusias teisines ir ekonomines rizikas bei kaštus.
Be buto dalies, parduodama ir 1/16 dalis sandėlio, kurio užstatytas plotas 122.31 kv. m (unikalus Nr. 4397-2002-1026), bei 1/32 dalis ūkinio pastato su temperiu, užstatytas plotas 275.01 kv. m (unikalus Nr. 4397-2002-1037). Taip pat parduodama 1/4 dalis kiemo statinio (išvietės) su unikaliu Nr. 4400-0070-0789, esančio Sodų g. 17.
Aukcionas prasideda 2025-11-10 09:00:00 ir baigiasi 2025-11-11 13:59:59. Registracija vyksta nuo 2025-11-03 00:00:00 iki 2025-11-05 23:59:59. Garantinis mokestis yra 31 EUR, o registracijos mokestis - 1 EUR.
Parduodamas nekilnojamasis turtas yra esamos fizinės ir funkcinės būklės pagal kadastro duomenis. Valstybės įmonė Turto bankas neįsipareigoja nustatyti aktualios būklės ir neiškraustyti esamų daiktų. Svarbu paminėti, kad bendraturčiai nėra sudarę susitarimų dėl bendros dalinės nuosavybės naudojimosi tvarkos. Parduodama dalis yra valstybinėje žemėje, kuriai sklypas nėra suformuotas, todėl pardavėjas teisių į sklypą neperleidžia.
Lauko tualetas (unikalus Nr. 4400-0070-0789) neatitinka taikomų teisės aktų reikalavimų. Potencialiems pirkėjams rekomenduojama įvertinti visas su tokios būklės statinio įrengimu ar nugriovimu susijusias teisines ir ekonomines rizikas bei kaštus.
📍 Objekto lokacija
📍 Zarasų r. sav. Naršėnų k. Sodų g. 17-6
❓ Dažnai užduodami klausimai
Kada yra nustatytas parduodamo buto dalies (ID 73353) aukciono pabaigos terminas?
Aukcionas baigiasi 2025-11-11 13:59:59.
Kokia yra pradinė 1/2 buto dalies ir priklausinių kaina Zarasų r. sav., Naršėnų kaimo Sodų g. 17?
Pradinė kaina yra 315 EUR.
Kokie papildomi mokesčiai yra taikomi dalyvaujant aukcione?
Reikalingas Garantinis mokestis 31 EUR ir Registracijos mokestis 1 EUR.
Koks bendras parduodamo buto dalies plotas (unikalus Nr. 4397-2002-1015:0001)?
Parduodamos 1/2 dalies bendras plotas yra 46.46 kv. m.
Kada turėčiau užsiregistruoti į šį aukcioną (ID 73353)?
Dalyvio registracija vyksta nuo 2025-11-03 00:00:00 iki 2025-11-05 23:59:59.
Kokios sąlygos taikomos nuosavybės situacijai ir sklypui?
Parduodama dalis yra valstybinėje žemėje, kuriai sklypas nesuformuotas, o bendraturčiai nėra susitarę dėl bendros nuosavybės naudojimo tvarkos. Turtas parduodamas esamos būklės.