📝 Aprašymas
Parduodamas nekilnojamasis turtas - Gamybinis pastatas, unikalus numeris 4199-4036-1010, esantis Vilniaus rajono savivaldybėje, Liepių kaime. Šis objektas parduodamas vykstančių antstolių varžytinių būdu su 126400 EUR pradine kaina. Parduodama 114545/161976 dalis pastato.
Vertinamas turtas yra ant nuomojamo valstybinės žemės sklypo, unikalus numeris 4400-0357-3978, kadastrinis numeris 4107/0600:496 Bezdonių k.v., kurio bendras plotas yra 0.2761 ha. Žemės sklypo nuomos terminas yra nustatytas 50 metų, pradedant nuo 2004-10-12. Žemės sklypo reljefas tolygus, konfigūracija keturkampė, apaugęs natūralia pieva.
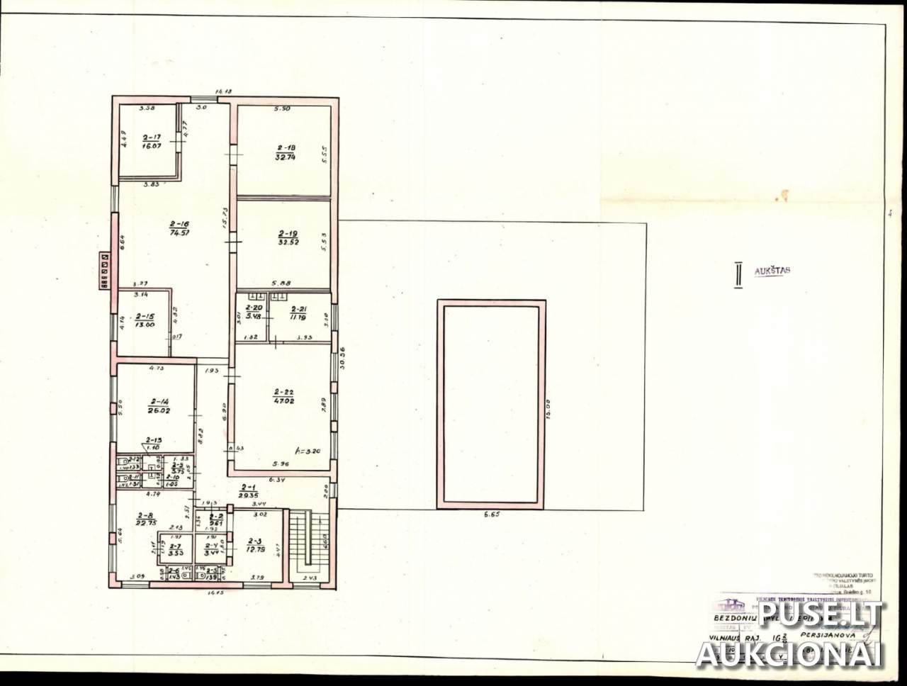
Pastato bendras plotas yra 1619.76 kv. m. Jis suskirstytas į: rūsio plotą (643.40 kv. m) su pagalbinėmis patalpomis ir įrengtu katilu bei vandens filtrais; pirmo aukšto pagrindinį plotą (631.32 kv. m), skirtą pirminės paskirties eksploatacijai; ir antro aukšto patalpas (345.04 kv. m), kurios apžiūros metu yra pritaikytos dalinai gyvenimui (įrengta virtuvė, san. mazgas su dušu ir tualetu, įrengtas pečiukas) ir dalinai naudojamos kaip pagalbinės patalpos.
Pastato fizinė būklė vertinama kaip vidutinė. Konstrukcijos: pamatai - betono blokai, juostiniai; sienos ir pertvaros - plytų mūras; perdangos - gelžbetoninės plokštės. Ant pastato yra naujai įrengtos stebėjimo kameros, taip pat įrengta betoninė rampa su metaliniais stulpais. Stogas yra sutapdintas plokščiasis, dengtas bitumine danga, ir buvo atnaujintas. Langai mediniai dvigubi, durys metalinės.
Inžinerinė įranga: šildymas centralizuotas (rūsyje yra katilas), vietinis vandentiekis su filtrais rūsyje, vietinis nuotekų šalinimas su įrengtais valymo įrenginiais. Vėdinimas natūralus.
Papildomai žemės sklype yra neregistruotas pagalbinio ūkio pastatas, plane pažymėtas 2I1/b, kurio plotas 105.26 kv. m. Apdailos detalės: sienos dažytos, padengtos plytelėmis arba be apdailos; lubos rūsio dalyje apšiltintos poliuretano putomis, kitur dažytos, be apdailos ar su medinėmis dailylentėmis; grindys betonuotos.
Aukcionui taikomas Hipotekos nutarties apribojimas. Turto apžiūra viešai nepateikta.
Vertinamas turtas yra ant nuomojamo valstybinės žemės sklypo, unikalus numeris 4400-0357-3978, kadastrinis numeris 4107/0600:496 Bezdonių k.v., kurio bendras plotas yra 0.2761 ha. Žemės sklypo nuomos terminas yra nustatytas 50 metų, pradedant nuo 2004-10-12. Žemės sklypo reljefas tolygus, konfigūracija keturkampė, apaugęs natūralia pieva.
Pastato bendras plotas yra 1619.76 kv. m. Jis suskirstytas į: rūsio plotą (643.40 kv. m) su pagalbinėmis patalpomis ir įrengtu katilu bei vandens filtrais; pirmo aukšto pagrindinį plotą (631.32 kv. m), skirtą pirminės paskirties eksploatacijai; ir antro aukšto patalpas (345.04 kv. m), kurios apžiūros metu yra pritaikytos dalinai gyvenimui (įrengta virtuvė, san. mazgas su dušu ir tualetu, įrengtas pečiukas) ir dalinai naudojamos kaip pagalbinės patalpos.
Pastato fizinė būklė vertinama kaip vidutinė. Konstrukcijos: pamatai - betono blokai, juostiniai; sienos ir pertvaros - plytų mūras; perdangos - gelžbetoninės plokštės. Ant pastato yra naujai įrengtos stebėjimo kameros, taip pat įrengta betoninė rampa su metaliniais stulpais. Stogas yra sutapdintas plokščiasis, dengtas bitumine danga, ir buvo atnaujintas. Langai mediniai dvigubi, durys metalinės.
Inžinerinė įranga: šildymas centralizuotas (rūsyje yra katilas), vietinis vandentiekis su filtrais rūsyje, vietinis nuotekų šalinimas su įrengtais valymo įrenginiais. Vėdinimas natūralus.
Papildomai žemės sklype yra neregistruotas pagalbinio ūkio pastatas, plane pažymėtas 2I1/b, kurio plotas 105.26 kv. m. Apdailos detalės: sienos dažytos, padengtos plytelėmis arba be apdailos; lubos rūsio dalyje apšiltintos poliuretano putomis, kitur dažytos, be apdailos ar su medinėmis dailylentėmis; grindys betonuotos.
Aukcionui taikomas Hipotekos nutarties apribojimas. Turto apžiūra viešai nepateikta.
📍 Objekto lokacija
📍 Vilniaus r. sav. Liepių k.
❓ Dažnai užduodami klausimai
Kokia pradinė gamybinio pastato kaina Vilniaus rajone, Liepių kaime?
Pradinė kaina antstolių varžytynėse yra 126400 EUR.
Kada baigiasi šio gamybinio pastato aukcionas?
Aukcionas baigiasi 2025-10-22 13:28:59.
Koks parduodamo turto bendras plotas ir kokia jo dalis parduodama?
Bendras pastato plotas yra 1619.76 kv. m, o parduodama 114545/161976 dalis.
Kokia yra pagrindinė turto apribojimo sąlyga?
Pagrindinis apribojimas yra Hipotekos nutartis.
Ar pastatas parduodamas kartu su žemės sklypu?
Pastatas yra ant ne nuosavos, bet valstybinės žemės sklypo, kurio nuomos sutartis galioja 50 metų (nuo 2004-10-12) ir kurio plotas 0.2761 ha.
Kokia anksčiau buvo pastato paskirtis ir kokia fizinė būklė?
Anksčiau pastatas buvo eksploatuojamas kaip mėsos kombinatas. Fizinė būklė vertinama kaip vidutinė.