📝 Aprašymas
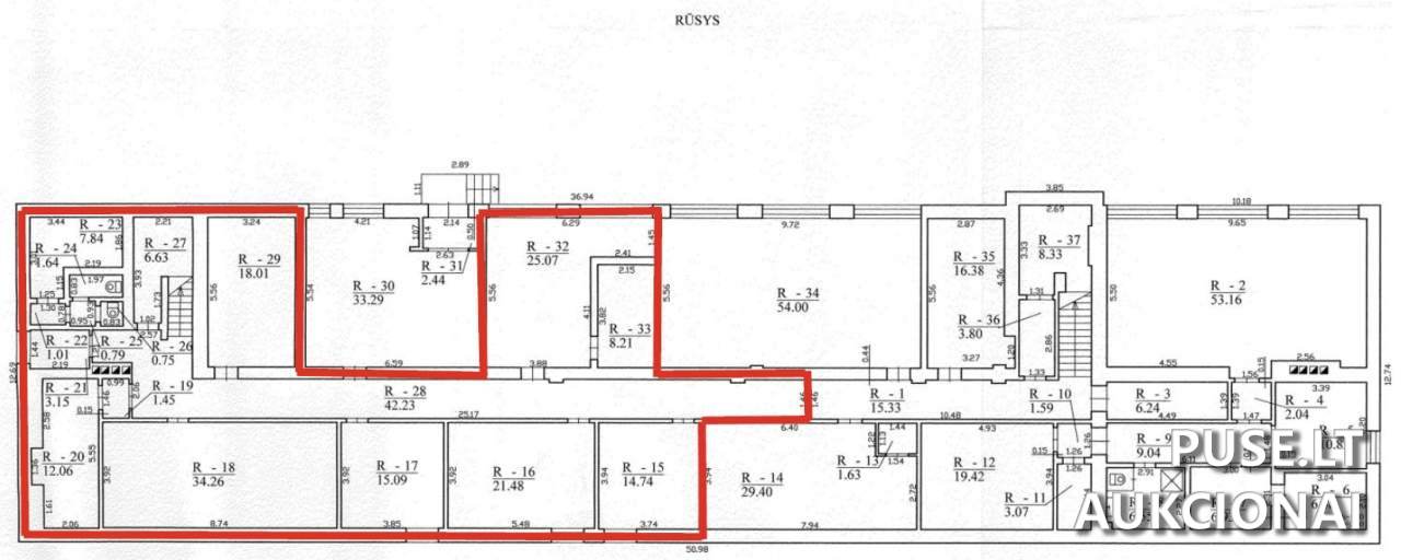
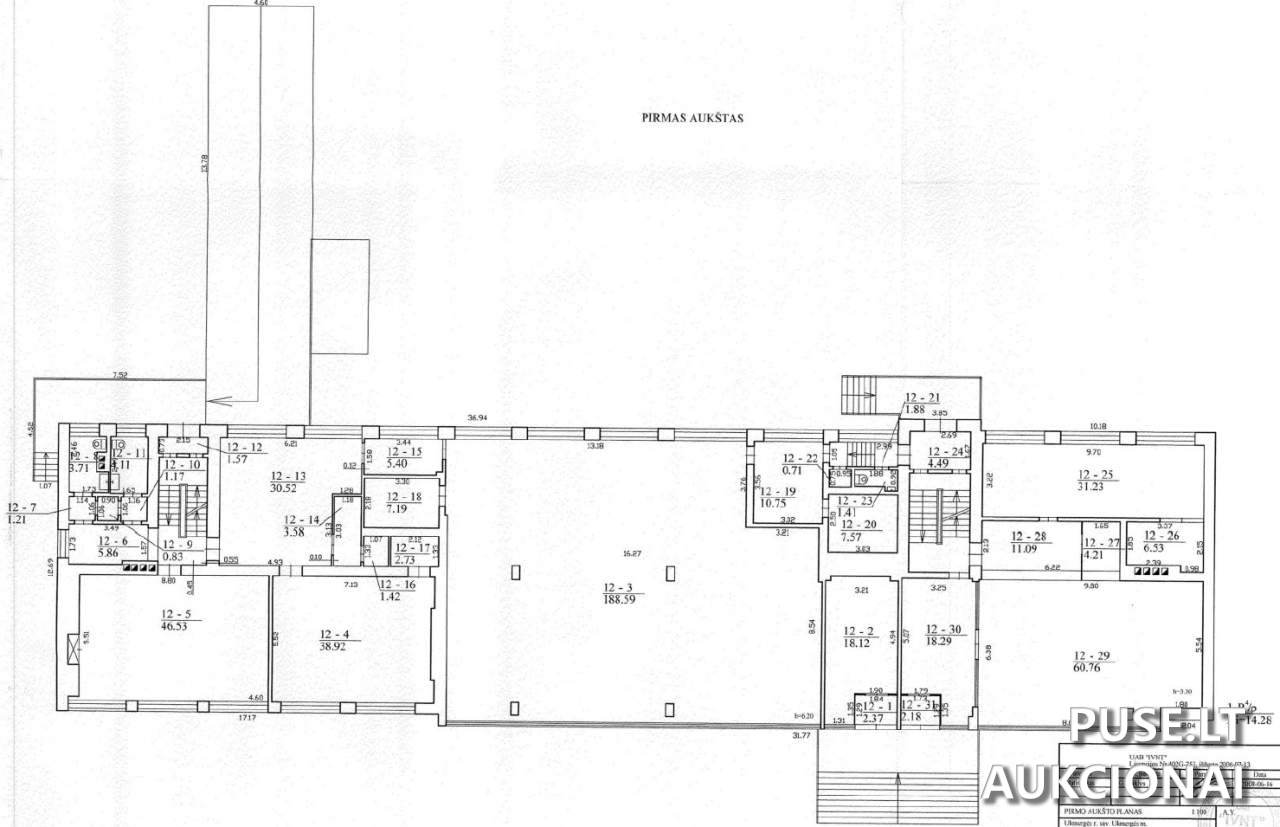
Parduodamos dalis (1/2) administracinės paskirties pastato, esančio Ukmergės mieste, Kauno g. 11. Šis objektas pasižymi didele bendra 1193,66 kv. m naudinga ploto apimtimi, įskaitant keturis aukštus ir rūsiu.Pastato statybos metai yra 1977, o 2008 metais atlikta rekonstrukcija, šiuo metu baigtumas siekia 88 proc. Patalpos turi vietinį centrinį šildymą, komunalinį vandentiekį ir nuotekų šalinimo sistemas. Pagrindinė nauda – jau veikiantys nuomos sutarčių srautai: išnuomotas bendras plotas siekia 56,23 kv. m (patalpos 14-1, 14-2, 14-3, 14-4 ir iki 5 kv. m stogo/palėpės dalies).
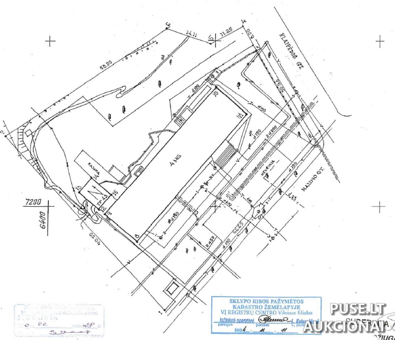
Objektui priklauso ir žemės sklypas, kurio dalis (0,2041 ha iš viso 0,4083 ha) nuomojama valstybinėje žemėje iki 2040-03-15. Žemės sklypo naudojimo būdas yra komercinės paskirties objektų teritorijos. Už 2024 metus sumokėtas valstybinės žemės nuomos mokestis siekia 1047,99 Eur.
Aukcionas pradės vykti 2025-10-20 09:00:00 ir baigsis 2025-10-21 13:59:59. Svarbu užtikrinti laiku registraciją, kuri vyksta nuo 2025-10-09 00:00:00 iki 2025-10-15 23:59:59. Pradinis kaina nustatyta 206000 EUR, o dalyvavimui būtina sumokėti 10000 EUR garantinį mokestį.
Sutarties sudarymo išlaidas, įskaitant notaro atlyginimą, apmoka Pirkėjas. Pirkėjas taip pat įsipareigoja savarankiškai įvertinti visus turto apribojimus, statusą ir galimybes, nes Pardavėjas neatsako už vizijas ar ketinimus naudoti turtą. Jei laimėtojas nepasirašo sutarties, garantinis įnašas negrąžinamas ir gali tekti atlyginti naujo aukciono išlaidas.
Objektui priklauso ir žemės sklypas, kurio dalis (0,2041 ha iš viso 0,4083 ha) nuomojama valstybinėje žemėje iki 2040-03-15. Žemės sklypo naudojimo būdas yra komercinės paskirties objektų teritorijos. Už 2024 metus sumokėtas valstybinės žemės nuomos mokestis siekia 1047,99 Eur.
Aukcionas pradės vykti 2025-10-20 09:00:00 ir baigsis 2025-10-21 13:59:59. Svarbu užtikrinti laiku registraciją, kuri vyksta nuo 2025-10-09 00:00:00 iki 2025-10-15 23:59:59. Pradinis kaina nustatyta 206000 EUR, o dalyvavimui būtina sumokėti 10000 EUR garantinį mokestį.
Sutarties sudarymo išlaidas, įskaitant notaro atlyginimą, apmoka Pirkėjas. Pirkėjas taip pat įsipareigoja savarankiškai įvertinti visus turto apribojimus, statusą ir galimybes, nes Pardavėjas neatsako už vizijas ar ketinimus naudoti turtą. Jei laimėtojas nepasirašo sutarties, garantinis įnašas negrąžinamas ir gali tekti atlyginti naujo aukciono išlaidas.
📍 Objekto lokacija
📍 Ukmergės r. sav. Ukmergės m. Kauno g. 11
❓ Dažnai užduodami klausimai
Kokia yra parduodamų administracinių patalpų Ukmergėje Kauno g. 11 pradinė kaina ir garantinis mokestis?
Pradinė kaina siekia 206000 EUR, o dalyvio garantinis mokestis yra 10000 EUR.
Kada vyksta 1/2 administracinių patalpų aukcionas ir iki kada reikia spėti užsiregistruoti?
Aukcionas vyks 2025-10-20 09:00:00 – 2025-10-21 13:59:59. Registracija vyksta nuo 2025-10-09 00:00:00 iki 2025-10-15 23:59:59.
Koks bendras parduodamo turto plotas ir kokie pagrindiniai inžineriniai patogumai užtikrinti?
Bendra parduodama plotas yra 1193,66 kv. m, su rūsiu, pirmu, antru, trečiu ir ketvirtu aukštais. Užtikrintas vietinis centrinis šildymas, komunalinis vandentiekis ir nuotekų šalinimas.
Ar yra dalis turto išnuomota ir kokios sąlygos žemės nuomos sutarčiai?
Taip, išnuomotas plotas 56,23 kv. m pagal dvi nuomos sutartis. Žemės sklypo nuomos sutartis galioja iki 2040-03-15, už 2024 metus nuomos mokestis sumokėtas (1047,99 Eur).
Kas apmoka sutarties sudarymo išlaidas ir kur bus pasirašoma pirkimo-pardavimo sutartis?
Sutarties sudarymo išlaidas ir notaro atlyginimą apmoka aukciono laimėtojas (Pirkėjas). Sutartis pasirašoma Pardavėjo pasiūlytame Vilniaus miesto notaro biure.
Koks unikalus nekilnojamojo daikto numeris ir statybos metai?
Unikalus numeris yra 8197-7000-7018. Pastatas statytas 1977 metais, rekonstruotas 2008 metais.
Ar Pardavėjas teikia garantijas dėl turto tinkamumo numatytai veiklai?
Ne, Pardavėjas neatsako už parduodamo turto plėtros galimybes, tinkamumą įsigytojo ketinimams ar galimus defektus – pirkėjas privalo viską įvertinti savarankiškai.