📝 Aprašymas
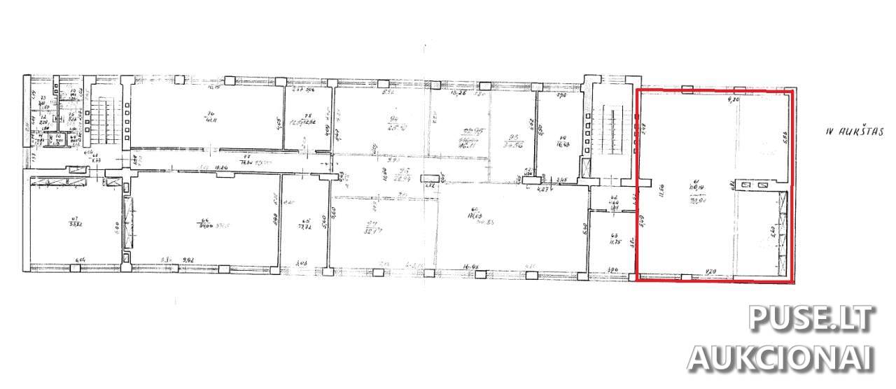
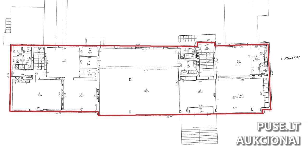
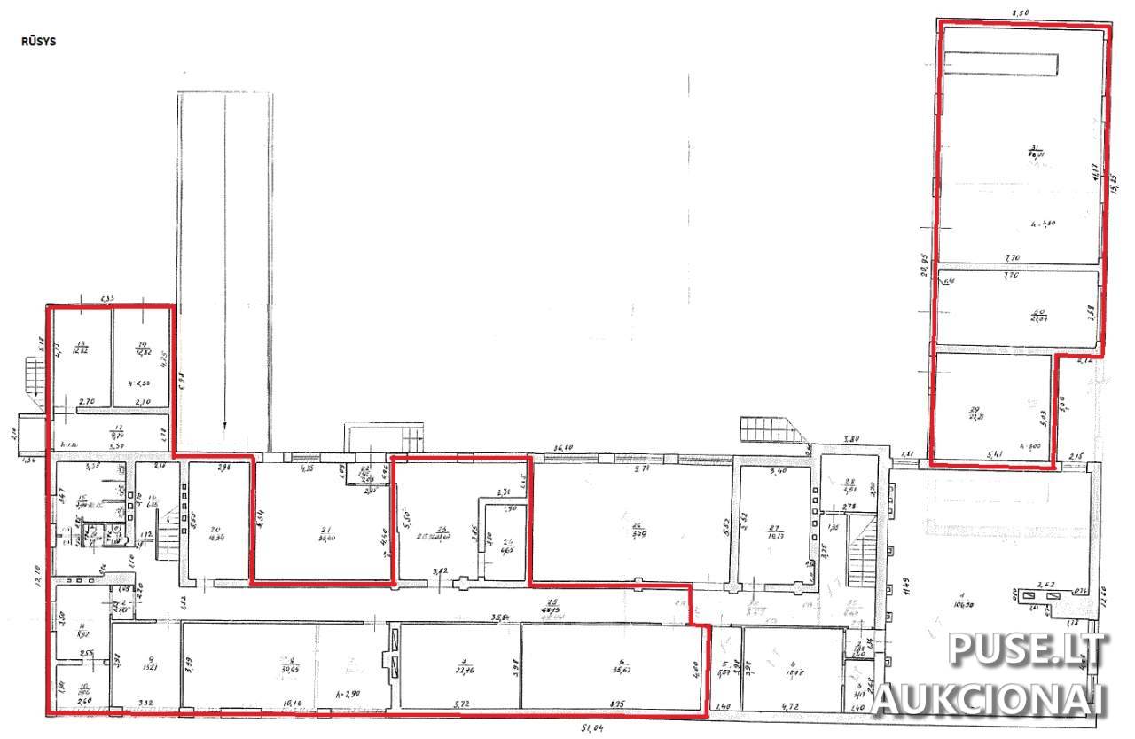
Parduodamos 55/100 dalys administracinės paskirties patalpų Ryšių mazgo pastate, esančiame Rokiškio mieste, Respublikos g. 92. Ši investicinė galimybė apima 1469,23 kv. m bendro ploto dalį iš visų 2608,11 kv. m pastate. Pastatas statytas 1972 metais, baigtumas 100 proc., žymėjimas plane 1B4p. Patalpos yra keturių aukštų pastate su rūsiu ir garažais. Elektros galia nurodyta 30 kW. Komunikacijos - centrinis šildymas, komunalinis vandentiekis ir nuotekų šalinimas. Bendraturčiais nėra sudarytos Patalpų naudojimosi tvarkos, tačiau su pardavėju buvo naudojamasi 425,39 kv. m rūsio ir garažų plotu, 543,01 kv. m pirmo aukšto plotu, 336,11 kv. m antro aukšto plotu ir 110,99 kv. m ketvirto aukšto plotu. Jums priklausančios nenaudojamos dalys yra trečiame aukšte (0 kv. m).
Objektui priklauso valstybinis žemės sklypas, kuriam sudaryta ilgalaikė nuomos sutartis iki 2099-08-08. Nuomojamas 0,1515 ha sklypo dalis iš bendro 0,2759 ha ploto, naudojimo būdas - komercinių objektų. Už 2024 metus sumokėta žemės nuomos mokesčio suma yra 136,59 Eur. Pirkėjui pereina teisė naudotis valstybine žeme, tačiau galimybė ją nuomoti ar pirkti reglamentuojama teisės aktų ir priklausomai nuo savivaldybės sprendimų, Pirkėjas pats turi kreiptis dėl nuomos sutarčių pakeitimų.
Pradinė kaina nurodyta 185000 Eur, o aukciono dalyvio garantinis mokestis yra 5000 EUR. Pirkimo-pardavimo sutarties sudarymo išlaidas, įskaitant notarą, apmoka laimėtojas. Pirkėjas prisiima pilną atsakomybę atlikti visus būtinus patikrinimus dėl turto būklės, teisinio statuso, apribojimų ir galimybės jį naudoti pagal numatytą viziją, kreipiantis į atitinkamas institucijas (pvz., savivaldybę, Valstybinę teritorijų planavimo ir statybos inspekciją, Nacionalinę žemės tarnybą). Laimėjusiam dalyviui atsiskaitymo terminas ne ilgesnis nei 90 kalendorinių dienų nuo sutarties pasirašymo.
Objektui priklauso valstybinis žemės sklypas, kuriam sudaryta ilgalaikė nuomos sutartis iki 2099-08-08. Nuomojamas 0,1515 ha sklypo dalis iš bendro 0,2759 ha ploto, naudojimo būdas - komercinių objektų. Už 2024 metus sumokėta žemės nuomos mokesčio suma yra 136,59 Eur. Pirkėjui pereina teisė naudotis valstybine žeme, tačiau galimybė ją nuomoti ar pirkti reglamentuojama teisės aktų ir priklausomai nuo savivaldybės sprendimų, Pirkėjas pats turi kreiptis dėl nuomos sutarčių pakeitimų.
Pradinė kaina nurodyta 185000 Eur, o aukciono dalyvio garantinis mokestis yra 5000 EUR. Pirkimo-pardavimo sutarties sudarymo išlaidas, įskaitant notarą, apmoka laimėtojas. Pirkėjas prisiima pilną atsakomybę atlikti visus būtinus patikrinimus dėl turto būklės, teisinio statuso, apribojimų ir galimybės jį naudoti pagal numatytą viziją, kreipiantis į atitinkamas institucijas (pvz., savivaldybę, Valstybinę teritorijų planavimo ir statybos inspekciją, Nacionalinę žemės tarnybą). Laimėjusiam dalyviui atsiskaitymo terminas ne ilgesnis nei 90 kalendorinių dienų nuo sutarties pasirašymo.
📍 Objekto lokacija
📍 Rokiškio r. sav. Rokiškio m. Respublikos g. 92
❓ Dažnai užduodami klausimai
Kada baigiasi turto aukcionas, kuriame parduodamos Ryšių mazgo patalpos Respublikos g. 92?
Aukcionas baigiasi 2025-10-21 13:59:59. Paskelbtas startas 2025-10-20 09:00:00.
Kokia yra pradinė šio parduodamo 55/100 dalies administracinio pastato, Ryšių mazgo, kaina?
Pradinė aukciono kaina yra 185000 EUR.
Koks yra reikalingas garantinis mokestis dalyvauti šiame aukcione?
Aukciono dalyvio garantinis mokestis yra 5000 EUR.
Koks yra bendras parduodamas plotas ir kokia dalis priklauso?
Parduodamos 55/100 dalys, bendras parduodamas plotas yra 1469,23 kv. m (iš 2608,11 kv. m).
Kokie yra pagrindiniai Ryšių mazgo pastate esančių patalpų naudojimosi apribojimai ar sąlygos?
Patalpų naudojimosi tvarkos su bendraturčiais nėra sudarytos. Žemės sklypas valstybinis, nuomos sutartis galioja iki 2099-08-08.
Kada vyksta turto apžiūra ir kur kreiptis dėl papildomos informacijos?
Turto apžiūra vykdoma tik iš anksto susitarus, iki registracijos į aukcioną pabaigos (iki 2025-10-15 23:59:59). Dėl informacijos kreiptis el. paštu [email protected].