📝 Aprašymas
Parduodamas pakartotiniame aukcione 1/1 dalis 1198,41 kvadratinių metrų bendro ploto dviejų aukštų administracinės paskirties pastato Marijampolės mieste, Kęstučio gatvėje 5. Pastato statybos metai yra 1989, atlikta rekonstrukcija 2004-2008 metais, baigtumas siekia 100 procentų. Pastato žymėjimas plane yra 1B2p.
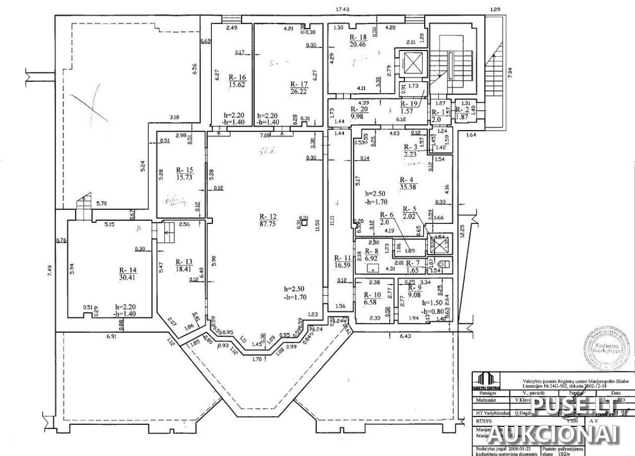
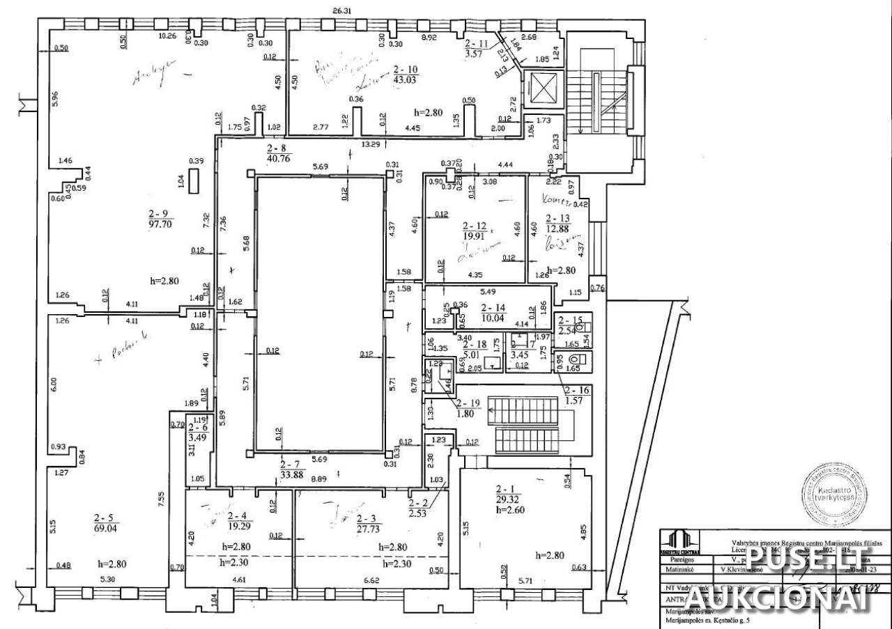
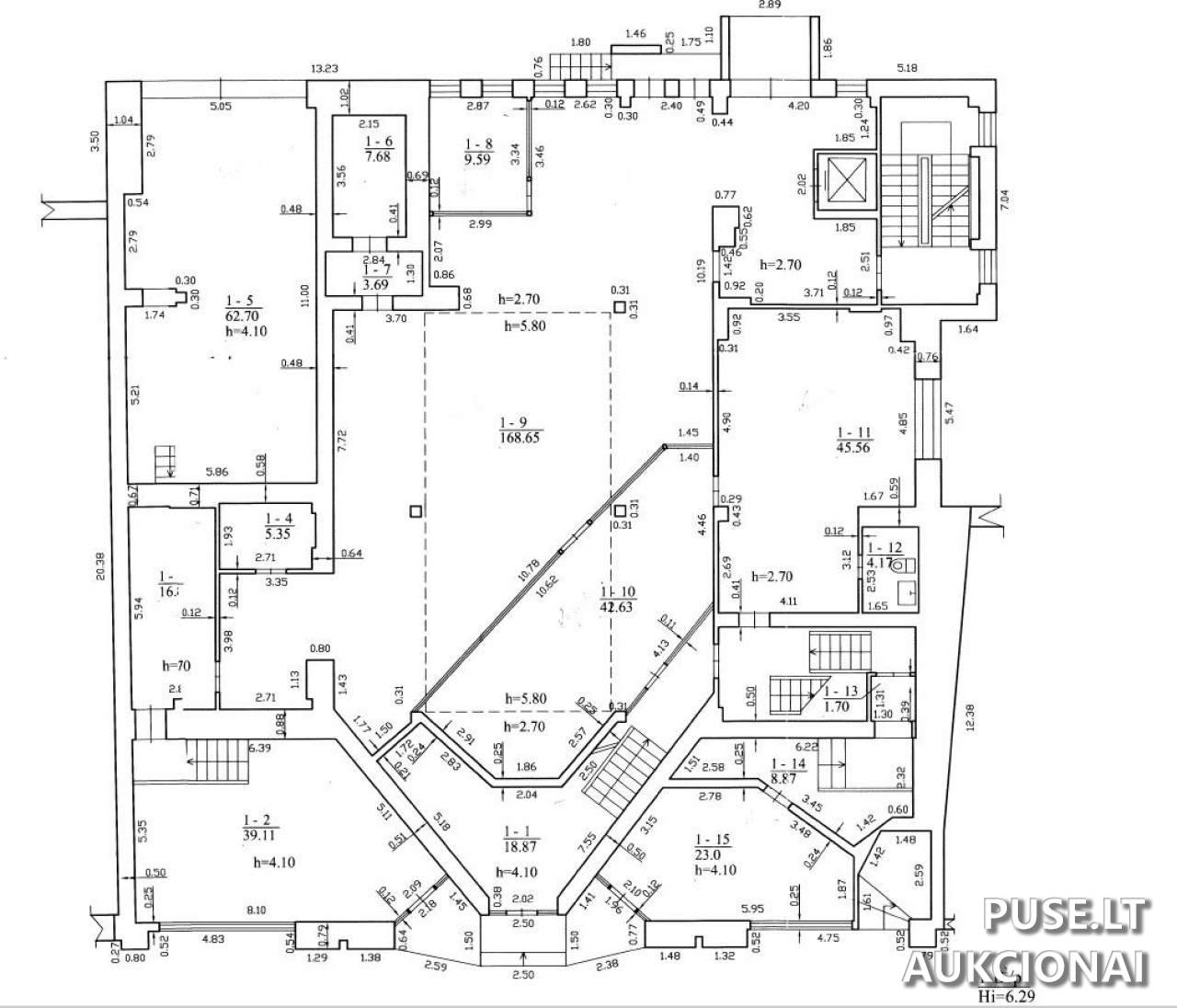
Bendra pastato naudingoji erdvė suskirstyta: rūsyje yra 312,47 m2, pirmame aukšte 458,40 m2, o antrame aukšte 427,54 m2. Pastatas turi 75 kW elektros galią, komunalinį vandentiekį ir nuotekų šalinimą bei centralizuotą šildymą. Šiuo metu yra sudarytos dvi patalpų nuomos sutartys, nuomojamas bendras 70,98 m2 plotas pirmame aukšte (patalpų indeksai: 1-2, 1-14, 1-15).
Objektui priklauso 0,1420 ha ploto valstybinis žemės sklypas, su kuriuo sudaryta ilgalaikė nuomos sutartis iki 2089-05-18. Šio sklypo paskirtis yra kita, o už 2024 metus sumokėtas žemės nuomos mokestis sudarė 218,40 Eur. Pirkėjas atsako už visų žemės klausimų išnagrinėjimą, įskaitant galimybę nuomos sąlygas keisti ar pirkti žemę iš savivaldybės ar kitų institucijų.
Pradinė nekilnojamojo turto kaina aukcione yra 567000 EUR. Dalyvio registracija vyksta nuo 2025-10-09 iki 2025-10-15 23:59:59. Pats pakartotinis aukcionas vyks nuo 2025-10-20 09:00:00 iki 2025-10-21 13:59:59. Būtinas mokėti garantinis mokestis siekia 10000 EUR.
Aukciono laimėtojas padengia sutarties sudarymo išlaidas, įskaitant notaro atlyginimą, o sutartis pasirašoma Pardavėjo pasiūlytoje vietoje Vilniaus miesto notaro biure. Pardavėjas neatsako už lūkesčius atitinkančią turto naudojimo viziją ar galimas rekonstrukcijas.
Bendra pastato naudingoji erdvė suskirstyta: rūsyje yra 312,47 m2, pirmame aukšte 458,40 m2, o antrame aukšte 427,54 m2. Pastatas turi 75 kW elektros galią, komunalinį vandentiekį ir nuotekų šalinimą bei centralizuotą šildymą. Šiuo metu yra sudarytos dvi patalpų nuomos sutartys, nuomojamas bendras 70,98 m2 plotas pirmame aukšte (patalpų indeksai: 1-2, 1-14, 1-15).
Objektui priklauso 0,1420 ha ploto valstybinis žemės sklypas, su kuriuo sudaryta ilgalaikė nuomos sutartis iki 2089-05-18. Šio sklypo paskirtis yra kita, o už 2024 metus sumokėtas žemės nuomos mokestis sudarė 218,40 Eur. Pirkėjas atsako už visų žemės klausimų išnagrinėjimą, įskaitant galimybę nuomos sąlygas keisti ar pirkti žemę iš savivaldybės ar kitų institucijų.
Pradinė nekilnojamojo turto kaina aukcione yra 567000 EUR. Dalyvio registracija vyksta nuo 2025-10-09 iki 2025-10-15 23:59:59. Pats pakartotinis aukcionas vyks nuo 2025-10-20 09:00:00 iki 2025-10-21 13:59:59. Būtinas mokėti garantinis mokestis siekia 10000 EUR.
Aukciono laimėtojas padengia sutarties sudarymo išlaidas, įskaitant notaro atlyginimą, o sutartis pasirašoma Pardavėjo pasiūlytoje vietoje Vilniaus miesto notaro biure. Pardavėjas neatsako už lūkesčius atitinkančią turto naudojimo viziją ar galimas rekonstrukcijas.
📍 Objekto lokacija
📍 Marijampolės sav. Marijampolės m. Kęstučio g. 5
❓ Dažnai užduodami klausimai
Kokia administracinio pastato Kęstučio g. 5, Marijampolėje, pradinė kaina?
Pradinė kaina nustatyta 567000 EUR.
Kada vyks pakartotinis aukcionas šiam pastatui?
Aukcionas vyks nuo 2025-10-20 09:00:00 iki 2025-10-21 13:59:59.
Koks yra būtinas sumokėti garantinis mokestis dalyvaujant aukcione?
Garantinis mokestis yra 10000 EUR, mokamas AB Lietuvos pašto sąskaita.
Koks yra parduodamo pastato bendras plotas ir pagrindinė paskirtis?
Parduodamo pastato bendras plotas yra 1198,41 m2, tai yra administracinės paskirties pastatas.
Ką reikia žinoti apie žemės sklypą, priklausantį pastatui Kęstučio g. 5?
Žemės sklypas yra valstybinis, 0,1420 ha ploto, su nuomos sutartimi iki 2089-05-18. Pirkėjas prisiima su žemės nuomos teisių perleidimu susijusias rizikas ir sąlygas.
Kada baigiasi registracija į aukcioną ir kada galima apžiūrėti turtą?
Registracija baigiasi 2025-10-15 23:59:59. Apžiūra vykdoma tik iš anksto susitarus su organizatoriumi iki registracijos pabaigos.
Ar pastate yra nuomininkų ir ar tai turi įtakos pirkimo sąlygoms?
Yra sudarytos dvi patalpų nuomos sutartys, išnuomotas plotas 70,98 m2. Pardavėjas neatsako už turto tinkamumą pirkėjo ketinimams, su tuo susijusias rizikas prisiima pirkėjas.