📝 Aprašymas
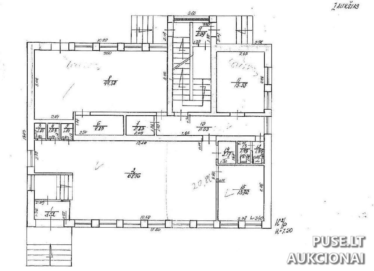
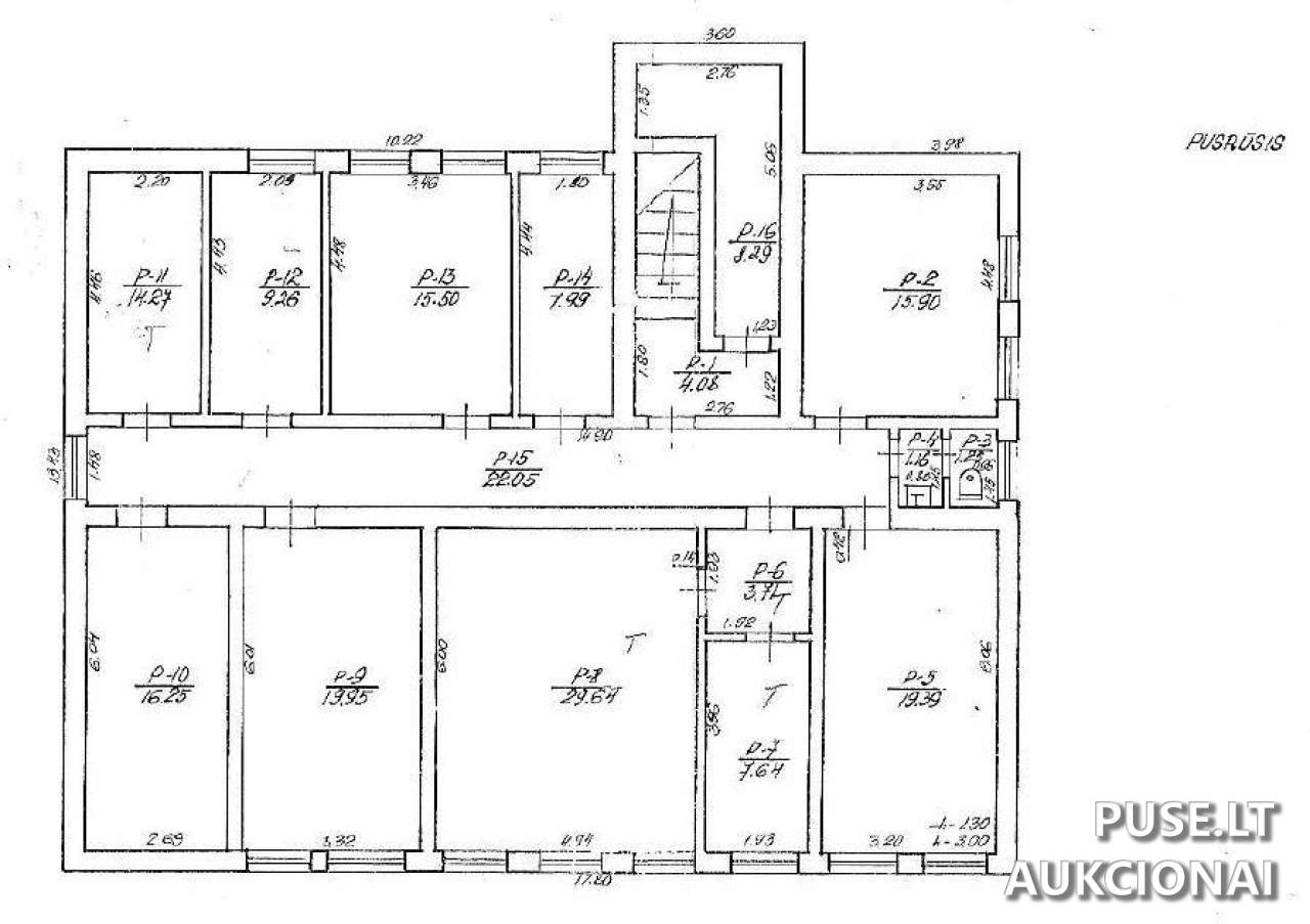
Parduodamas pakartotiniu aukcionu 552.44 kv. m. ploto administracinės paskirties pastatas, esantis Biržų rajono savivaldybėje, Nemunėlio Radviliškio miestelyje, Biržų g. 3. Pastato statybos baigtumas siekia 100 proc., o statybos metai yra 1988. Pradinė kaina šiam nekilnojamajam turtui yra 14200 EUR. Visos 1/1 pastato dalies pardavimas vykdomas el. aukciono būdu.
Pastatas priklauso 0.1096 ha valstybinės žemės sklypui, kuriam nuomos sutartis galioja iki 2102-09-09. Valstybinės žemės nuomos mokestis, sumokėtas už 2024 metus, sudarė 13.92 Eur. Administracinėms reikmėms pastate numatyta 5 kW elektros galia.
Svarbi sąlyga pirkėjams: 18 kv. m. ploto patalpos (pažymėtos Nr. 11) ir 2.45 kv. m. dalis patalpos Nr. 10 yra išnuomotos užsienio įmonei pagal nuomos sutartį, kuri galioja iki 2033 m. spalio 14 d. Tai reiškia, kad pastatas parduodamas su nuomininkais, o pirkėjas perima nuomos sutarties sąlygas tuo pačiu metu negalėdamas naudotis visa patalpa.
Sutarties sudarymo išlaidas, įskaitant notaro atlyginimą, apmoka aukciono laimėtojas (Pirkėjas). Sutartis pasirašoma Pardavėjo pasirinktame Vilniaus miesto notaro biure. Pardavėjas neatsako už parduodamo turto pritaikymą Pirkėjo ketinimams, vizijoms ar galimas rekonstrukcijas. Privaloma iki aukciono dienos įsivertinti turto būklę, teisinį statusą ir visus galimus apribojimus ar servitutus.
Aukciono dalyvio garantinis mokestis yra 1000 EUR. Aukcionas vyks 2025 m. spalio 20 d. 09:00:00 val. ir baigsis 2025 m. spalio 21 d. 13:59:59 val. Registracija į aukcioną baigiama 2025 m. spalio 15 d. 23:59:59 val. Jei Pirkėjas nepasirašo sutarties laiku, garantinis įnašas negrąžinamas, o Pirkėjas gali būti įpareigotas atlyginti naujo aukciono išlaidas ir galimą kainų skirtumą.
Turto apžiūros vykdomos tik iš anksto susitarus su organizatoriumi.
Pastatas priklauso 0.1096 ha valstybinės žemės sklypui, kuriam nuomos sutartis galioja iki 2102-09-09. Valstybinės žemės nuomos mokestis, sumokėtas už 2024 metus, sudarė 13.92 Eur. Administracinėms reikmėms pastate numatyta 5 kW elektros galia.
Svarbi sąlyga pirkėjams: 18 kv. m. ploto patalpos (pažymėtos Nr. 11) ir 2.45 kv. m. dalis patalpos Nr. 10 yra išnuomotos užsienio įmonei pagal nuomos sutartį, kuri galioja iki 2033 m. spalio 14 d. Tai reiškia, kad pastatas parduodamas su nuomininkais, o pirkėjas perima nuomos sutarties sąlygas tuo pačiu metu negalėdamas naudotis visa patalpa.
Sutarties sudarymo išlaidas, įskaitant notaro atlyginimą, apmoka aukciono laimėtojas (Pirkėjas). Sutartis pasirašoma Pardavėjo pasirinktame Vilniaus miesto notaro biure. Pardavėjas neatsako už parduodamo turto pritaikymą Pirkėjo ketinimams, vizijoms ar galimas rekonstrukcijas. Privaloma iki aukciono dienos įsivertinti turto būklę, teisinį statusą ir visus galimus apribojimus ar servitutus.
Aukciono dalyvio garantinis mokestis yra 1000 EUR. Aukcionas vyks 2025 m. spalio 20 d. 09:00:00 val. ir baigsis 2025 m. spalio 21 d. 13:59:59 val. Registracija į aukcioną baigiama 2025 m. spalio 15 d. 23:59:59 val. Jei Pirkėjas nepasirašo sutarties laiku, garantinis įnašas negrąžinamas, o Pirkėjas gali būti įpareigotas atlyginti naujo aukciono išlaidas ir galimą kainų skirtumą.
Turto apžiūros vykdomos tik iš anksto susitarus su organizatoriumi.
📍 Objekto lokacija
📍 Biržų r. sav. Nemunėlio Radviliškio mstl. Biržų g. 3
❓ Dažnai užduodami klausimai
Kokia administracinio pastato Nemunėlio Radviliškyje pradinė pardavimo kaina?
Pradinė pastato kaina yra 14200 EUR.
Kada vyksta pakartotinis aukcionas šiam pastatui?
Aukcionas prasideda 2025 m. spalio 20 d. 09:00:00 val. ir baigiasi 2025 m. spalio 21 d. 13:59:59 val.
Koks yra reikalaujamas dalyvio garantinis mokestis?
Privalomas mokestis aukciono dalyvio garantiniam įnašui sudaro 1000 EUR.
Kokie yra pagrindiniai apribojimai ar sąlygos šio objekto įsigijimui?
Pastato dalis (18 kv. m. ir 2.45 kv. m.) yra išnuomota iki 2033-10-14. Pirkėjas taip pat perima valstybinės žemės nuomos sutarties sąlygas, galiojančias iki 2102-09-09. Sutarties sudarymo išlaidas moka Pirkėjas.
Kokia yra pastato registracijos pabaigos data?
Registracija į aukcioną baigiasi 2025 m. spalio 15 d. 23:59:59 val.
Koks yra parduodamo administracinio pastato plotas ir unikalus numeris?
Pastato plotas yra 552.44 kv. m., o jo unikalus numeris yra 3698-8013-5018.