📝 Aprašymas
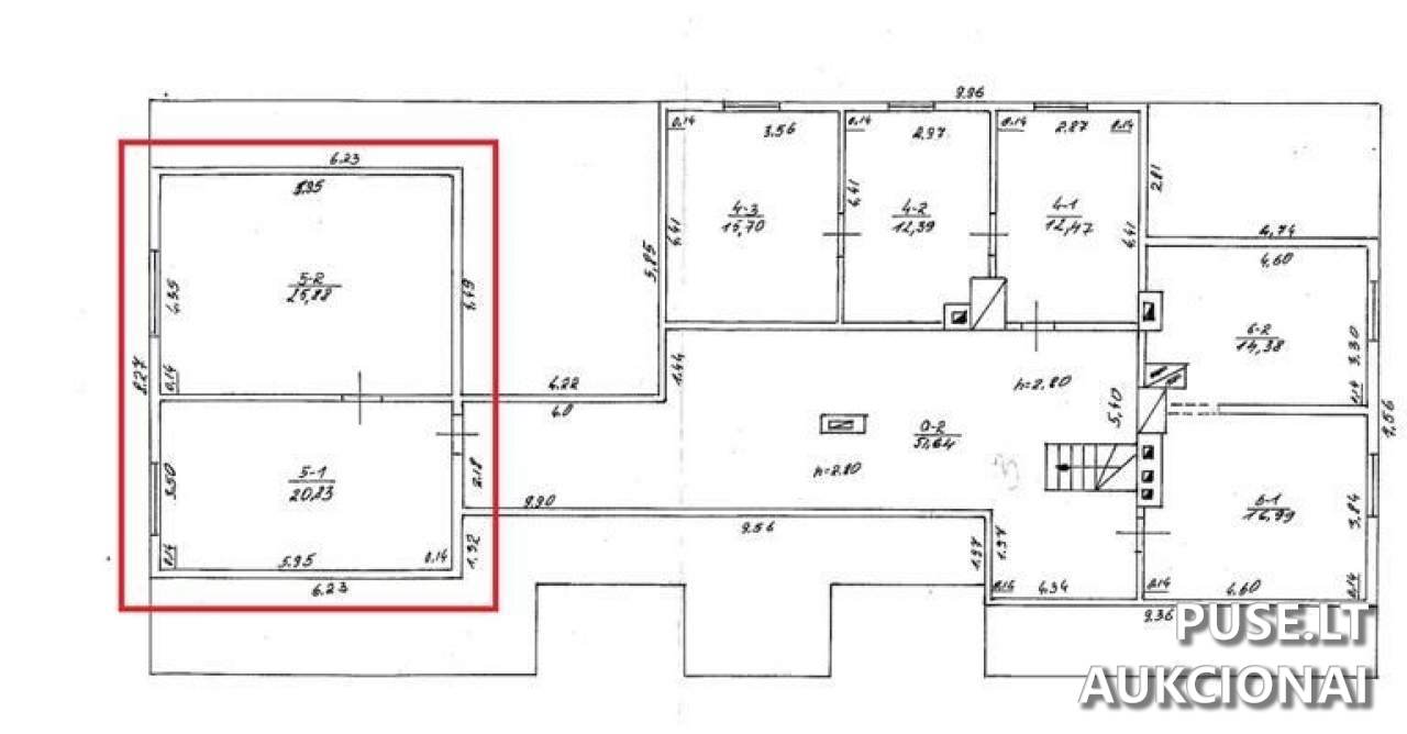
Parduodamas 46.71 kv. m bendro ploto butas Plungės rajono savivaldybėje, Žlibinų kaime, Žarėnų g. 63-5, per Turto banko pakartotinį aukcioną. Pradinė šio nekilnojamojo turto pardavimo kaina yra itin maža – 756 EUR. Parduodama visa 1/1 dalis. Bute yra bendrai naudojamos patalpos: 1/4 dalis (a-1) 10,97 kv. m, 1/3 dalis (a-2) 51,64 kv. m, iš viso 19,95 kv. m. Prie buto taip pat parduodama 1/6 dalis kiemo statinių, įskaitant šulinį ir lauko tualetus (unikalus Nr. 6893-3005-4140).
Aukcionas prasideda 2025-10-15 09:00:00 ir baigiasi 2025-10-16 13:59:59. Registracija galioja nuo 2025-10-08 00:00:00 iki 2025-10-10 23:59:59. Privaloma sumokėti 75 EUR garantinį mokestį ir 1 EUR registracijos mokestį.
Svarbu atkreipti dėmesį į specifines pardavimo sąlygas: nekilnojamasis turtas parduodamas esamos fizinės ir funkcinės būklės. Valstybės įmonė Turto bankas neįsipareigoja nustatyti tikslios kadastro duomenų būklės ir neiškraustyti esamų daiktų. Bendraturčiai nėra sutarę dėl bendros dalinės nuosavybės naudojimosi tvarkos. Komunikacijos bute nėra. Gyvenamasis namas yra valstybinėje žemėje, kurios sklypas nėra suformuotas, teisės į žemės sklypą neperleidžiamos.
Papildoma rizika susijusi su inžineriniu statiniu – lauko tualetu (unikalus Nr. 6893-3005-4140), kuris neatitinka teisės aktų reikalavimų. Potencialiems pirkėjams rekomenduojama apžiūrėti objektą vietoje ir įvertinti visas su tokios būklės statinio pirkimu susijusias teisines bei ekonomines rizikas. Turto bankas neatsako už jokius nuostolius, kylančius dėl statinio trūkumų ar jo neatitikimo reikalavimams ar tinkamumui naudoti.
Aukcionas prasideda 2025-10-15 09:00:00 ir baigiasi 2025-10-16 13:59:59. Registracija galioja nuo 2025-10-08 00:00:00 iki 2025-10-10 23:59:59. Privaloma sumokėti 75 EUR garantinį mokestį ir 1 EUR registracijos mokestį.
Svarbu atkreipti dėmesį į specifines pardavimo sąlygas: nekilnojamasis turtas parduodamas esamos fizinės ir funkcinės būklės. Valstybės įmonė Turto bankas neįsipareigoja nustatyti tikslios kadastro duomenų būklės ir neiškraustyti esamų daiktų. Bendraturčiai nėra sutarę dėl bendros dalinės nuosavybės naudojimosi tvarkos. Komunikacijos bute nėra. Gyvenamasis namas yra valstybinėje žemėje, kurios sklypas nėra suformuotas, teisės į žemės sklypą neperleidžiamos.
Papildoma rizika susijusi su inžineriniu statiniu – lauko tualetu (unikalus Nr. 6893-3005-4140), kuris neatitinka teisės aktų reikalavimų. Potencialiems pirkėjams rekomenduojama apžiūrėti objektą vietoje ir įvertinti visas su tokios būklės statinio pirkimu susijusias teisines bei ekonomines rizikas. Turto bankas neatsako už jokius nuostolius, kylančius dėl statinio trūkumų ar jo neatitikimo reikalavimams ar tinkamumui naudoti.
📍 Objekto lokacija
📍 Plungės r. sav. Žlibinų k. Žarėnų g. 63-5
❓ Dažnai užduodami klausimai
Kokia yra pradinė buto kaina ir kokie papildomi mokesčiai taikomi?
Pradinė kaina yra 756 EUR. Taip pat reikia sumokėti 75 EUR garantinį mokestį ir 1 EUR registracijos mokestį.
Kada vyksta registracija ir kada baigiasi aukcionas?
Registracija vyksta nuo 2025-10-08 00:00:00 iki 2025-10-10 23:59:59. Aukcionas prasideda 2025-10-15 09:00:00 ir baigiasi 2025-10-16 13:59:59.
Koks yra turto unikalus numeris ir bendras plotas?
Buto unikalus numeris yra 6893-3005-4019:0005, o bendras plotas siekia 46,71 kv. m.
Ar parduodamas turtas turi komunikacijas ir kokia yra situacija su žemės sklypu?
Komunikacijų bute nėra. Namas stovi valstybinėje valstybinėje žemėje, kurios sklypas nesuformuotas, ir teisės į žemės sklypą nėra perleidžiamos.
Kokios atsakomybės VĮ Turto bankas neprisiima parduodant šį objektą?
VĮ Turto bankas neįsipareigoja nustatyti aktualios nekilnojamojo turto kadastro duomenų būklės, nei iškraustyti jame esančių daiktų. Pirkėjas prisiima rizikas dėl lauko tualeto neatitikimo reikalavimams.
Koks yra Pirkimo-pardavimo sutarties projekto kontaktas?
Dėl detalesnės informacijos apie sutarties projektus kreiptis į Turto pardavimų skyriaus sandorių specialistę.