Nuomojamos administracinės patalpos Vilniuje, A. Juozapavičiaus g. 9, 87.93 kv. m. Autonominis įrengimas
📝 Aprašymas
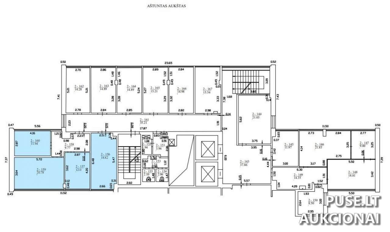
Vilniaus miesto savivaldybėje, A. Juozapavičiaus g. 9, nuomojamos administracinės paskirties patalpos, parduodamos pakartotiniu nuomos konkursu. Bendra nuomojama erdvė, įskaitant bendro naudojimo patalpas, sudaro 87,93 kv. m. Šis plotas apima 8 aukšte esančias indikuotas patalpas: 2-156, 2-157, 2-159, 2-160, kurių bendras naudingas plotas yra 63,54 kv. m.
Nuomojamos patalpos yra esamos būklės. Nuomininkas turi galimybę patalpas įsirengti pagal savo specifinius poreikius, prisiimdamas visus įrengimo sąnaudų įsipareigojimus.
Konkurso organizatorius yra Valstybės įmonė Turto bankas (įm. k. 112021042). Pradinis nuomos kaina nustatyta 0 EUR. Privalomas registracijos mokestis – 50 EUR. Suinteresuoti asmenys turėtų atkreipti dėmesį į griežtus registracijos terminus.
Turto unikalus numeris – 1097-3000-1019:0005. Paskelbtas nuomos konkursas numato, kad aukcionas prasideda 2025-10-15 09:00:00 ir baigiasi 2025-10-16 13:59:59. Registracija į konkursą vyksta nuo 2025-10-06 iki 2025-10-08 23:59:59. Dalyvio registracijos mokestis sumokamas pavedimu į AB SEB banko sąskaitą, nurodant konkretaus e. konkurso numerį.
Potencialūs nuomininkai gali apžiūrėti nuomojamą turtą 2025-09-24 – 2025-10-08, darbo dienomis nuo 10:00 iki 15:00 valandos, iš anksto informavus kontaktinį asmenį. Detalesnės ilgalaikės nuomos sąlygos ir sutarties projektai prieinami per Valstybės ilgalaikio materialiojo turto nuomos elektroninių konkursų sistemas.
Nuomojamos patalpos yra esamos būklės. Nuomininkas turi galimybę patalpas įsirengti pagal savo specifinius poreikius, prisiimdamas visus įrengimo sąnaudų įsipareigojimus.
Konkurso organizatorius yra Valstybės įmonė Turto bankas (įm. k. 112021042). Pradinis nuomos kaina nustatyta 0 EUR. Privalomas registracijos mokestis – 50 EUR. Suinteresuoti asmenys turėtų atkreipti dėmesį į griežtus registracijos terminus.
Turto unikalus numeris – 1097-3000-1019:0005. Paskelbtas nuomos konkursas numato, kad aukcionas prasideda 2025-10-15 09:00:00 ir baigiasi 2025-10-16 13:59:59. Registracija į konkursą vyksta nuo 2025-10-06 iki 2025-10-08 23:59:59. Dalyvio registracijos mokestis sumokamas pavedimu į AB SEB banko sąskaitą, nurodant konkretaus e. konkurso numerį.
Potencialūs nuomininkai gali apžiūrėti nuomojamą turtą 2025-09-24 – 2025-10-08, darbo dienomis nuo 10:00 iki 15:00 valandos, iš anksto informavus kontaktinį asmenį. Detalesnės ilgalaikės nuomos sąlygos ir sutarties projektai prieinami per Valstybės ilgalaikio materialiojo turto nuomos elektroninių konkursų sistemas.
📍 Objekto lokacija
📍 Vilniaus m. sav. Vilniaus m. A. Juozapavičiaus g. 9-2
❓ Dažnai užduodami klausimai
Kokia bendra nuomojama patalpų ir bendro naudojimo erdvė A. Juozapavičiaus g. 9?
Bendra nuomojama erdvė, įskaitant bendro naudojimo patalpas, sudaro 87,93 kv. m. Konkretūs administraciniai indeksai: 2-156, 2-157, 2-159, 2-160.
Kada vyksta šio pakartotinio nuomos konkurso aukcionas?
Aukcionas vyks 2025-10-15 09:00:00 ir baigsis 2025-10-16 13:59:59.
Kokia yra pradinė nuomos kaina ir kokį papildomą mokestį reikia sumokėti?
Pradinė kaina nustatyta 0 EUR. Privalomas registracijos mokestis yra 50 EUR.
Koks terminas taikomas registracijai į nuomos konkursą A. Juozapavičiaus g. 9 nuomojamoms patalpoms?
Registracija prasideda 2025-10-06 00:00:00 ir baigiasi 2025-10-08 23:59:59.
Kokia yra patalpų būklė ir ar yra galimybė jas pritaikyti nuomininko poreikiams?
Patalpos nuomojamos esamos būklės. Nuomininkas turi teisę savo lėšomis patalpas įsirengti pagal savo poreikius.
Kuo skiriasi patalpų plotas (63,54 kv. m) nuo bendro nuomojamo ploto (87,93 kv. m)?
63,54 kv. m yra specifinių administracinių patalpų plotas (indeksai: 2-156, 2-157, 2-159, 2-160), o 87,93 kv. m apima šį plotą kartu su bendro naudojimo patalpomis.