Garažo bokso aukcionas Panevėžyje Staniūnų g. 67B, kaina 2770 EUR
📝 Aprašymas
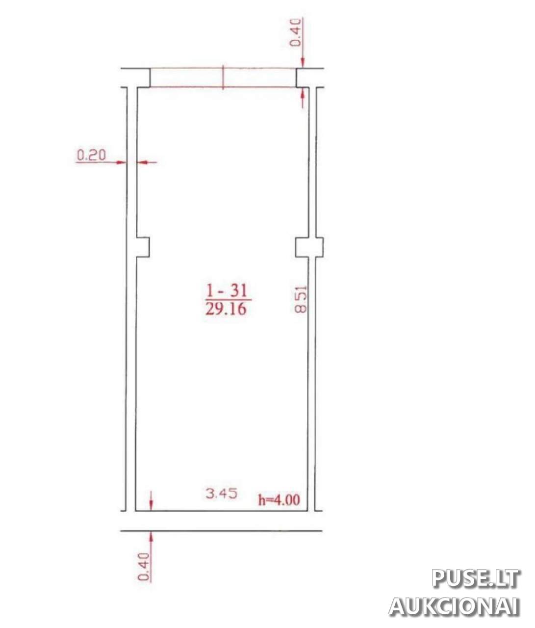
Parduodamas 1/1 dalis garažo bokso Panevėžio miesto savivaldybėje, Staniūnų gatvėje 67B-31. Šis nekilnojamasis turtas yra parduodamas kaip pirminis turtas ir pasižymi 29.16 kv. m bendru plotu, unikalus numeris 2797-2004-9013:0031. Garažo bokso pradinė kaina aukcione yra 2770 EUR.
Nekilnojamasis turtas bus parduodamas esamos fizinės ir funkcinės būklės, pagal galiojančius kadastro duomenis. Pardavėjas, VĮ Turto bankas, neįsipareigoja nustatyti aktualios kadastro būklės ar iškraustyti jame esamų daiktų. Parduodamas objektas yra suformuotame žemės sklype (unikalus numeris 2701-0025-0213), tačiau teisės į šį žemės sklypą nėra perleidžiamos.
Aukcionas prasideda 2025-11-10 09:00:00 ir baigiasi 2025-11-11 13:59:59. Dalyvių registracija vyksta nuo 2025-11-03 00:00:00 iki 2025-11-05 23:59:59. Prieš dalyvaujant, būtina sumokėti 10 EUR registracijos mokestį ir 277 EUR garantinį mokestį.
Turto apžiūra organizuojama iš anksto individualiai suderinus laiką, kreipiantis į pardavimų vadybininką iki registracijos aukcione pradžios.
Pardavėjas yra Valstybės įmonė Turto bankas, įmonės kodas 112021042. Pardavėjas nurodo Lietuvos Respubliką kaip savininką.
Nekilnojamasis turtas bus parduodamas esamos fizinės ir funkcinės būklės, pagal galiojančius kadastro duomenis. Pardavėjas, VĮ Turto bankas, neįsipareigoja nustatyti aktualios kadastro būklės ar iškraustyti jame esamų daiktų. Parduodamas objektas yra suformuotame žemės sklype (unikalus numeris 2701-0025-0213), tačiau teisės į šį žemės sklypą nėra perleidžiamos.
Aukcionas prasideda 2025-11-10 09:00:00 ir baigiasi 2025-11-11 13:59:59. Dalyvių registracija vyksta nuo 2025-11-03 00:00:00 iki 2025-11-05 23:59:59. Prieš dalyvaujant, būtina sumokėti 10 EUR registracijos mokestį ir 277 EUR garantinį mokestį.
Turto apžiūra organizuojama iš anksto individualiai suderinus laiką, kreipiantis į pardavimų vadybininką iki registracijos aukcione pradžios.
Pardavėjas yra Valstybės įmonė Turto bankas, įmonės kodas 112021042. Pardavėjas nurodo Lietuvos Respubliką kaip savininką.
📍 Objekto lokacija
📍 Panevėžio m. sav. Panevėžio m. Staniūnų g. 67B-31
❓ Dažnai užduodami klausimai
Kokia garažo bokso pradinė kaina aukcione?
Garažo bokso Staniūnų g. 67B-31 pradinė kaina yra 2770 EUR.
Kada vyksta nekilnojamojo turto aukcionas?
Aukcionas prasideda 2025-11-10 09:00:00 ir baigiasi 2025-11-11 13:59:59.
Koks yra garažo bokso plotas Panevėžyje?
Parduodamo garažo bokso bendras plotas yra 29.16 kv. m, unikalus numeris 2797-2004-9013:0031.
Kokie papildomi mokesčiai yra taikomi dalyvaujant aukcione?
Reikalingas 277 EUR garantinis mokestis ir 10 EUR registracijos mokestis.
Ar parduodamas garažas apima dalį žemės sklypo?
Objektas yra suformuotame, bet teisės į žemės sklypą (unikalus Nr. 2701-0025-0213) nėra perleidžiamos.
Kada baigiasi galimybė registruotis į aukcioną?
Dalyvių registracija baigiasi 2025-11-05 23:59:59.