Didelės administracinės patalpos Druskininkuose, V. Kudirkos g. 39, pradinė kaina 1259200 EUR
📝 Aprašymas
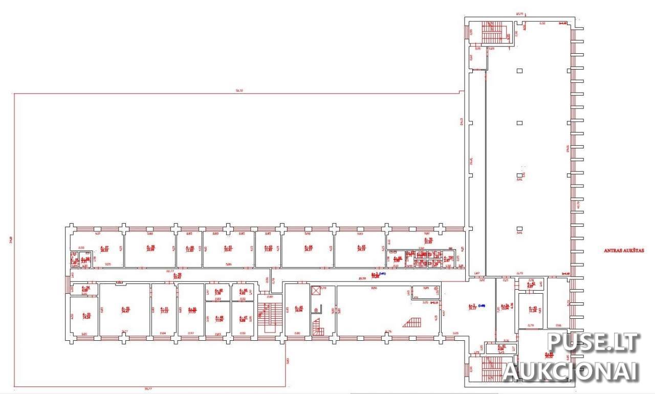
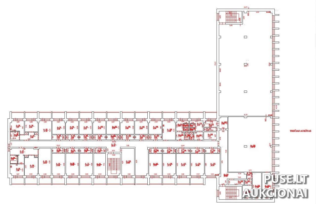
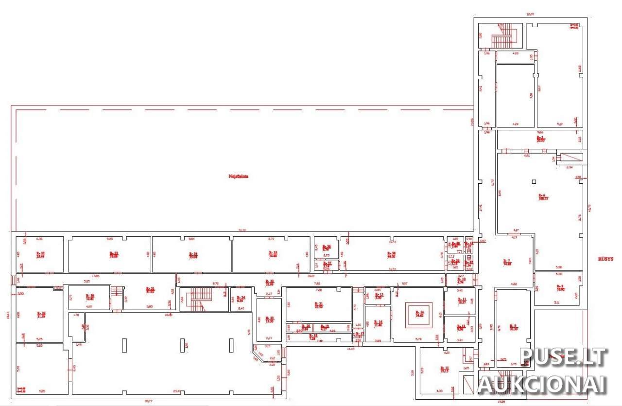
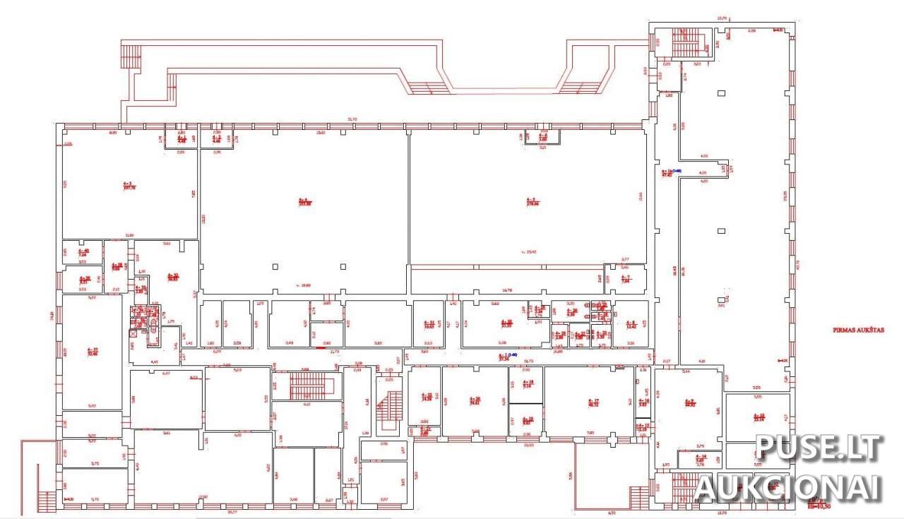
Parduodamos išskirtinės, didelės 2901,12 kv. m ploto administracinės paskirties patalpos Druskininkų mieste, esančios V. Kudirkos g. 39-4, unikalus Nr. 1598-3000-9016:0003. Šis trijų aukštų pastatas su rūsiu (bendras plotas 3058,65 kv. m su bendro naudojimo patalpomis) buvo pastatytas 1983 metais ir yra pilnai baigtas (100 proc. baigtumas). Pastatas žymėtas plane kaip 2B3p.
Bendras pastato plotas apima 757,58 kv. m rūsio, 1075,95 kv. m pirmo aukšto, 402,41 kv. m antro aukšto ir 665,18 kv. m trečio aukšto patalpas. Patalpos yra nekilnojamųjų kultūros vertybių teritorijoje. Už 2024 metus sumokėtas valstybinės žemės nuomos mokestis siekia 1050,53 Eur. Žemės sklypo nuomos sutartis galioja iki 2098-05-25, valstybinio sklypo bendras plotas yra 0,3835 ha iš 0,5129 ha, o naudojimo būdas - komercinių objektų.
Infrastruktūra apima du elektros apskaitos prietaisus su 50 kW ir 28,20 kW galia, centrinį šildymą (šiuo metu atjungtą), taip pat komunalinį vandentiekį ir nuotekų šalinimo sistemą. Svarbu, kad visos sutarties sudarymo išlaidos, įskaitant notaro honorarą, yra mokamos aukciono laimėtojo (Pirkėjo). Pirkėjas prisiima riziką dėl parduodamo turto plėtros, rekonstrukcijos galimybių ir atitikimo jo ketinimams, Pardavėjas neatsako už defektus ar neatitikimą lūkesčiams.
Aukcionas prasideda 2025-10-28 09:00:00 ir baigiasi 2025-10-29 13:59:59. Pradinė kaina nustatyta 1259200 EUR, o dalyvio garantinis mokestis yra 100000 EUR. Registracija į aukcioną vyksta iki 2025-10-23 23:59:59.
Bendras pastato plotas apima 757,58 kv. m rūsio, 1075,95 kv. m pirmo aukšto, 402,41 kv. m antro aukšto ir 665,18 kv. m trečio aukšto patalpas. Patalpos yra nekilnojamųjų kultūros vertybių teritorijoje. Už 2024 metus sumokėtas valstybinės žemės nuomos mokestis siekia 1050,53 Eur. Žemės sklypo nuomos sutartis galioja iki 2098-05-25, valstybinio sklypo bendras plotas yra 0,3835 ha iš 0,5129 ha, o naudojimo būdas - komercinių objektų.
Infrastruktūra apima du elektros apskaitos prietaisus su 50 kW ir 28,20 kW galia, centrinį šildymą (šiuo metu atjungtą), taip pat komunalinį vandentiekį ir nuotekų šalinimo sistemą. Svarbu, kad visos sutarties sudarymo išlaidos, įskaitant notaro honorarą, yra mokamos aukciono laimėtojo (Pirkėjo). Pirkėjas prisiima riziką dėl parduodamo turto plėtros, rekonstrukcijos galimybių ir atitikimo jo ketinimams, Pardavėjas neatsako už defektus ar neatitikimą lūkesčiams.
Aukcionas prasideda 2025-10-28 09:00:00 ir baigiasi 2025-10-29 13:59:59. Pradinė kaina nustatyta 1259200 EUR, o dalyvio garantinis mokestis yra 100000 EUR. Registracija į aukcioną vyksta iki 2025-10-23 23:59:59.
📍 Objekto lokacija
📍 Druskininkų sav. Druskininkų m. V. Kudirkos g. 39-4
❓ Dažnai užduodami klausimai
Kokia administracinių patalpų Druskininkuose V. Kudirkos g. 39 kaina ir pagrindinis plotas?
Pradinė aukciono kaina yra 1259200 EUR. Bendras parduodamos dalies plotas yra 2901,12 kv. m, o su bendro naudojimo patalpomis - 3058,65 kv. m.
Kada vyksta aukcionas ir iki kada galima registruotis?
Aukcionas vyks nuo 2025-10-28 09:00:00 iki 2025-10-29 13:59:59. Registracija baigiasi 2025-10-23 23:59:59.
Koks yra privalomas garantinis (dalyvio) mokestis už šį objektą?
Privalomas garantinis mokestis yra 100000 EUR, kuris turi būti sumokėtas į AB ''Lietuvos paštas'' sąskaitą.
Kokie yra pagrindiniai techniniai objekto parametrai ir vieta?
Pastatas statytas 1983 m., 100 proc. baigtumo. Jis yra nekilnojamųjų kultūros vertybių teritorijoje. Yra 50 kW ir 28,20 kW galios elektros įvadai, komunalinis vandentiekis. Centrinis šildymas šiuo metu atjungtas.
Kokios sąlygos taikomos žemės sklypui, kuriam priklauso patalpos?
Patalpos yra ant erdvaus 0,3835 ha valstybinio žemės sklypo, nuomojamo iki 2098-05-25, su paskirtimi komerciniams objektams. Nuomos mokesčio už 2024 m. 1050,53 Eur buvo sumokėta.
Kas apmoka sutarties sudarymo išlaidas?
Sutarties sudarymo išlaidas, įskaitant atlyginimą notarui, apmoka aukciono laimėtojas (Pirkėjas). Sutartis pasirašoma Pardavėjo pasiūlytame Vilniaus miesto notaro biure.