LT EN RU UA

Butas Vilniuje, Giedraičių g. 17 — 30 000 EUR, 19 m², kultūros paveldo pastate

📝 Aprašymas

★★★★★ ★★★★★ 4.0
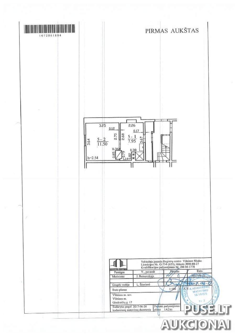
Butas (unikalus Nr. 4400-1151-2711:5101) adresu Giedraičių g. 17-5, Vilnius. Bendras plotas 19,45 kv. m, patalpa įrengta pirmajame aukšte dviejų aukštų mediniame pastate. Patalpos parduodamos esamos būklės. Pastatas yra nekilnojamosios kultūros vertybės dalis (Pastatų komplekso kodas Kultūros vertybių registre 31193, komplekso pastatas kodas 31195) — bet kokie tvarkybos, remonto ar rekonstrukcijos darbai turi būti atliekami pagal Nekilnojamojo kultūros paveldo apsaugos įstatymo reikalavimus ir kitus taikomus teisės aktus. Skolų už elektros energiją objektui nėra; savivaldybė neįsipareigoja užtikrinti, kad elektros tiekimas objekte konkrečiu momentu bus nenutrūkstamas arba kad vidaus elektros tinklas yra techniškai tvarkingas. Su vidaus elektros tinklų atnaujinimu, remontu ar tiekimu susijusius klausimus pirkėjas sprendžia savo lėšomis ir rizika. Nekilnojamojo turto pirkimo–pardavimo sutartis su aukciono laimėtoju turi būti sudaryta per 30 dienų nuo pardavimo aukcione vykdymo dienos, o visa pirkimo kaina sumokėta ne vėliau kaip per 10 dienų po sutarties pasirašymo.

📍 Objekto lokacija

📍 Vilniaus m. sav. Vilniaus m. Giedraičių g. 17-5

❓ Dažnai užduodami klausimai

Kokia yra pradinė aukciono kaina ir kokio dydžio garantinis įnašas?
Pradinė kaina 30 000 EUR. Garantinis įnašas (užstatas) 3 000 EUR, registracijos mokestis 145 EUR.
Kada vyksta aukcionas ir iki kada registracija?
Aukcionas prasideda 2025-11-24 09:00 ir baigiasi 2025-11-25 13:59:59. Registracija prasideda 2025-11-17 00:00 ir baigiasi 2025-11-19 23:59:59.
Kokia yra objekto vieta, plotas ir unikalus numeris?
Adresas: Giedraičių g. 17-5, Vilnius. Plotis 19,45 kv. m (apytiksliai 19 m²). Unikalus Nr. 4400-1151-2711:5101.
Ar paveldosauga turi įtakos planuojamiems darbams objekte?
Taip. Patalpos yra nekilnojamosios kultūros vertybės dalis (KVR kodai 31193 ir 31195) — remontas, rekonstrukcija ir kiti tvarkybos veiksmai privalo atitikti Nekilnojamojo kultūros paveldo apsaugos įstatymo reikalavimus bei kitus teisės aktus.
Kada galima apžiūrėti turtą ir kaip derinti laiką?
Numatytos apžiūros: 2025-11-06 14:45 ir 2025-11-13 14:45. Apžiūros laiką būtina suderinti iš anksto su Šnipiškių seniūnijos atsakingu specialistu per savivaldybės administracijos kanaluose nurodytą kontaktą.
Kokios yra sutarties sudarymo ir apmokėjimo sąlygos po aukciono?
Nekilnojamojo turto pirkimo–pardavimo sutartis turi būti sudaryta per 30 dienų nuo pardavimo aukcione vykdymo dienos. Visa nekilnojamojo turto kaina turi būti sumokėta ne vėliau kaip per 10 dienų po sutarties pasirašymo.
Ar yra skolų už komunalines paslaugas ir kas atsako už elektros tinklus?
Skolų už elektros energijos tiekimą šiam objektui nėra. Savivaldybė neatliekapriežasties ir neįsipareigoja užtikrinti nenutrūkstamo elektros tiekimo; su vidaus elektros tinklų remontu ir tiekimu susijusius klausimus pirkėjas sprendžia savo lėšomis ir rizika.

⏱ Aukciono laikas

Aukcionas pasibaigė

Registracija

Iki: 2025-11-19 23:59:59

Aukcionas

Iki: 2025-11-25 13:59:59

🏠 Objekto informacija

📍 Adresas
Vilniaus m. sav. Vilniaus m. Giedraičių g. 17-5
Tipas
Pakartotinis
Potipis
Patalpos/Butai
Objekto ID: 400413
💰 Pradinė kaina
30000.00 €
Užstatas
3000.00 €
Registracijos mokestis
145.00 €
Mažiausias kainos didinimas
300.00 €
Patvirtinimas
per 2 d. d.
Dalyvauti aukcione
🔑 Raktažodžiai
butas Vilniuje aukcionas butas Giedraiciu g Vilnius pigus butas aukcione nekilnojamojo turto aukcionas Vilnius kulturos paveldo butas pardavimas