LT EN RU UA

Neįrengta pastogė Vilniuje, Plačioji g. 8 – pradinė kaina 10 717 EUR

📝 Aprašymas

★★★★★ ★★★★★ 4.0
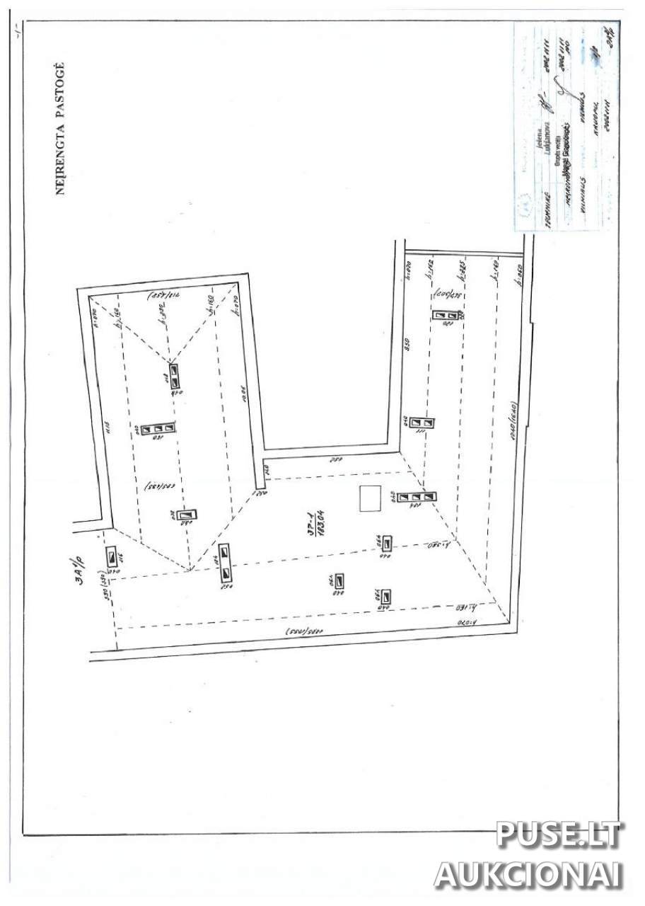
Parduodama 151/1000 dalis negyvenamosios patalpos – neįrengtos pastogės (unikalus Nr. 1094-0176-6020:0049). Dalies plotas 27,64 kv. m iš bendro 183,04 kv. m; pastatas – dviejų aukštų mūrinis. Adresas: Plačioji g. 8, Vilnius. Turtas parduodamas esamos būklės. Patalpos yra nekilnojamosios kultūros vertybės dalis: Namų kompleksas (Kultūros vertybių registro kodas 33747) – pirmas namas (Kultūros vertybių registro kodas 10626); kultūros paveldo objektų naudojimas ir tvarkymas, taip pat remonto/reikšmingesnių statybos darbų vykdymas, reglamentuojami Lietuvos Respublikos nekilnojamojo kultūros paveldo apsaugos įstatymu ir kitais teisės aktais. Skolų už elektros energijos tiekimą objektui nėra; savivaldybė neįsipareigoja užtikrinti nenutrūkstamo elektros tiekimo ar vidinių tinklų techninės būklės. Galimi laikini elektros tiekimo apribojimai; su vidaus elektros tinklų remontu, tiekimu ir atnaujinimu susijusius klausimus pirkėjas sprendžia savo lėšomis ir rizika tiesiogiai su paslaugų tiekėjais. Pradinė kaina: 10 717 EUR. Garantinis įnašas: 1 071 EUR. Registracijos mokestis: 70 EUR. Nekilnojamojo turto pirkimo-pardavimo sutartis turi būti sudaryta per 30 dienų nuo pardavimo aukcione vykdymo dienos; visa kaina turi būti sumokėta ne vėliau kaip per 10 dienų po sutarties pasirašymo.

📍 Objekto lokacija

📍 Vilniaus m. sav. Vilniaus m. Plačioji g. 8

❓ Dažnai užduodami klausimai

Koks yra objekto adresas ir unikalus numeris?
Adresas: Plačioji g. 8, Vilnius. Unikalus numeris: 1094-0176-6020:0049.
Kokia pradinė kaina ir kokie mokėjimai reikalingi registracijai?
Pradinė kaina yra 10 717 EUR. Garantinis įnašas 1 071 EUR. Registracijos mokestis 70 EUR. Visi mokesčiai turi būti sumokėti iki registracijos pabaigos.
Kada vyksta aukcionas ir kada registracija?
Aukcionas prasideda 2025-11-24 09:00 ir baigiasi 2025-11-25 13:59:59. Registracija vyksta nuo 2025-11-17 00:00 iki 2025-11-19 23:59:59.
Kada galima apžiūrėti turtą?
Apžiūros datos: 2025-11-04 10:00 ir 2025-11-11 10:00. Apžiūros laiką būtina suderinti su atsakingu organizacijos darbuotoju (kontaktai teikiami per organizatorių).
Ar turtas yra kultūros paveldo teritorijoje ir ką tai reiškia pirkėjui?
Taip. Patalpos yra kultūros vertybės dalis (Kompleksas 33747; pirmas namas 10626). Bet kokie remonto, rekonstrukcijos ar kiti reikšmingi darbai privalo atitikti kultūros paveldo apsaugos reikalavimus ir teisės aktus.
Kokios yra pirkimo–pardavimo sutarties sąlygos po aukciono?
Nekilnojamojo turto pirkimo–pardavimo sutartis turi būti sudaryta per 30 dienų nuo pardavimo dienos aukcione. Visa nekilnojamojo turto kaina turi būti sumokėta ne vėliau kaip per 10 dienų po sutarties pasirašymo.
Ar yra skolų už elektros energiją ir kas atsako už elektros tinklų tvarkymą?
Skolų už elektros tiekimą šiam objektui nėra. Savivaldybė neįsipareigoja užtikrinti nenutrūkstamo elektros tiekimo ar vidinių tinklų techninės būklės; su visais su elektros tiekimu ir vidaus tinklų remontu susijusiais klausimais pirkėjas turi spręsti savo lėšomis ir rizika.

⏱ Aukciono laikas

Aukcionas pasibaigė

Registracija

Iki: 2025-11-19 23:59:59

Aukcionas

Iki: 2025-11-25 13:59:59

🏠 Objekto informacija

📍 Adresas
Vilniaus m. sav. Vilniaus m. Plačioji g. 8
Tipas
Pakartotinis
Potipis
Patalpos/Butai
Objekto ID: 400436
💰 Pradinė kaina
10717.00 €
Užstatas
1071.00 €
Registracijos mokestis
70.00 €
Mažiausias kainos didinimas
107.00 €
Patvirtinimas
per 2 d. d.
Dalyvauti aukcione
🔑 Raktažodžiai
neįrengta pastogė Vilniuje Plačioji g 8 aukcionas kultūros paveldo turtas pardavimas dalinė nuosavybė 151/1000 NT aukcionas Vilnius pastogė