LT EN RU UA

Butas pardavimui Vilniuje (Plačioji g. 8) – 31 m², 87 840 EUR, kultūros paveldo pastatas

📝 Aprašymas

★★★★★ ★★★★★ 4.0
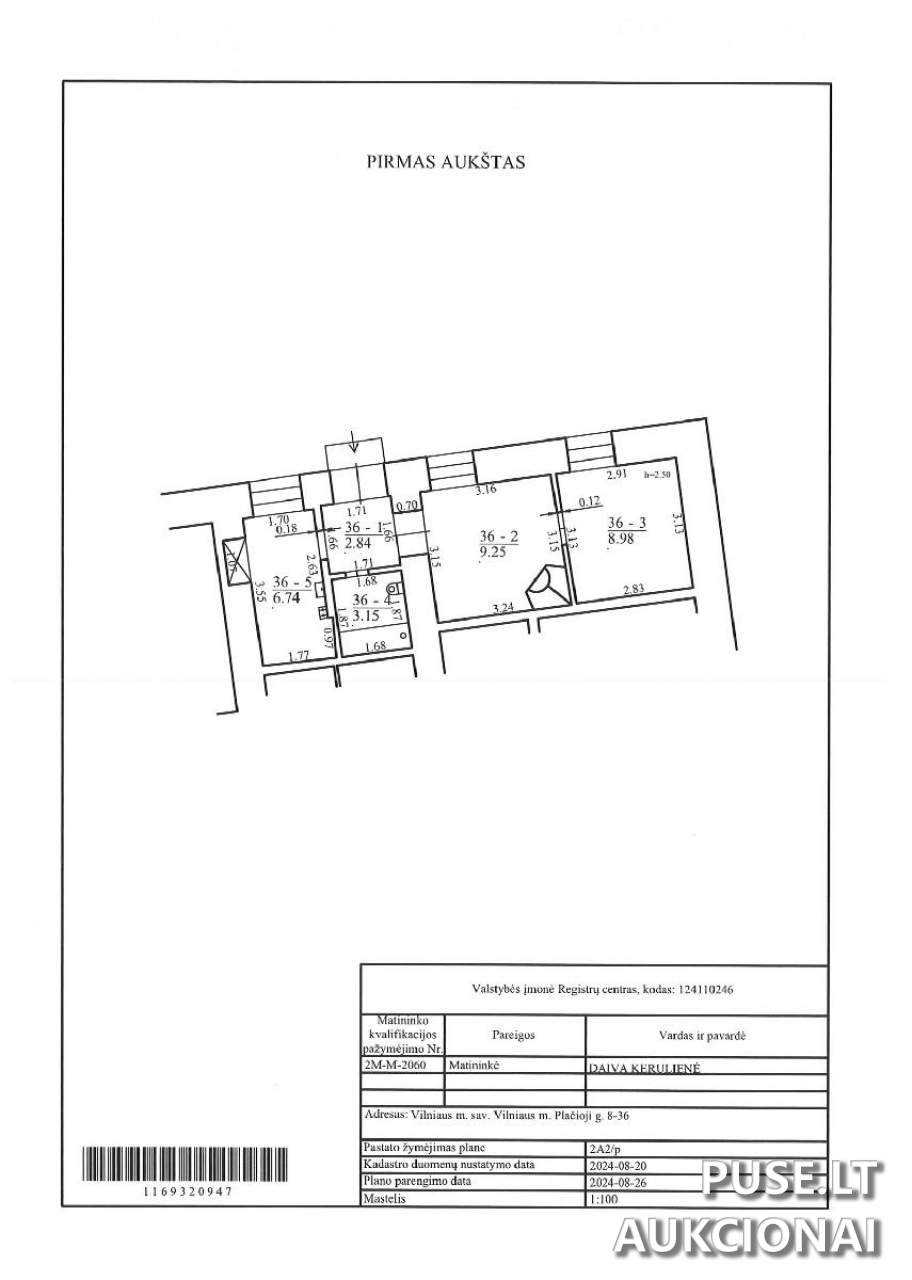
Butas, unik. Nr. 1094-0176-6020:0048, 30,96 kv. m, įrengtas pirmame aukšte iš 2 aukštų mūrinio pastato; adresas Plačioji g. 8-36, Vilnius. Patalpos yra nekilnojamosios kultūros vertybės - Namų kompleksas (Kultūros vertybių registro kodas 33747) ir Namų komplekso pirmas namas (Kultūros vertybių registro kodas 10626). Kultūros paveldo objektų naudojimas, tvarkymas ir statybos darbai (remontas, rekonstrukcija) reglamentuojami Lietuvos Respublikos nekilnojamojo kultūros paveldo apsaugos įstatymu ir kitais teisės aktais; pirkėjas privalo laikytis paveldo apsaugos reikalavimų. Patalpos parduodamos esamos būklės. Skolų už elektros energijos tiekimą objektui nėra. Savivaldybė neįsipareigoja užtikrinti nenutrūkstamo elektros tiekimo ar vidaus elektros tinklų techninio tvarkingumo; gali būti laikini elektros tiekimo apribojimai dėl tiekimo sutrikimų ar kitų priežasčių. Aukciono dalyviams rekomenduojama savarankiškai įvertinti faktinę elektros tiekimo situaciją ir vidaus tinklų būklę. Visi su vidaus elektros tinklų remontu, elektros tiekimu ir jo atnaujinimu susiję klausimai sprendžiami pirkėjo lėšomis ir rizika tiesiogiai su atitinkamomis institucijomis ar paslaugų tiekėjais. Aukciono dalyvio garantinis įnašas ir registracijos mokestis turi būti sumokėti iki registracijos datos. Nekilnojamojo turto pirkimo-pardavimo sutartis su aukciono laimėtoju sudaroma per 30 dienų nuo pardavimo, o kaina turi būti sumokėta ne vėliau kaip per 10 dienų po sutarties pasirašymo.

📍 Objekto lokacija

📍 Vilniaus m. sav. Vilniaus m. Plačioji g. 8-36

❓ Dažnai užduodami klausimai

Kokia yra pradinė šio buto kaina ir kokios garantijos sumos reikia?
Pradinė kaina 87 840 EUR. Garantinis mokestis (garantinis įnašas) 8 784 EUR. Registracijos mokestis 145 EUR.
Kada vyksta aukcionas ir registracija?
Aukcionas prasideda 2025-11-24 09:00 ir baigiasi 2025-11-25 13:59:59. Registracija vykdoma nuo 2025-11-17 00:00 iki 2025-11-19 23:59:59.
Kada galima apžiūrėti turtą?
Numatytos apžiūros 2025-11-11 10:30 ir 2025-11-13 10:30. Apžiūros laiką būtina suderinti su seniūnijos atsakingu darbuotoju; asmens kontaktai pašalinti.
Kokios yra ypatingos nuosavybės ar naudojimo sąlygos?
Patalpos yra kultūros paveldo objekte (KVR kodai 33747 ir 10626). Bet kokie tvarkybos, remonto ar rekonstrukcijos darbai reglamentuojami nekilnojamojo kultūros paveldo apsaugos įstatymu ir kitais teisės aktais; pirkėjas privalo laikytis paveldo reikalavimų.
Kokios yra mokėjimo sąlygos po aukciono laimėjimo?
Nekilnojamojo turto pirkimo-pardavimo sutartis turi būti sudaryta per 30 dienų nuo pardavimo dienos, o visa kaina sumokėta ne vėliau kaip per 10 dienų po sutarties pasirašymo. Garanto ir registracijos mokestis turi būti sumokėti iki registracijos į aukcioną.
Kokia yra turto identifikacija ir vieta?
Butas, unik. Nr. 1094-0176-6020:0048, adresu Plačioji g. 8-36, Vilnius. Plotas 30,96 m², pirmas aukštas iš 2 aukštų mūrinio pastato.

⏱ Aukciono laikas

Aukcionas pasibaigė

Registracija

Iki: 2025-11-19 23:59:59

Aukcionas

Iki: 2025-11-25 13:59:59

🏠 Objekto informacija

📍 Adresas
Vilniaus m. sav. Vilniaus m. Plačioji g. 8-36
Tipas
Pakartotinis
Potipis
Patalpos/Butai
Objekto ID: 400437
💰 Pradinė kaina
87840.00 €
Užstatas
8784.00 €
Registracijos mokestis
145.00 €
Mažiausias kainos didinimas
878.00 €
Patvirtinimas
per 2 d. d.
Dalyvauti aukcione
🔑 Raktažodžiai
butas Vilniuje aukcionas butas Plačioji g 8 Vilnius kultūros paveldo butas Vilniuje nekilnojamojo turto aukcionas Vilnius investicinis butas 31 m2 Vilnius