LT EN RU UA

Pusrūsio patalpos Vilniuje, Polocko g. 11 – dalis 477/10000, pradinė kaina 735 EUR

📝 Aprašymas

★★★★★ ★★★★★ 3.8
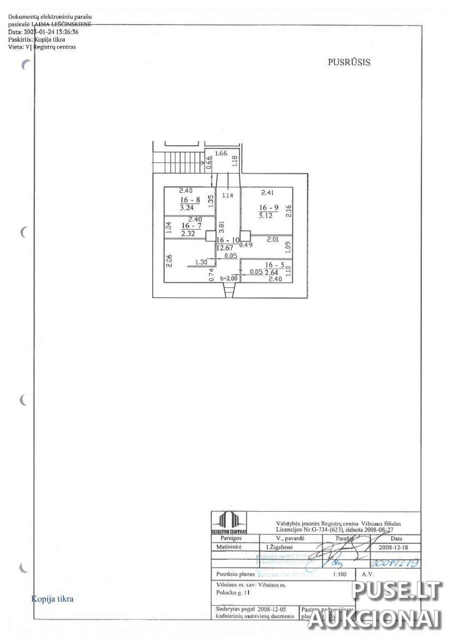
Parduodama 477/10000 dalis negyvenamosios pusrūsio patalpos (unikalus Nr. 4400-1784-2930:7102) – 1,24 kv. m iš 25,99 kv. m, esančios dviejų aukštų mūrinio pastato cokoliniame aukšte, Polocko g. 11, Vilnius. Pastatas yra Vilniaus senojo miesto ir priemiesčių archeologinėje vietovėje (Kultūros vertybių registre kodas 25504) ir Vilniaus senamiesčio teritorijoje, paskelbtoje kultūros paminklu (KVR kodas 16073). Kultūros paveldo objektų naudojimas ir tvarkymas bei statybos (remonto, rekonstrukcijos) darbai šioje teritorijoje reglamentuojami Nekilnojamojo kultūros paveldo apsaugos įstatymu ir kitais teisės aktais. Patalpos parduodamos esamos būklės. Skolų už elektros energijos tiekimą nėra; savivaldybė neįsipareigoja užtikrinti nenutrūkstamo elektros tiekimo ar vidaus tinklų techninės tvarkos. Galimi laikinai elektros tiekimo apribojimai, todėl pirkėjas įsipareigoja savo lėšomis ir rizika spręsti su vidaus tinklų remontu ir elektros tiekimu susijusius klausimus tiesiogiai su paslaugų tiekėjais ar institucijomis.

📍 Objekto lokacija

📍 Vilniaus m. sav. Vilniaus m. Polocko g. 11

❓ Dažnai užduodami klausimai

Kokia yra pradinė kaina ir garantinis įnašas?
Pradinė kaina 735 EUR. Garantinis mokestis (garantinis įnašas) 73 EUR.
Kada vyksta aukcionas ir kada reikia užsiregistruoti?
Aukcionas prasideda 2025-11-24 09:00 ir baigiasi 2025-11-25 13:59:59. Registracija vyksta nuo 2025-11-17 00:00 iki 2025-11-19 23:59:59; garantinis įnašas ir registracijos mokestis turi būti sumokėti iki registracijos pabaigos.
Kada galima apžiūrėti turtą?
Turto apžiūros numatytos 2025-11-05 08:00 ir 2025-11-12 08:00. Apžiūros laiką būtina suderinti su savivaldybės atsakingu darbuotoju per oficialius kanalus.
Kokia yra parduodama turto dalis ir plotas?
Parduodama 477/10000 dalis pusrūsio patalpų, tai atitinka 1,24 kv. m iš viso 25,99 kv. m.
Ar yra paveldosaugos apribojimų?
Taip. Pastatas yra archeologinėje vietovėje (KVR 25504) ir Vilniaus senamiesčio teritorijoje, paskelbtoje kultūros paminklu (KVR 16073). Visi tvarkybos ir statybos darbai reglamentuojami kultūros paveldo apsaugos teisės aktais.
Kokiomis sąlygomis parduodamas turtas dėl elektros tiekimo?
Patalpos parduodamos esamos būklės; skolų už elektros tiekimą nėra, tačiau savivaldybė neįsipareigoja užtikrinti nenutrūkstamo elektros tiekimo ar vidaus tinklų techninės tvarkos. Pirkėjas atsako už vidaus tinklų patikrinimą ir bet kokius remontus bei sujungimus.
Per kiek laiko turi būti sudaryta pirkimo-pardavimo sutartis ir sumokėta kaina?
Sutartis turi būti sudaryta per 30 dienų nuo pardavimo aukcione vykdymo dienos. Visa nekilnojamojo turto kaina turi būti sumokėta ne vėliau kaip per 10 dienų nuo pirkimo-pardavimo sutarties pasirašymo.

⏱ Aukciono laikas

Aukcionas pasibaigė

Registracija

Iki: 2025-11-19 23:59:59

Aukcionas

Iki: 2025-11-25 13:59:59

🏠 Objekto informacija

📍 Adresas
Vilniaus m. sav. Vilniaus m. Polocko g. 11
Tipas
Pakartotinis
Potipis
Patalpos/Butai
Objekto ID: 400438
💰 Pradinė kaina
735.00 €
Užstatas
73.00 €
Registracijos mokestis
70.00 €
Mažiausias kainos didinimas
7.00 €
Patvirtinimas
per 2 d. d.
Dalyvauti aukcione
🔑 Raktažodžiai
pusrūsio patalpos Vilniuje Polocko g. 11 patalpos pardavimas aukcionas nekilnojamas turtas Vilnius dalinė nuosavybė patalpos Vilnius nekilnojamojo turto aukcionas Vilnius