LT EN RU UA

Neįrengta pastogė Vilniuje, Trakų g. 8 — dalis 401/3750, kaina 3 872 EUR

📝 Aprašymas

★★★★★ ★★★★★ 3.8
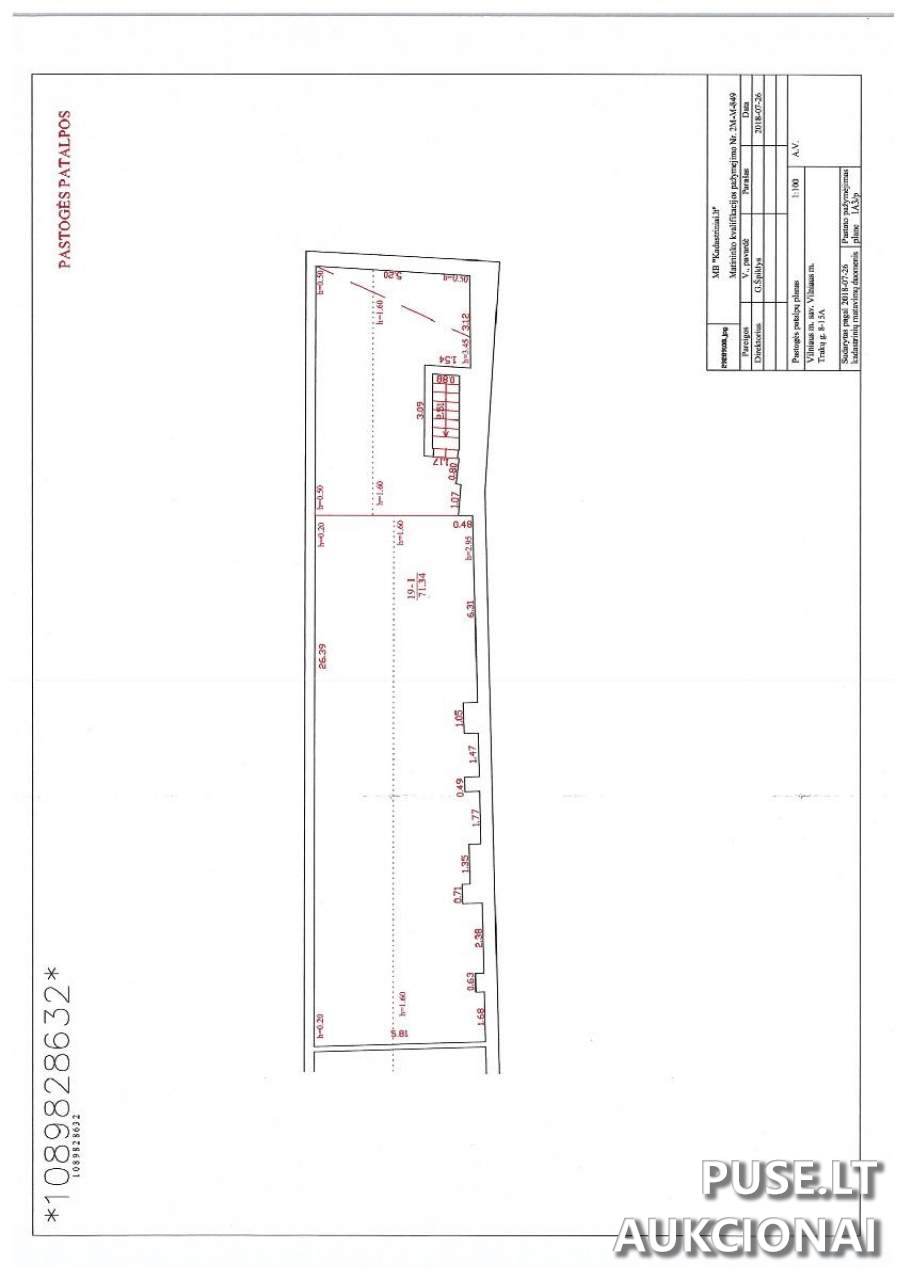
Parduodama 401/3750 dalis negyvenamosios patalpos – neįrengta pastogė (unikalus Nr. 4400-4454-4414:6465). Patalpos užima 7,63 kv. m iš 71,34 kv. m trijų aukštų mūriniame pastate, adresu Trakų g. 8-15A, Vilnius. Pastatas įtrauktas į valstybės saugomų nekilnojamosios kultūros vertybių registrą (komplekso kodas 26985; pietų pastato kodas 26986), todėl bet kokie naudojimo, tvarkymo, remonto ar rekonstravimo darbai yra reglamentuojami Nekilnojamojo kultūros paveldo apsaugos įstatymo bei kitų teisės aktų reikalavimais. Patalpos parduodamos esamos būklės. Apžiūra ribota – patekti į pastogę galima per fiziniam asmeniui priklausantį butą. Šiam objektui skolų už elektros energiją nėra; savivaldybė neįsipareigoja užtikrinti nenutrūkstamo elektros tiekimo ar vidaus tinklų techninio tvarkingumo. Visi su vidaus elektros tinklų remontu, tiekimu ar atnaujinimu susiję darbai bei išlaidos tenka pirkėjui.

📍 Objekto lokacija

📍 Vilniaus m. sav. Vilniaus m. Trakų g. 8-15A

❓ Dažnai užduodami klausimai

Kokia yra pradinė kaina ir garantinis įnašas?
Pradinė kaina yra 3 872 EUR. Garantinis įnašas (garantinis mokestis) – 387 EUR. Registracijos mokestis – 70 EUR.
Kada vyks aukcionas ir iki kada galima registruotis?
Aukcionas prasideda 2025-11-24 09:00 ir baigiasi 2025-11-25 13:59:59. Registracija vyksta nuo 2025-11-17 iki 2025-11-19 23:59:59; garantinis įnašas ir registracijos mokestis turi būti sumokėti iki registracijos pabaigos.
Kur yra objektas ir kokia jo dalis parduodama?
Objektas yra Trakų g. 8-15A, Vilnius. Pardavinėjama 401/3750 dalis neįrengtos pastogės, kuri užima 7,63 kv. m iš 71,34 kv. m (unikalus Nr. 4400-4454-4414:6465).
Ar yra apribojimų dėl paveldo?
Taip. Pastatas priklauso valstybės saugomam nekilnojamosios kultūros vertybių kompleksui (kodai 26985 ir 26986). Bet kokie tvarkymo, remonto ar rekonstravimo darbai bus reglamentuojami kultūros paveldo apsaugos teisės aktais.
Kada galima apžiūrėti patalpas ir kaip suderinti apžiūrą?
Planuojamos apžiūros: 2025-11-05 9:30 ir 2025-11-12 9:30. Apžiūros laiką būtina suderinti iš anksto su darbuotoju, atsakingu už turto apžiūrą (konkrečių kontaktų informacija pašalinta dėl privatumo). Patekti į pastogę įmanoma tik per fiziniam asmeniui priklausantį butą.
Kokios yra mokėjimo ir sutarties sudarymo sąlygos laimėtojui?
Nekilnojamojo turto pirkimo-pardavimo sutartis turi būti sudaryta per 30 dienų nuo pardavimo aukcione vykdymo dienos. Visa pirkimo kaina turi būti sumokėta ne vėliau kaip per 10 dienų po sutarties pasirašymo. Mokėjimai atliekami į Vilniaus miesto savivaldybės administracijos sąskaitą (kodas 188710061, IBAN: LT63 7044 0600 0123 5132).

⏱ Aukciono laikas

Aukcionas pasibaigė

Registracija

Iki: 2025-11-19 23:59:59

Aukcionas

Iki: 2025-11-25 13:59:59

🏠 Objekto informacija

📍 Adresas
Vilniaus m. sav. Vilniaus m. Trakų g. 8-15A
Tipas
Pakartotinis
Potipis
Patalpos/Butai
Objekto ID: 400453
💰 Pradinė kaina
3872.00 €
Užstatas
387.00 €
Registracijos mokestis
70.00 €
Mažiausias kainos didinimas
38.00 €
Patvirtinimas
per 2 d. d.
Dalyvauti aukcione
🔑 Raktažodžiai
neįrengta pastogė Vilniuje Trakų g. 8 pastogė aukcionas nekilnojamojo turto aukcionas Vilnius paveldotas pastatas pastogė pardavimas 401/3750 dalis pastogė 3872 EUR