LT EN RU UA

Administracinės patalpos Marijampolėje, Gamyklų g. 1 – pradinė kaina 220 500 EUR

📝 Aprašymas

★★★★★ ★★★★★ 4.2
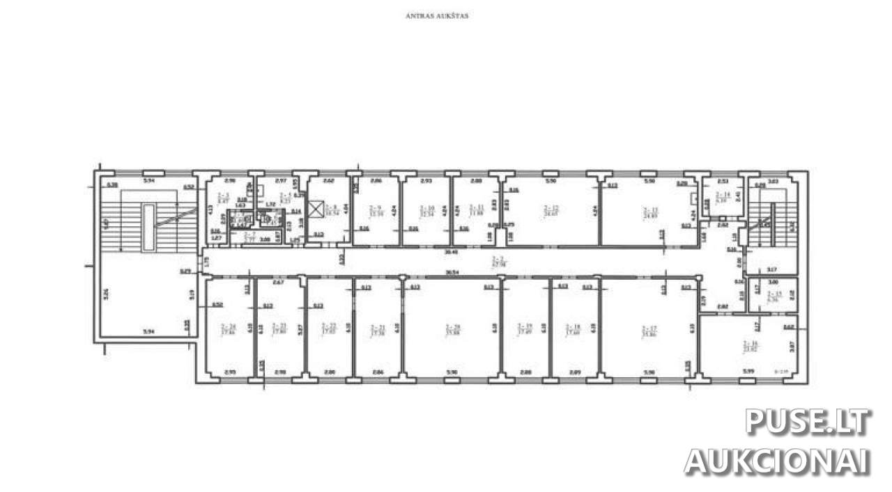
Parduodamas kompleksas Marijampolėje, Gamyklų g. 1 su administracinėmis patalpomis, sandėliu, kiemo aikštelėmis, takais ir dalimis žemės sklypo. Pagrindinės dalys: administracinės patalpos (398,37; 399,08; 421,43 kv. m) su unikaliais numeriais 4400-6068-3983:3045, 4400-6068-3994:3046, 4400-6068-4004:3047; sandėlis (užstatytas plotas 82,00 kv. m) un. nr. 1897-9001-5296; takai ir aikštelės (plotai 645,22; 723,30; 53,67 kv. m) su un. nr. 4400-6122-3441, 4400-6122-3452, 4400-6122-3463; 4348/78400 dalių (7,8400 ha) žemės sklypo dalys un. nr. 1801-0002-0015, adresas Marijampolė, Gamyklų g. 1. Nekilnojamasis turtas parduodamas esamos fizinės ir funkcinės būklės; VĮ Turto bankas neįsipareigoja nustatyti kadastro duomenų būklės ar iškraustyti patalpose esančių daiktų. Žemės sklypo bendraturčiai nėra sudarę naudojimosi dalimis susitarimų. Priklausomai nuo sklypo dalių yra keli servitutai: du servitutai požeminėms/antžeminėms komunikacijoms (0,0282 ha ir 0,0098 ha) bei du kelio servitutai (0,33 ha ir 0,10 ha) suteikiantys pravažiavimo ar komunikacijų tiesimo teises. Parduodama aikštelė (un. nr. 4400-6122-3452) yra privažiuojama per trečiojo asmens nuosavybę (aikštelė b8; nuosavybės teise priklausęs juridinis asmuo šiuo metu likviduotas) — susitarimų dėl b8 naudojimosi sąlygų nėra sudaryta. Kartu su turtu parduodami su juo neatsiejamai susiję inventoriai ir įrenginiai (kondicionieriai, įėjimo kontrolės sistemos, signalizacija, transformatorinė ir kt.) su nurodytais inventoriaus numeriais ir vertėmis, kurių vertės įskaičiuotos į pradinę pardavimo kainą. Sudaryti 2022-03-01 ir 2025-04-25 susitarimai dėl komunalinių paslaugų išlaidų padengimo (geriamojo vandens tiekimas, nuotekų šalinimas, elektros energijos tiekimas subabonentui) Gamyklų g. 1 (4 aukštas) Nr. 22-S1-338 ir Nr. 2025-S1-TVD-378.

📍 Objekto lokacija

📍 Marijampolės sav. Marijampolės m. Gamyklų g. 1C-1

❓ Dažnai užduodami klausimai

Kokia yra pradinė aukciono kaina ir kokie mokesčiai reikalingi registracijai?
Pradinė pardavimo kaina yra 220 500 EUR. Garantinis mokestis 22 050 EUR, registracijos mokestis 100 EUR.
Kada vyksta aukcionas ir iki kada galima registruotis?
Aukcionas prasideda 2025-11-03 09:00:00 ir baigiasi 2025-11-04 13:59:59. Registracija vyksta nuo 2025-10-27 00:00:00 iki 2025-10-29 23:59:59.
Kur yra objektas ir kokie jo pagrindiniai komponentai?
Adresas: Marijampolė, Gamyklų g. 1. Kompleksą sudaro administracinės patalpos (398,37; 399,08; 421,43 kv. m), sandėlis (82,00 kv. m), takai ir aikštelės, bei žemės sklypo dalys (4348/78400, 7,8400 ha).
Ar turtas parduodamas su įranga ir ar yra papildomų apribojimų?
Taip — kartu parduodami su turtu neatsiejami įrenginiai (kondicionieriai, įėjimo kontrolės sistemos, signalizacijos, transformatorinė ir kt.), kurių vertės įskaičiuotos į pradinę kainą. Yra nustatyti servitutai dėl komunikacijų ir pravažiavimo; taip pat privažiavimas prie aikštelės un. nr. 4400-6122-3452 vyksta per trečiojo asmens aikštelę (b8) — susitarimų nėra.
Kokios yra apžiūros taisyklės ir kaip užsisakyti apžiūrą?
Apžiūros organizuojamos iki registracijos pradžios per VĮ Turto banko Turto pardavimų skyrių. Reikia iš anksto suderinti laiką per oficialius Turto banko kontaktus (Turto pardavimų skyrius).
Ar parduodamas turtas yra tvarkomas arba iškraunamas iki pardavimo?
Nekilnojamasis turtas parduodamas esamos fizinės ir funkcinės būklės; VĮ Turto bankas neįsipareigoja iškraustyti jame esančių daiktų ar tikrinti kadastro duomenų būklės.

⏱ Aukciono laikas

Aukcionas pasibaigė

Registracija

Iki: 2025-10-29 23:59:59

Aukcionas

Iki: 2025-11-04 13:59:59

🏠 Objekto informacija

📍 Adresas
Marijampolės sav. Marijampolės m. Gamyklų g. 1C-1
Tipas
Pakartotinis
Potipis
Patalpos/Butai
Objekto ID: 400816
💰 Pradinė kaina
220500.00 €
Užstatas
22050.00 €
Registracijos mokestis
100.00 €
Mažiausias kainos didinimas
1000.00 €
Patvirtinimas
per 2 d. d.
Dalyvauti aukcione
🔑 Raktažodžiai
administracinės patalpos Marijampolėje komercinis turtas aukcionas Gamyklų g. 1 nekilnojamas turtas Turto bankas aukcionas Marijampolė patalpos ir sklypas pardavimas