LT EN RU UA

Negyvenamos patalpos Vilniuje, Gerovės g. 29 — 39 000 EUR, 22 m²

📝 Aprašymas

★★★★★ ★★★★★ 5.0
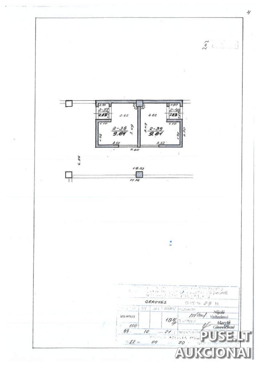
Negyvenamosios patalpos Vilniuje, Gerovės g. 29-13 (unikalus Nr. 1098-7006-3013:0008). Patalpos užima 22,11 kv. m, yra dviejų aukštų mūrinio pastato antrame aukšte. Patalpos parduodamos esamos būklės. Vilniaus miesto savivaldybė neįsipareigoja iškraustyti patalpose esančių daiktų. Skolų už elektros energijos tiekimą nėra. Savivaldybė neįsipareigoja, kad elektros tiekimas objekte konkrečiu momentu bus nenutrūkstamas arba kad vidaus elektros tinklas yra techniškai tvarkingas; gali būti laikini elektros tiekimo apribojimai dėl tiekimo sutrikimų ar kitų priežasčių. Visi su vidaus elektros tinklų remontu, elektros tiekimu ir jo atnaujinimu susiję klausimai pirkėjas sprendžia savo lėšomis ir rizika, tiesiogiai su atitinkamomis institucijomis arba paslaugų tiekėjais. Nekilnojamojo turto pirkimo-pardavimo sutartis su aukciono laimėtoju turi būti sudaryta per 30 dienų nuo pardavimo aukcione vykdymo dienos, o visa nekilnojamojo turto kaina turi būti sumokėta ne vėliau kaip per 10 dienų po sutarties pasirašymo.

📍 Objekto lokacija

📍 Vilniaus m. sav. Vilniaus m. Gerovės g. 29-13

❓ Dažnai užduodami klausimai

Koks yra aukciono pradinis kaina ir kokia patalpos plotas?
Pradinė kaina yra 39 000 EUR. Patalpų plotas yra 22,11 kv. m.
Kur yra patalpos ir koks yra unikalaus numerio numeris?
Adresas: Gerovės g. 29-13, Vilnius. Unikalus Nr.: 1098-7006-3013:0008.
Kada vyks aukcionas ir kada vyksta registracija?
Aukcionas prasideda 2025-11-24 09:00:00 ir baigiasi 2025-11-25 13:59:59. Registracija vyksta nuo 2025-11-17 00:00:00 iki 2025-11-19 23:59:59.
Kokie yra garantinis įnašas ir registracijos mokestis?
Garantinis įnašas yra 3 900 EUR, registracijos mokestis yra 145 EUR.
Kokios yra pagrindinės pardavimo sąlygos susijusios su patalpomis?
Patalpos parduodamos esamos būklės. Savivaldybė neįsipareigoja iškraustyti daiktų patalpose. Nors skolų už elektros energiją nėra, elektros tiekimas ir vidaus tinklų techninė būklė nėra garantuojami; visi su remontu ar atnaujinimu susiję darbai ir kaštai tenka pirkėjui.
Kada reikės pasirašyti pirkimo-pardavimo sutartį ir kada sumokėti likusią kainos dalį?
Sutartis turi būti sudaryta per 30 dienų nuo pardavimo aukcione vykdymo dienos. Visa nekilnojamojo turto kaina turi būti sumokėta ne vėliau kaip per 10 dienų nuo sutarties pasirašymo.
Kaip susiderinti apžiūros laiką?
Apžiūros laiką (2025-11-03 10:00 arba 2025-11-10 10:00) reikia suderinti su atsakingu darbuotoju. Asmeniniai kontaktai skelbime pašalinti; susisiekimo instrukcijas rasite oficialiame aukciono skelbime arba organizatoriaus svetainėje.

⏱ Aukciono laikas

Aukcionas pasibaigė

Registracija

Iki: 2025-11-19 23:59:59

Aukcionas

Iki: 2025-11-25 13:59:59

🏠 Objekto informacija

📍 Adresas
Vilniaus m. sav. Vilniaus m. Gerovės g. 29-13
Tipas
Pirminis
Potipis
Patalpos/Butai
Objekto ID: 401027
💰 Pradinė kaina
39000.00 €
Užstatas
3900.00 €
Registracijos mokestis
145.00 €
Mažiausias kainos didinimas
390.00 €
Patvirtinimas
per 2 d. d.
Dalyvauti aukcione
🔑 Raktažodžiai
negyvenamos patalpos Vilniuje patalpos aukcionas Gerovės g. savivaldybės aukcionas Vilnius komercinės patalpos 22 m2 investicija mažoms patalpoms Vilnius