Gyvenamasis namas Kinkių II kaime, Smilgų g. 14, Akmenės r. — pradinė kaina 11783 EUR
📝 Aprašymas
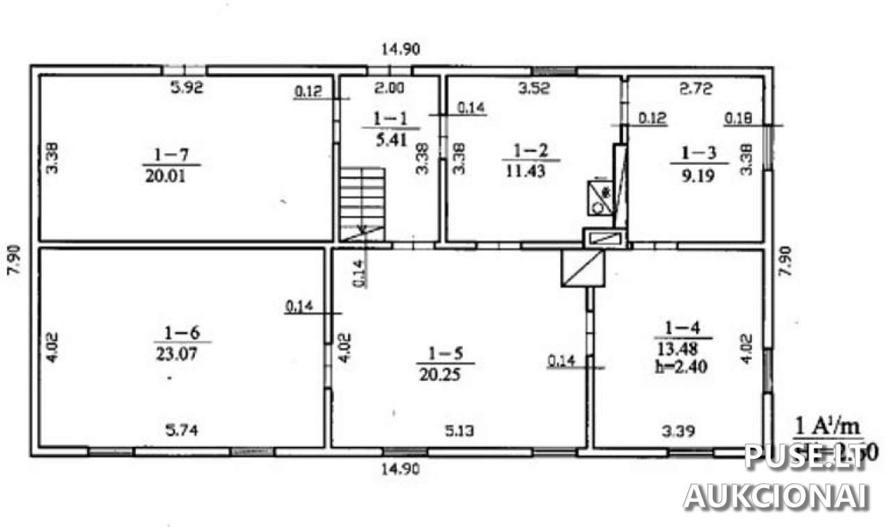
Parduodamas gyvenamasis namas su 0.2919 ha žemės sklypu: adresas Smilgų g. 14, Kinkių II k., Akmenės r. sav. Pagrindinis pastatas: gyvenamasis namas, bendras plotas 102.84 kv. m., unikalus Nr. 3292-9001-6016. Kiti statiniai: ūkinis pastatas (užstatyto ploto 170.00 kv. m., unikalus Nr. 3292-9001-6027), sandėliai (15.00 kv. m., unikalus Nr. 3292-9001-6038; 7.00 kv. m., unikalus Nr. 3292-9001-6049), daržinė (užstatyto ploto 94.00 kv. m., unikalus Nr. 3292-9001-6052) ir kiemo statiniai (šulinys, lauko tualetas, stoginė 6I1ž, unikalus Nr. 3292-9001-6066). Žemės sklypas: 0.2919 ha, unikalus Nr. 3205-0009-0023.
Objektui taikomos šios sąlygos ir pastabos: ūkinio pastato, plane pažymėto 2I1p, langas užmūrytas. Inžinerinis statinys (lauko tualetas) neatitinka įrengimui ir eksploatavimui taikomų teisės aktų reikalavimų. VĮ Turto bankas neįsipareigoja nustatyti aktualios nekilnojamojo turto kadastro duomenų būklės ar įregistruoti pakeitimų; potencialus pirkėjas turi išnagrinėti su šios būklės turto pirkimu susijusias teisines ir ekonomines rizikas. VĮ Turto bankas neatsako už daiktus, esančius patalpose, ir neįsipareigoja juos iškraustyti. Rekomenduojama iki aukciono dienos atlikti vietos apžiūrą dėl būklės, rekonstrukcijos galimybių ir kaštų.
Objektui taikomos šios sąlygos ir pastabos: ūkinio pastato, plane pažymėto 2I1p, langas užmūrytas. Inžinerinis statinys (lauko tualetas) neatitinka įrengimui ir eksploatavimui taikomų teisės aktų reikalavimų. VĮ Turto bankas neįsipareigoja nustatyti aktualios nekilnojamojo turto kadastro duomenų būklės ar įregistruoti pakeitimų; potencialus pirkėjas turi išnagrinėti su šios būklės turto pirkimu susijusias teisines ir ekonomines rizikas. VĮ Turto bankas neatsako už daiktus, esančius patalpose, ir neįsipareigoja juos iškraustyti. Rekomenduojama iki aukciono dienos atlikti vietos apžiūrą dėl būklės, rekonstrukcijos galimybių ir kaštų.
📍 Objekto lokacija
📍 Akmenės r. sav. Kinkių II k. Smilgų g. 14
❓ Dažnai užduodami klausimai
Kokia pradinė kaina ir kokie mokesčiai reikalingi registracijai?
Pradinė kaina 11783 EUR. Garantinis mokestis 1178 EUR, registracijos mokestis 40 EUR.
Kur yra objektas ir kokio dydžio sklypas?
Adresas: Smilgų g. 14, Kinkių II k., Akmenės r. sav. Sklypas 0.2919 ha, unikalus Nr. 3205-0009-0023.
Kokie pastatai įtraukti į pardavimą ir kokie jų unikalūs numeriai?
Gyvenamasis namas 102.84 kv. m. (UN 3292-9001-6016), ūkinis pastatas 170.00 kv. m. (UN 3292-9001-6027), sandėliai 15.00 kv. m. (UN 3292-9001-6038) ir 7.00 kv. m. (UN 3292-9001-6049), daržinė 94.00 kv. m. (UN 3292-9001-6052), kiemo statiniai (UN 3292-9001-6066).
Ar yra žinomi trūkumai ar teisinės rizikos?
Ūkinio pastato (plane pažymėto 2I1p) langas yra užmūrytas. Lauko tualetas neatitinka teisės aktų reikalavimų. VĮ Turto bankas neįsipareigoja tikrinti aktualių kadastro duomenų būklės ir neatsako už patalpose esančius daiktus. Potencialus pirkėjas turi įvertinti teisines ir ekonomines rizikas.
Kada vyksta aukcionas ir kada galima registruotis?
Aukcionas prasideda 2025-12-01 09:00:00 ir baigiasi 2025-12-02 13:59:59. Registracija vyksta nuo 2025-11-24 00:00:00 iki 2025-11-26 23:59:59.
Kaip organizuojamos apžiūros?
Apžiūros organizuojamos iki registracijos pradžios į aukcioną. Reikia iš anksto suderinti laiką su VĮ Turto banko Pardavimų skyriumi. Rekomenduojama atlikti vietos apžiūrą dėl būklės ir galimų remonto ar nugriovimo kaštų.
Kas yra aukciono organizatorius?
Organizatorius: Valstybės įmonė Turto bankas, įmonės kodas 112021042.