LT EN RU UA

Garažas Kėdainiuose, S. Dariaus ir S. Girėno g. 52 - 6200 EUR

📝 Aprašymas

★★★★★ ★★★★★ 4.0
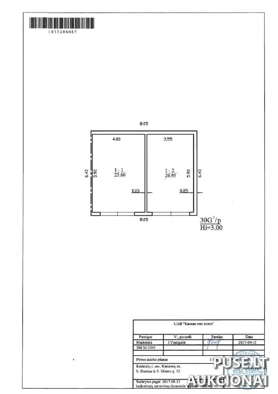
Garažas, 44,55 m², pagrindinė naudojimo paskirtis - garažų. Statybos metai 1983 m. Sienos – plytų, stogas – bitumas. Šildymo, vandentiekio ir nuotekų šalinimo nėra. Parduodama dalis: 1/1. Unikalus nr.: 4400-4756-5397. Pradinė aukciono kaina 6200 EUR. Aukcionas vykdomas kaip savivaldybių aukcionas pagal Kėdainių rajono savivaldybės sąlygas. Objektas parduodamas esamos būklės; savivaldybė neįsipareigoja iškraustyti patalpose esančių daiktų. Pardavimą organizuoja Kėdainių rajono savivaldybės administracija (įmonės kodas 188768545).

📍 Objekto lokacija

📍 Kėdainių r. sav. Kėdainių m. S. Dariaus ir S. Girėno g. 52

❓ Dažnai užduodami klausimai

Kokia pradinė garažo kaina ir kokie mokėjimo mokesčiai?
Pradinė kaina 6200 EUR. Garantinis įnašas 600 EUR, registracijos mokestis 100 EUR. Garantinis įnašas nelaimėjus grąžinamas per 5 darbo dienas.
Kada vyksta registracija ir aukcionas?
Registracija prasideda 2025-11-17 00:00:00 ir baigiasi 2025-11-18 23:59:59. Aukcionas vyksta 2025-11-20 09:00:00–2025-11-21 13:59:59.
Kokia turi būti pirkėjo elgsena po aukciono laimėjimo?
Aukciono laimėtojas pasirašo aukciono protokolą ne vėliau kaip kitą darbo dieną ir per 25 kalendorines dienas sudaro pirkimo-pardavimo sutartį; visa kaina turi būti sumokėta ne vėliau kaip per 10 dienų nuo sutarčių pasirašymo.
Kokia yra turto vieta ir identifikacinis numeris?
Adresas: Kėdainių r. sav., Kėdainiai, S. Dariaus ir S. Girėno g. 52. Unikalus numeris 4400-4756-5397.
Kokios turto charakteristikos (plotas, metai, konstrukcija, inžinerija)?
Garažas 44,55 m², statybos metai 1983. Sienos plytų, stogas bituminis. Nėra šildymo, vandentiekio ir nuotekų šalinimo.
Kaip organizuojama apžiūra prieš registraciją?
Apžiūra vykdoma iš anksto susitarus. Objektas parduodamas esamos būklės; savivaldybė neįsipareigoja iškraustyti patalpose esančių daiktų.
Kur rasti pirkimo-pardavimo sutarčių projektus ir organizatoriaus informaciją?
Sutarčių projektai skelbiami Kėdainių rajono savivaldybės interneto svetainėje (www.kedainiai.lt). Organizatorius: Kėdainių rajono savivaldybės administracija (įmonės kodas 188768545).

⏱ Aukciono laikas

Aukcionas pasibaigė

Registracija

Iki: 2025-11-18 23:59:59

Aukcionas

Iki: 2025-11-21 13:59:59

🏠 Objekto informacija

📍 Adresas
Kėdainių r. sav. Kėdainių m. S. Dariaus ir S. Girėno g. 52
Tipas
Pirminis
Potipis
Pastatai
Objekto ID: 402114
💰 Pradinė kaina
6200.00 €
Užstatas
600.00 €
Registracijos mokestis
100.00 €
Mažiausias kainos didinimas
100.00 €
Patvirtinimas
per 1 d. d.
Dalyvauti aukcione
🔑 Raktažodžiai
garažas Kėdainiuose pardavimas garažas S. Dariaus ir S. Girėno g. 52 garažo aukcionas 6200 EUR garažas be inžinerinių tinklų savivaldybės aukcionas Kėdainiai