LT EN RU UA

Kavinės patalpos nuomai Vilniuje, Žygimantų g. 2 - 193 m², pradinė nuoma 1255 €/mėn

📝 Aprašymas

★★★★★ ★★★★★ 4.3
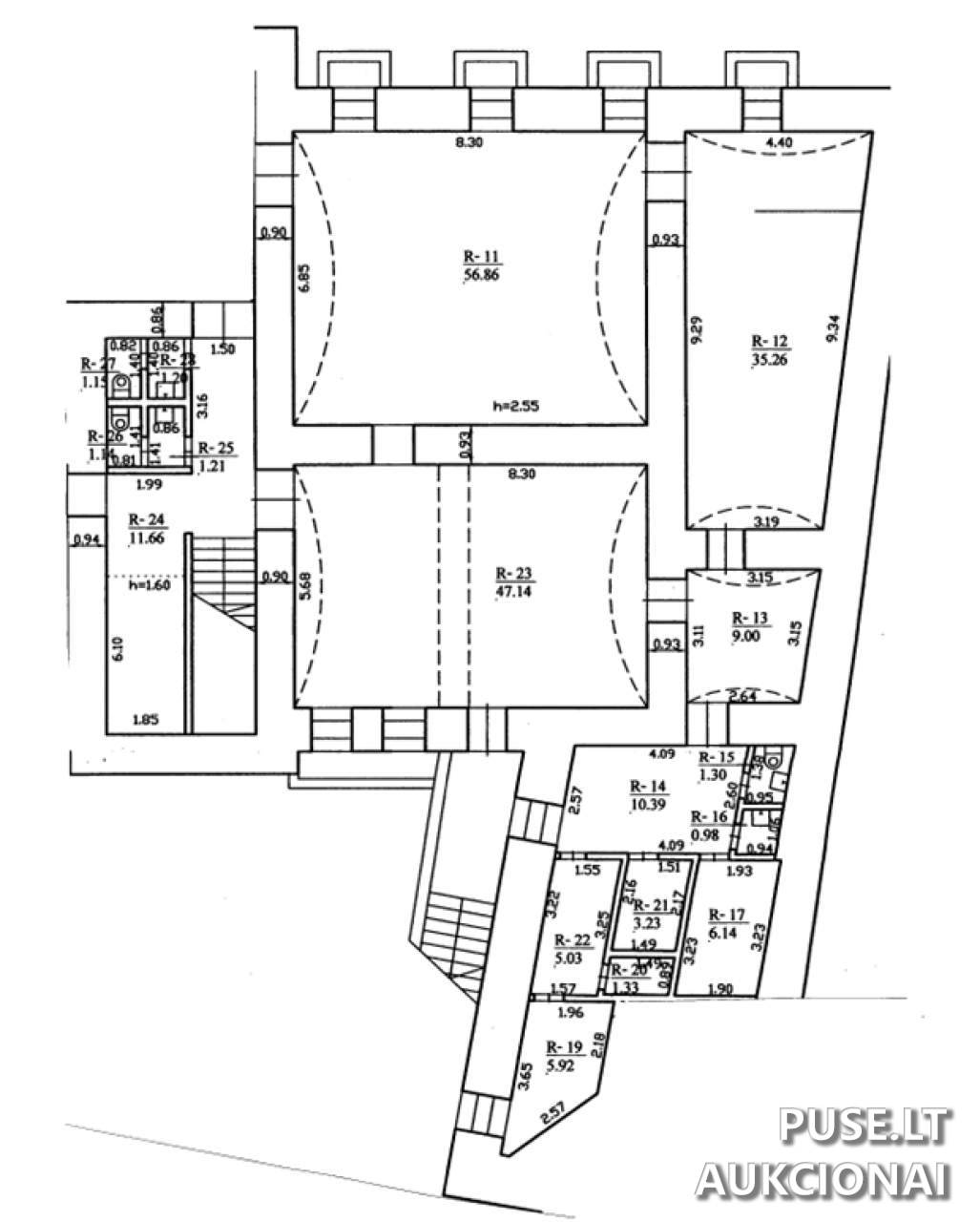
Regionų administracinis teismas išnuomoja teismo Vilniaus rūmų administracinio pastato, Žygimantų g. 2, Vilniuje, kavinės patalpas rūsio plane pažymėtas indeksais R-11, R-12, R-13, R-14, R-15, R-16, R-17, R-19, R-20, R-21, R-22, R-23, R-25, R-26, R-27, R-28, 1/2 dalį bendrojo naudojimo patalpos R-24. Bendras nuomojamų patalpų plotas 193,11 kv. m. Nuomojamas objektas apima ir jame esantį ilgalaikį materialųjį turtą, ūkinį inventorių ir baldus. Nuomojamų patalpų paskirtis - maitinimo veikla (teismo darbuotojų, teismo svečių, proceso dalyvių ir kitų asmenų maitinimas). Nuomos trukmė - 5 metai su galimybe sutartį pratęsti ne ilgesniam kaip 5 metų laikotarpiui. Pradinis mėnesinis nuompinigių dydis 1255 EUR. Dalyvio pradinio įnašo dydis (garantija) 3765 EUR, lygus trims mėnesiams. Unikalus numeris 1094-0510-4020. Nuomos sąlygų, sutarties projekto ir papildomos informacijos nuoroda skelbiama teismo interneto svetainėje.

📍 Objekto lokacija

📍 Vilniaus m. sav. Vilniaus m. Žygimantų g. 2

❓ Dažnai užduodami klausimai

Kokia yra nuomojamo ploto vieta ir adresas?
Kavinės patalpos yra teismo Vilniaus rūmų administraciniame pastate, adresu Žygimantų g. 2, Vilnius. Bendras plotas 193,11 kv. m, rūsio patalpų indeksai R-11...R-28 ir 1/2 dalis R-24.
Kada vyksta registracija ir koks yra aukciono laikas?
Registracija vyksta nuo 2025-11-03 00:00:00 iki 2025-11-05 23:59:59. Aukcionas prasideda 2025-11-10 09:00:00 ir baigiasi 2025-11-11 13:59:59.
Kokia yra pradinė nuoma ir kokio dydžio pradinio įnašo reikia?
Pradinė mėnesinė nuoma yra 1255 EUR. Dalyvio pradinio įnašo dydis (garanija) yra 3765 EUR, lygus trims mėnesiams.
Kokia nuomos trukmė ir ar galima pratęsti sutartį?
Nuomos trukmė yra 5 metai, su galimybe pratęsti nuomos sutartį ne ilgesniam kaip 5 metų laikotarpiui.
Ar į nuomą įeina inventorius ir baldai?
Taip. Nuomojamas objektas apima ilgalaikį materialųjį turtą, ūkinį inventorių ir baldus, kurie yra patalpose nurodytose patalpų indekso reikšmėse.
Kaip organizuojama apžiūra?
Apžiūra vyksta nuo 2025-10-28 iki 2025-11-05 darbo dienomis (pirmadieniais-ketvirtadieniais). Laiką reikia suderinti iš anksto su teismo atstovais.
Kur atlikti pradinį įnašą ir kam skirtas mokėjimas?
Pradinis įnašas turi būti pervestas į sąskaitą LT74 4040 0636 1000 1541 (LR finansų ministerijos mokėjimo sistema VIKSVA). Gavėjas - Regionų administracinis teismas, kodas 188733964. Mokėjimo paskirtyje nurodykite konkurso numerį.

⏱ Aukciono laikas

Aukcionas pasibaigė

Registracija

Iki: 2025-11-05 23:59:59

Aukcionas

Iki: 2025-11-11 13:59:59

🏠 Objekto informacija

📍 Adresas
Vilniaus m. sav. Vilniaus m. Žygimantų g. 2
Tipas
Pakartotinis
Potipis
Pastatai
Objekto ID: 402832
💰 Pradinė kaina
Mažiausias kainos didinimas
10.00 €
Patvirtinimas
per 2 d. d.
Dalyvauti aukcione
🔑 Raktažodžiai
kavinės patalpos Vilniuje nuoma Žygimantų g. 2 komercinė nuoma teisme rūsio patalpos nuoma Vilnius komercinės patalpos 193 m2 nuoma