LT EN RU UA

Butas Latveliškių kaime, Joniškio rajone – 760 EUR | ~29 m²

📝 Aprašymas

★★★★★ ★★★★★ 3.5
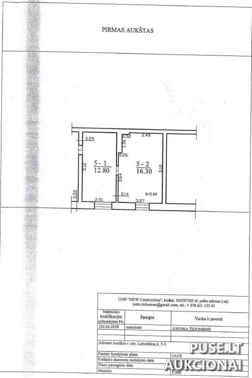
Parduodamas butas (unikalus Nr. 4789-3000-6014:0005, invent. Nr. IT-PARD-000038) Latveliškių k. 7-5, Kriukų seniūnija, Joniškio r. sav. Bendras plotas apie 29,10 kv. m. Žemės sklypas nesuformuotas. Pradinė aukciono kaina 760 EUR. Garantinis mokestis 76 EUR. Nekilnojamojo turto pirkimo-pardavimo sutartis su aukciono laimėtoju turi būti sudaryta per 30 kalendorinių dienų nuo pardavimo aukcione vykdymo dienos; visa kaina turi būti sumokėta ne vėliau kaip per 10 dienų po sutarties pasirašymo. Sutarties sudarymo išlaidas (įskaitant notaro mokestį) apmoka aukciono laimėtojas.

📍 Objekto lokacija

📍 Joniškio r. sav. Latveliškių k. 7-5

❓ Dažnai užduodami klausimai

Kokia pradinė buto kaina ir garantinis mokestis?
Pradinė aukciono kaina yra 760 EUR. Garantinis (užstato) mokestis – 76 EUR.
Kada vyksta aukcionas ir kada registracija?
Aukcionas prasideda 2025-12-12 09:00:00 ir baigiasi 2025-12-15 13:59:59. Registracija vyksta nuo 2025-12-02 00:00:00 iki 2025-12-04 23:59:59.
Kur yra objektas ir koks jo plotas?
Objektas adresu Latveliškių k. 7-5, Kriukų seniūnija, Joniškio r. sav. Bendras buto plotas apie 29,10 kv. m. Unikalus numeris: 4789-3000-6014:0005.
Kokia žemės sklypo būklė?
Pranešime nurodyta, kad žemės sklypas prie buto nėra suformuotas (žemės sklypas nesuformuotas).
Per kiek laiko reikia pasirašyti sutartį ir sumokėti kainą?
Pirkimo-pardavimo sutartis turi būti sudaryta per 30 kalendorinių dienų nuo pardavimo aukcione vykdymo dienos. Visa nekilnojamojo turto kaina turi būti sumokėta ne vėliau kaip per 10 dienų po sutarties pasirašymo. Sutarties sudarymo išlaidas (įskaitant notaro mokestį) apmoka aukciono laimėtojas.
Kaip susitarti dėl turto apžiūros?
Dėl apžiūros laiko ir papildomos informacijos kreiptis į Joniškio rajono savivaldybės administracijos Infrastruktūros skyrių. Nurodykite aukciono ID (76155) ir unikalų numerį (4789-3000-6014:0005) bei pageidaujamą apžiūros laiką.
Ką daryti dėl papildomų sąlygų ar apribojimų?
Visos objekto specifinės sąlygos nurodytos aukciono dokumentuose. Prieš dalyvaujant aukcione rekomenduojama susipažinti su sutarties sąlygomis ir suformuluoti klausimus Infrastruktūros skyriui.

⏱ Aukciono laikas

Aukcionas pasibaigė

Registracija

Iki: 2025-12-04 23:59:59

Aukcionas

Iki: 2025-12-15 13:59:59

🏠 Objekto informacija

📍 Adresas
Joniškio r. sav. Latveliškių k. 7-5
Tipas
Pirminis
Potipis
Patalpos/Butai
Objekto ID: 402902
💰 Pradinė kaina
760.00 €
Užstatas
76.00 €
Mažiausias kainos didinimas
410.00 €
Patvirtinimas
per 5 d. d.
Dalyvauti aukcione
🔑 Raktažodžiai
butas Joniškio rajone butas Latveliškių kaime aukcionas butas 760 EUR pigus butas Joniškis mažas butas 29 m2 aukcionas