Gyvenamoji patalpa Kaune (Akademijos mstl., Jaunimo g. 4A) - 13,6 m2, pradinė kaina 14 700 EUR
📝 Aprašymas
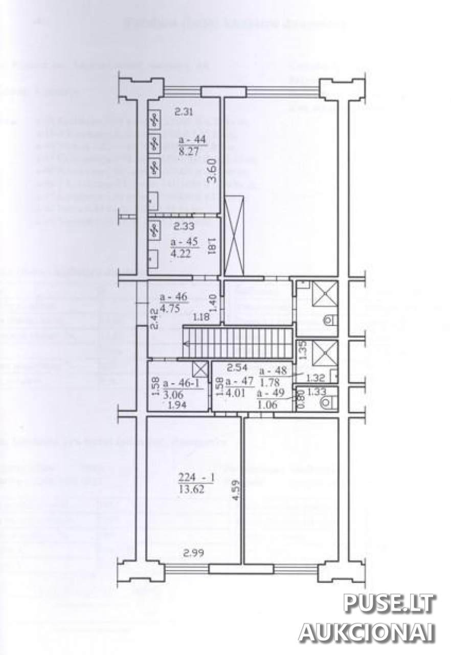
Gyvenamoji patalpa (butas/patalpa) parduodama per aukcioną. Bendras patalpos plotas 13,62 kv. m, pažymėjimas plane: 5298-7028-0023, klasifikacija 2N6p, paskirtis - įvairių socialinių grupių. Patalpa žymima kaip 224-1 (13,62 m2) ir parduodama kartu su bendro naudojimo patalpų dalimis: a-48 (1/2 iš 1,78 m2), a-49 (1/2 iš 1,06 m2), a-18 (0,55 m2), a-18-1 (0,25 m2), a-44 (1,52 m2), a-45 (0,78 m2), a-46 (1,00 m2), a-46-1 (0,43 m2), a-47 (2,01 m2). Unikalus numeris 4400-1340-3471:8001. Pradinė kaina 14 700 EUR. Garantinis mokestis (depozitas) 1 000 EUR. Registracijos mokestis 50 EUR.
Aukcionas vyksta nuo 2025-12-11 09:00:00 iki 2025-12-12 13:59:59. Registracija dalyvauti vyksta nuo 2025-12-01 00:00:00 iki 2025-12-04 23:59:59.
Pirkimo-pardavimo sutartis turi būti pasirašyta per 45 kalendorinių dienų nuo pardavimo vykdymo. Visa nekilnojamojo turto kaina turi būti sumokėta ne vėliau kaip per 30 kalendorinių dienų nuo sutarties pasirašymo. Jei pirkėjas naudoja kredito lėšas, organizatoriui prieš sutarties pasirašymą turi būti pateiktas kredito įstaigos garantinis raštas ir/ar kredito sutartis. Visi sutarties sudarymo, perdavimo-priėmimo akto, hipotekos registravimo/išregistravimo ir notaro mokesčiai apmokami aukciono laimėtojo pagrindu. Nesąžiningo pirkėjo pasekmės ir atsakomybės nurodytos pagal taikomas teisės normas.
Aukcionas vyksta nuo 2025-12-11 09:00:00 iki 2025-12-12 13:59:59. Registracija dalyvauti vyksta nuo 2025-12-01 00:00:00 iki 2025-12-04 23:59:59.
Pirkimo-pardavimo sutartis turi būti pasirašyta per 45 kalendorinių dienų nuo pardavimo vykdymo. Visa nekilnojamojo turto kaina turi būti sumokėta ne vėliau kaip per 30 kalendorinių dienų nuo sutarties pasirašymo. Jei pirkėjas naudoja kredito lėšas, organizatoriui prieš sutarties pasirašymą turi būti pateiktas kredito įstaigos garantinis raštas ir/ar kredito sutartis. Visi sutarties sudarymo, perdavimo-priėmimo akto, hipotekos registravimo/išregistravimo ir notaro mokesčiai apmokami aukciono laimėtojo pagrindu. Nesąžiningo pirkėjo pasekmės ir atsakomybės nurodytos pagal taikomas teisės normas.
📍 Objekto lokacija
📍 Kauno r. sav. Akademijos mstl. Jaunimo g. 4A-224
❓ Dažnai užduodami klausimai
Kokia pradinė šiame aukcione skelbiamos patalpos kaina?
Pradinė pardavimo kaina yra 14 700 EUR.
Kada vyksta aukcionas ir kokios yra registracijos datos?
Aukcionas vyksta nuo 2025-12-11 09:00:00 iki 2025-12-12 13:59:59. Dalyvių registracija vyksta nuo 2025-12-01 00:00:00 iki 2025-12-04 23:59:59.
Koks patalpos plotas ir kokia yra paskirtis?
Bendras patalpos plotas yra 13,62 m2. Paskirtis nurodyta kaip „Įvairių socialinių grupių“ (kodas 2N6p), pažymėjimas plane 5298-7028-0023.
Kiek yra garantinis ir registracijos mokesčiai?
Garantinis mokestis (depozitas) yra 1 000 EUR. Registracijos mokestis yra 50 EUR.
Kokios yra pagrindinės mokėjimo ir sutarčių sąlygos?
Pirkimo-pardavimo sutartis turi būti pasirašyta per 45 kalendorinių dienų nuo pardavimo vykdymo. Visa kaina turi būti sumokėta per 30 kalendorinių dienų nuo sutarties pasirašymo. Jei pirkėjas finansuojasi kreditu, reikia pateikti kredito įstaigos garantinį raštą ar kredito sutartį ne vėliau kaip prieš 5 darbo dienas iki sutarties pasirašymo. Visi notariniai ir registravimo mokesčiai padengiami aukciono laimėtojo.
Kur rasti pirkimo-pardavimo sutarčių projektus?
Pirkimo-pardavimo sutarčių preliminarius projektus rasite adresu www.vdu.lt/aukcionai-NT.