LT EN RU UA

Kambarys Kaune (Akademijoje, Jaunimo g. 4) – pradinė kaina 14 500 EUR

📝 Aprašymas

★★★★★ ★★★★★ 3.5
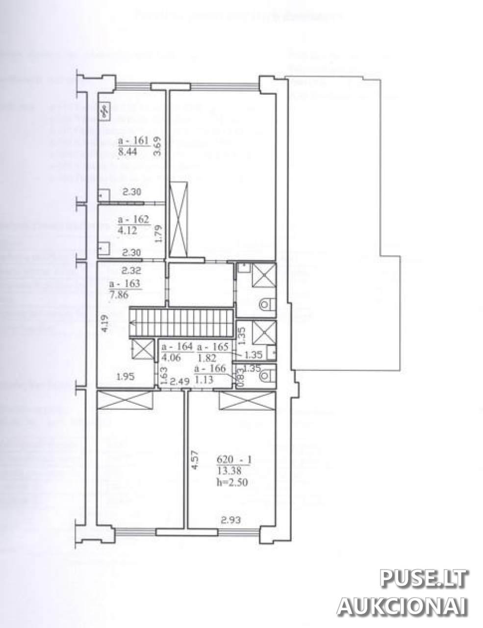
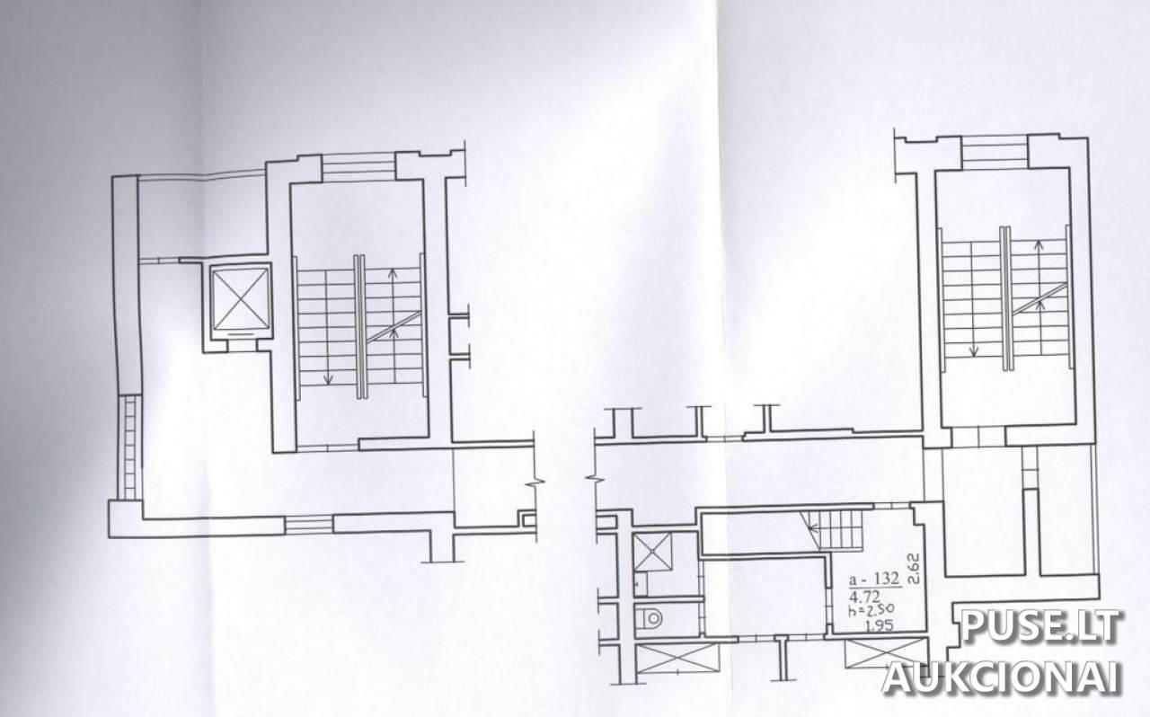
Parduodamas kambarys (patalpa) Akademijos miestelyje, adresu Jaunimo g. 4-620, Kauno r. Bendras patalpos plotas 13,38 kv. m. Pažymėjimas plane: 5298-7028-0012, 1N6p. Paskirtis: įvairių socialinių grupių. Patalpa pažymėta 620-1 kartu su dalimi bendro naudojimo patalpų, pažymėtų: a-132 (182/1000 iš 4,72 m2); a-161 (182/1000 iš 8,44 m2); a-162 (182/1000 iš 4,12 m2); a-163 (182/1000 iš 7,86 m2); a-164 (497/1000 iš 4,06 m2); a-165 (1/2 iš 1,82 m2); a-166 (495/1000 iš 1,13 m2). Unikalus kadastro numeris: 4400-1340-0490:7802. Pradinė kaina: 14 500 EUR. Garantinis mokestis: 1 000 EUR. Registracijos mokestis: 50 EUR. Aukcionas skelbiamas ir vykdomas su šiomis pagrindinėmis pirkimo-pardavimo sąlygomis: pirkimo-pardavimo sutartis su aukciono laimėtoju turi būti pasirašyta per 45 kalendorinių dienų nuo pardavimo aukcione dienos; aukciono laimėtojas ne vėliau kaip per 10 darbo dienų po aukciono pabaigos el. paštu organizatoriui nurodo pageidaujamas atsiskaitymo sąlygas; visa nekilnojamojo turto kaina turi būti sumokėta ne vėliau kaip per 30 kalendorinių dienų po sutarties pasirašymo; jei atsiskaitoma kredito lėšomis, aukciono laimėtojas ne vėliau kaip prieš 5 darbo dienas turi pateikti kredito įstaigos garantinį raštą ir/ar kredito sutartį; turto sutarties sudarymo, perdavimo-priėmimo akto, hipotekos sandorių įregistravimo ir išregistravimo išlaidas, įskaitant notaro atlyginimą, apmoka aukciono laimėtojas. Nesąžiningas pirkėjas padengia naujo aukciono organizavimo išlaidas ir kainų skirtumą pagal Civilinio kodekso nuostatas. Preliminarūs pirkimo-pardavimo sutarties projektai prieinami organizatoriaus interneto puslapyje: www.vdu.lt/aukcionai-NT.

📍 Objekto lokacija

📍 Kauno r. sav. Akademijos mstl. Jaunimo g. 4-620

❓ Dažnai užduodami klausimai

Kokia pradinė kaina ir garantinis mokestis?
Pradinė kaina yra 14 500 EUR. Garantinis mokestis 1 000 EUR. Registracijos mokestis 50 EUR.
Kur yra turtas ir koks jo plotas?
Adresas: Jaunimo g. 4-620, Akademija, Kauno r. Bendras patalpos plotas 13,38 kv. m. Pažymėjimas plane: 5298-7028-0012, unikalus nr. 4400-1340-0490:7802.
Kada vyksta aukcionas ir registracija?
Aukcionas prasideda 2025-12-11 09:00:00 ir baigiasi 2025-12-12 13:59:59. Registracija dalyvauti prasideda 2025-12-01 00:00:00 ir baigiasi 2025-12-04 23:59:59.
Kada galima apžiūrėti turtą?
Turto apžiūra organizuojama 2025-11-26. Privaloma išankstinė registracija per organizatoriaus nustatytą procedūrą.
Kokios yra pagrindinės mokėjimo ir sutarties sąlygos po aukciono?
Pirkimo-pardavimo sutartis turi būti pasirašyta per 45 kalendorinių dienų nuo aukciono vykdymo dienos. Aukciono laimėtojas per 10 darbo dienų po aukciono pabaigos nurodo pageidaujamą atsiskaitymo būdą. Visa kaina turi būti sumokėta ne vėliau kaip per 30 kalendorinių dienų po sutarties pasirašymo. Išlaidas, susijusias su sutarties sudarymu ir notarų paslaugomis, apmoka laimėtojas.
Kur rasti sutarties projektus ir papildomą informaciją?
Pirkimo-pardavimo sutarčių preliminarūs projektai ir papildoma informacija skelbiami organizatoriaus tinklalapyje: www.vdu.lt/aukcionai-NT.

⏱ Aukciono laikas

Aukcionas pasibaigė

Registracija

Iki: 2025-12-04 23:59:59

Aukcionas

Iki: 2025-12-12 13:59:59

🏠 Objekto informacija

📍 Adresas
Kauno r. sav. Akademijos mstl. Jaunimo g. 4-620
Tipas
Pirminis kiti aukcionai
Potipis
Patalpos/Butai
Objekto ID: 403150
💰 Pradinė kaina
14500.00 €
Užstatas
1000.00 €
Registracijos mokestis
50.00 €
Mažiausias kainos didinimas
100.00 €
Patvirtinimas
per 4 d. d.
Dalyvauti aukcione
🔑 Raktažodžiai
kambarys aukcione Kaune patalpa pardavimas Akademija Jaunimo g 4 aukcionas NT investicija Kauno rajonas kambarys 14 500 EUR aukcionas