LT EN RU UA

Gyvenamojoji patalpa Akademijoje (Kauno r.), Jaunimo g. 4 – 14 500 EUR aukcione

📝 Aprašymas

★★★★★ ★★★★★ 5.0
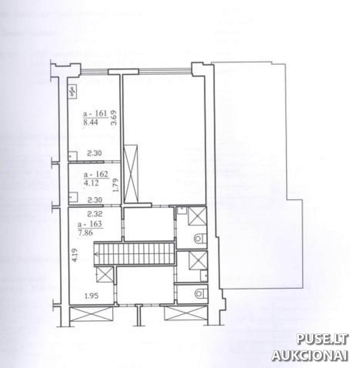
Gyvenamoji patalpa (butas/patalpa). Bendras plotas 13,40 kv. m. Pažymėjimas plane: 5298-7028-0012, 1N6p. Paskirtis: Įvairių socialinių grupių. Parduodama dalis: 1/1. Unikalus kadastrinis nr.: 4400-1340-0474:7801. Patalpa (520-1) turi priskirtas dalis bendro naudojimo patalpų: a-129 – 0,91 m2 (1/2 iš 1,82 m2); a-130 – 0,53 m2 (1/2 iš 1,05 m2); a-131 – 2,01 m2 (1/2 iš 4,02 m2); a-132 – 0,87 m2 (184/1000 iš 4,72 m2); a-161 – 1,55 m2 (184/1000 iš 8,44 m2); a-162 – 0,75 m2 (182/1000 iš 4,12 m2); a-163 – 1,44 m2 (183/1000 iš 7,86 m2). Pradinė pardavimo kaina: 14 500 EUR. Garantinis įnašas: 1 000 EUR. Registracijos mokestis: 50 EUR. Aukcionas vykdomas pagal nurodytas sąlygas (sutarčių projektai skelbiami organizatoriaus interneto svetainėje). Organizatorius: Vytauto Didžiojo universitetas (įmonės kodas 111950396), K. Donelaičio g. 58, LT-44248 Kaunas. Nekilnojamojo turto pirkimo‑pardavimo sutartis turi būti pasirašyta per 45 kalendorinių dienų nuo pardavimo dienos; visa nekilnojamojo turto kaina turi būti sumokėta ne vėliau kaip per 30 kalendorinių dienų po sutarties pasirašymo. Jei pirkėjas naudoja kredito įstaigos lėšas, turi pateikti garantinį raštą ir/ar kredito sutartį ne vėliau kaip prieš 5 darbo dienas iki planuojamos sutarties pasirašymo. Išlaidas, susijusias su sutarties sudarymu, notaro mokesčiais, hipotekos įregistravimu/išregistravimu apmoka aukciono laimėtojas. Daugiau informacijos apie sutartis ir preliminarius projektus rasite: www.vdu.lt/aukcionai-NT

📍 Objekto lokacija

📍 Kauno r. sav. Akademijos mstl. Jaunimo g. 4-520

❓ Dažnai užduodami klausimai

Kokia pradinė kaina ir kokie mokesčiai reikalingi registracijai?
Pradinė kaina yra 14 500 EUR. Garantinis įnašas (garantinis mokestis) – 1 000 EUR. Registracijos mokestis – 50 EUR.
Kurioje vietoje yra parduodama patalpa ir koks jos plotas?
Adresas: Jaunimo g. 4-520, Akademijos mstl., Kauno r. Bendras plotas: 13,40 kv. m. Pažymėjimas plane: 5298-7028-0012.
Kokios yra aukciono datos ir registracijos terminai?
Aukcionas prasideda 2025-12-11 09:00:00 ir baigiasi 2025-12-12 13:59:59. Dalyvių registracija vyksta nuo 2025-12-01 00:00:00 iki 2025-12-04 23:59:59.
Kada galima apžiūrėti turtą ir ar reikalinga registracija?
Turto apžiūra organizuojama 2025-11-26. Apžiūrai reikalinga išankstinė registracija; dėl apžiūros kreiptis į Turto valdymo skyrių, Vytauto Didžiojo universitetas (kontaktai pašalinti).
Kokie yra pagrindiniai pirkimo-pardavimo sutarties ir apmokėjimo terminai?
Pirkimo-pardavimo sutartis turi būti pasirašyta per 45 kalendorinių dienų nuo pardavimo aukcione dienos. Visa nekilnojamojo turto kaina turi būti sumokėta ne vėliau kaip per 30 kalendorinių dienų po sutarties pasirašymo. Jei naudojamos kredito lėšos, reikalingas kredito įstaigos garantinis raštas arba kredito sutartis ne vėliau kaip prieš 5 darbo dienas iki sutarties pasirašymo.
Koks yra kadastrinis/unikalus numeris ir ar yra papildomų patalpų dalių?
Unikalus kadastrinis numeris: 4400-1340-0474:7801. Patalpa 520-1 turi priskirtas dalis bendro naudojimo patalpų (a-129, a-130, a-131, a-132, a-161, a-162, a-163) su nurodytais kvadratais ir dalimis.
Kur rasti pirkimo-pardavimo sutarčių preliminarius projektus?
Pirkimo-pardavimo sutarčių preliminarius projektus rasite organizatoriaus svetainėje: www.vdu.lt/aukcionai-NT.

⏱ Aukciono laikas

Aukcionas pasibaigė

Registracija

Iki: 2025-12-04 23:59:59

Aukcionas

Iki: 2025-12-12 13:59:59

🏠 Objekto informacija

📍 Adresas
Kauno r. sav. Akademijos mstl. Jaunimo g. 4-520
Tipas
Pirminis kiti aukcionai
Potipis
Patalpos/Butai
Objekto ID: 403152
💰 Pradinė kaina
14500.00 €
Užstatas
1000.00 €
Registracijos mokestis
50.00 €
Mažiausias kainos didinimas
100.00 €
Patvirtinimas
per 4 d. d.
Dalyvauti aukcione
🔑 Raktažodžiai
butas aukcione Kauno r. gyvenamoji patalpa Akademijoje Jaunimo g 4 aukcionas NT aukcionas 14500 EUR patalpa pardavimas Akademija