LT EN RU UA

Butas pardavimui Kauno r., Akademijoje (Pilėnų g. 2) – 49 000 EUR, 36,56 m²

📝 Aprašymas

★★★★★ ★★★★★ 5.0
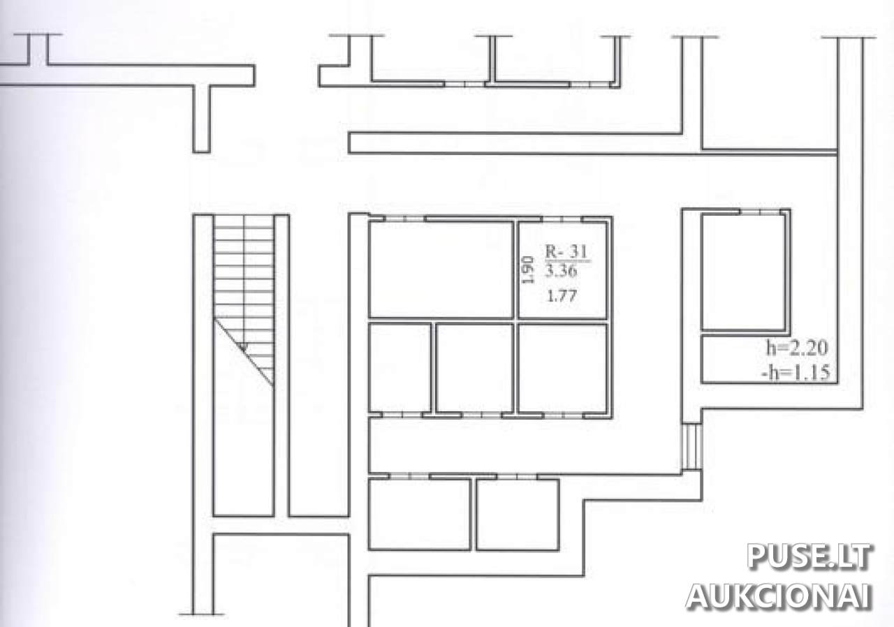
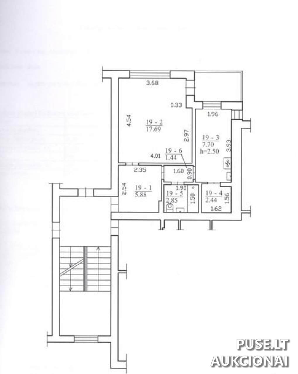
Parduodamas butas Akademijos miestelyje, Pilėnų g. 2 (Kauno r.). Butas – gyvenamosios paskirties, bendras plotas 36,56 m². Priklauso rūsys 3,36 m² (žymė R-31). Butas pažymėtas plane 5299-4013-6010, 1A5p. Pradinė aukciono kaina 49 000 EUR. Unikalus numeris / kadastrinis nr.: 4400-0351-8623:3906. Pardavimas vyksta per aukcioną; garantinis mokestis 3 400 EUR, registracijos mokestis 50 EUR. Pirkimo–pardavimo sutartis su aukciono laimėtoju turi būti pasirašyta per 45 kalendorinių dienų nuo pardavimo dienos; visa kaina turi būti sumokėta ne vėliau kaip per 30 kalendorinių dienų po sutarties pasirašymo. Jei sutartis finansuojama kredito įstaigos lėšomis, laimėtojas privalo pateikti kredito įstaigos garantinį raštą ir/ar kredito sutartį ne vėliau kaip prieš 5 darbo dienas iki sutarties pasirašymo. Sutarties sudarymo, perdavimo–priėmimo akto ir hipotekos įregistravimo išlaidas apmoka pirkėjas. Daugiau dokumentų ir preliminarių sutarčių projektų rasite aukciono organizatoriaus svetainėje.

📍 Objekto lokacija

📍 Kauno r. sav. Akademijos mstl. Pilėnų g. 2-19

❓ Dažnai užduodami klausimai

Kokia pradinė buto kaina ir kokia garantija reikalinga dalyvauti aukcione?
Pradinė kaina 49 000 EUR. Garantinis mokestis 3 400 EUR. Registracijos mokestis 50 EUR.
Kada vyksta aukcionas ir kokios registracijos datos?
Aukcionas prasideda 2025-12-11 09:00 ir baigiasi 2025-12-12 13:59:59. Registracija vyksta nuo 2025-12-01 iki 2025-12-04 (iki 23:59:59).
Kur yra butas ir koks jo bendras plotas?
Butas yra Kauno r., Akademijos mstl., Pilėnų g. 2. Bendras plotas 36,56 m²; rūsys 3,36 m² (žymė R-31).
Kokios pagrindinės pirkimo–pardavimo sutarties sąlygos po aukciono?
Sutartis turi būti pasirašyta per 45 kalendorinių dienų nuo pardavimo dato. Visa kaina turi būti sumokėta per 30 kalendorinių dienų po sutarties pasirašymo. Jei naudojamos kredito įstaigos lėšos, reikia pateikti kredito garantą arba sutartį ne vėliau kaip prieš 5 darbo dienas iki sutarties pasirašymo. Visas su sutarties įforminimu susijusias išlaidas apmoka pirkėjas.
Ar reikia registruotis apžiūrai ir kada ji vyks?
Taip, apžiūra vyks 2025-11-26 ir reikalauja išankstinės registracijos. Registracijos ir apžiūros kontaktai pateikiami aukciono organizatoriaus oficialiuose kanaluose; asmeniniai kontaktai buvo pašalinti iš skelbimo.
Kur rasti preliminarius pirkimo–pardavimo sutarčių projektus?
Preliminarūs sutarčių projektai skelbiami aukciono organizatoriaus svetainėje: www.vdu.lt/aukcionai-NT.

⏱ Aukciono laikas

Aukcionas pasibaigė

Registracija

Iki: 2025-12-04 23:59:59

Aukcionas

Iki: 2025-12-12 13:59:59

🏠 Objekto informacija

📍 Adresas
Kauno r. sav. Akademijos mstl. Pilėnų g. 2-19
Tipas
Pirminis kiti aukcionai
Potipis
Patalpos/Butai
Objekto ID: 403161
💰 Pradinė kaina
49000.00 €
Užstatas
3400.00 €
Registracijos mokestis
50.00 €
Mažiausias kainos didinimas
100.00 €
Patvirtinimas
per 4 d. d.
Dalyvauti aukcione
🔑 Raktažodžiai
butas Kauno r. butas Akademijoje Pilėnų g. aukcionas butas 49000 EUR butas 36.5 m2 Kaune investicinis butas Kauno rajone