LT EN RU UA

Garažas Vilniaus rajone, Medelyno g. 7 — pradinė kaina 120 312 EUR

📝 Aprašymas

★★★★★ ★★★★★ 4.0
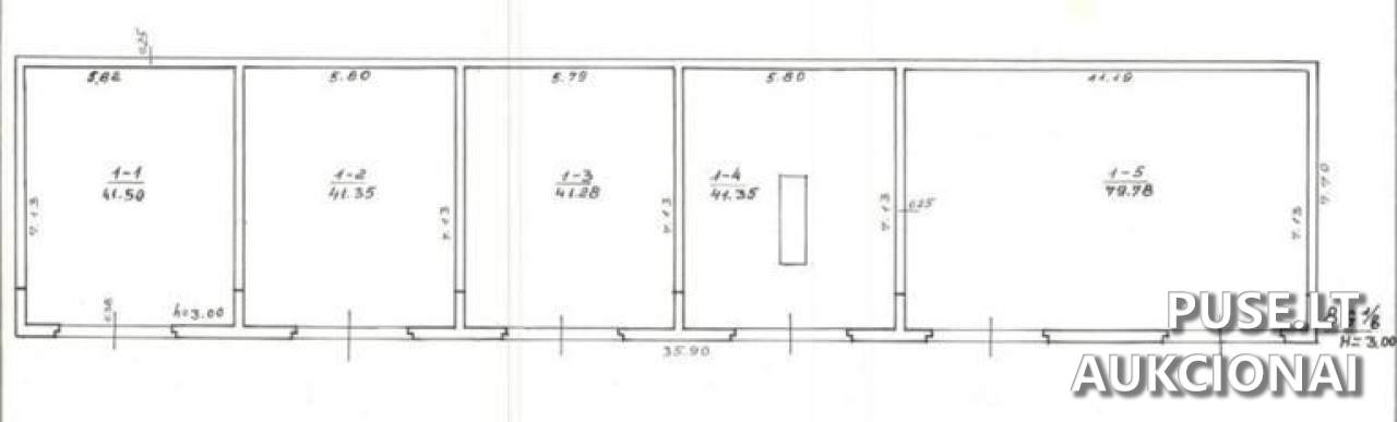
Garažas bendro ploto 245.26 kv. m, unikalus Nr. 4196-9009-7074; prie jo priskirtas 0.3517 ha žemės sklypas, unikalus Nr. 4400-4981-3385. Adresas: Vilniaus r. sav., Nemėžio sen., Akmenytės k., Medelyno g. 7. Turtas parduodamas esamos fizinės ir funkcinės būklės bei pagal esamus nekilnojamojo turto kadastro duomenis. VĮ Turto bankas neįsipareigoja keisti arba įregistruoti atnaujintų kadastro duomenų ir neįsipareigoja iškraustyti jame esančių daiktų. Parduodama dalis: 1/1.

📍 Objekto lokacija

📍 Vilniaus r. sav. Akmenytės k. Medelyno g. 7

❓ Dažnai užduodami klausimai

Kokia pradinė garažo kaina ir kokia garantija reikalinga?
Pradinė kaina yra 120 312 EUR. Garantinis įnašas (garantinis mokestis) - 12 031 EUR. Registracijos mokestis - 100 EUR.
Kur yra parduodamas objektas ir kokie jo pagrindiniai parametrai?
Adresas: Vilniaus r. sav., Nemėžio sen., Akmenytės k., Medelyno g. 7. Garažo plotas 245.26 kv. m (unikalus Nr. 4196-9009-7074). Priklausantis žemės sklypas 0.3517 ha (unikalus Nr. 4400-4981-3385).
Kada vyksta aukcionas ir kada vyksta registracija?
Aukcionas vyksta nuo 2025-12-15 09:00 iki 2025-12-16 13:59:59. Registracija vyksta nuo 2025-12-08 00:00 iki 2025-12-10 23:59:59.
Kaip galima sumokėti registracijos mokestį ir garantinį įnašą?
Mokėjimai vykdomi per elektroninę bankininkystę (Neopay) arba įkeliant bankinių pavedimų kopijas. Atsiskaitomoji sąskaita: IBAN LT14 7044 0600 0044 3912 (AB SEB bankas), SWIFT CBVILT2X, gavėjas VĮ Turto bankas, mokėjimo paskirtis - el. aukciono numeris.
Ar galima apžiūrėti turtą prieš registraciją?
Taip. Apžiūros organizuojamos iki registracijos pradžios (iki 2025-12-08) iš anksto suderinus laiką su Turto banko pardavimų skyriumi.
Kokios yra svarbiausios pardavimo sąlygos?
Turtas parduodamas esamos fizinės ir funkcinės būklės bei pagal esamus kadastro duomenis. VĮ Turto bankas neįsipareigoja atnaujinti kadastro duomenų ar iškraustyti jame esančių daiktų.

⏱ Aukciono laikas

Aukcionas pasibaigė

Registracija

Iki: 2025-12-10 23:59:59

Aukcionas

Iki: 2025-12-16 13:59:59

🏠 Objekto informacija

📍 Adresas
Vilniaus r. sav. Akmenytės k. Medelyno g. 7
Tipas
Pirminis
Potipis
Pastatai
Objekto ID: 403282
💰 Pradinė kaina
120312.00 €
Užstatas
12031.00 €
Registracijos mokestis
100.00 €
Mažiausias kainos didinimas
1000.00 €
Patvirtinimas
per 2 d. d.
Dalyvauti aukcione
🔑 Raktažodžiai
garažas aukcionas Vilniaus rajone garažas Medelyno g. 7 aukcionas Turto bankas garažas pardavimas garažas su žemės sklypu pardavimas nekilnojamo turto aukcionas Vilnius region