LT EN RU UA

Butas Vilniuje, Kalvarijų g. 335 — pradinė kaina 33 410 EUR

📝 Aprašymas

★★★★★ ★★★★★ 4.0
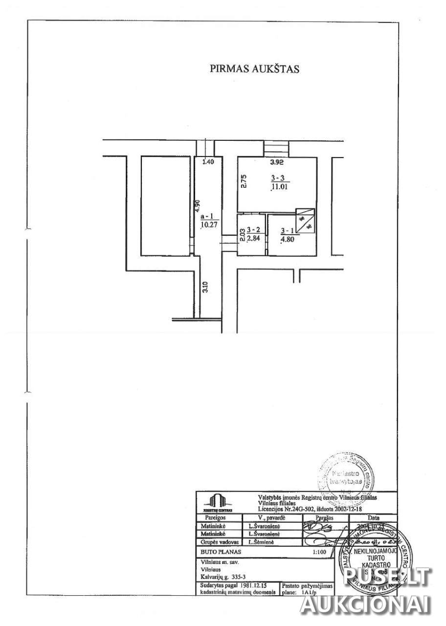
Butas (unikalus Nr. 1094-0151-8014:0006), 18,65 kv. m ploto su 1,23 kv. m bendrojo naudojimo patalpomis, vieno aukšto mūrinio pastato pirmajame aukšte. Adresas: Kalvarijų g. 335-3, Vilnius. Patalpos parduodamos esamos būklės. Pastatas yra nekilnojamoji kultūros vertybė (Kultūros vertybių registre - kodas 48460); kultūros paveldo objektų naudojimas ir tvarkymas bei bet kokie remonto, rekonstrukcijos darbai reglamentuojami Lietuvos Respublikos nekilnojamojo kultūros paveldo apsaugos įstatymu ir kitais teisės aktais. Skolų už elektros energijos tiekimą objektui nėra. Savivaldybė neįsipareigoja užtikrinti nenutrūkstamo elektros tiekimo ar vidinių elektros tinklų techninio tvarkingumo konkrečiu momentu; galimi laikini elektros tiekimo apribojimai. Visus su vidaus elektros tinklų remontu, elektros tiekimu ir jų atnaujinimu susijusius veiksmus pirkėjas vykdo savo lėšomis ir rizika tiesiogiai su atitinkamomis institucijomis ar paslaugų tiekėjais.

📍 Objekto lokacija

📍 Vilniaus m. sav. Vilniaus m. Kalvarijų g. 335-3

❓ Dažnai užduodami klausimai

Kokia pradinė buto kaina ir kokie mokesčiai reikalingi registracijai?
Pradinė kaina yra 33 410 EUR. Garantinis mokestis 3 341 EUR, registracijos mokestis 145 EUR.
Kada vyksta aukcionas ir kada galima registruotis?
Aukcionas prasideda 2025-12-15 09:00 ir baigiasi 2025-12-16 13:59:59. Registracija vyksta nuo 2025-12-08 00:00 iki 2025-12-10 23:59:59.
Koks nekilnojamojo turto identifikatorius ir adresas?
Unikalus Nr. 1094-0151-8014:0006. Adresas: Kalvarijų g. 335-3, Vilnius.
Ar butas yra kultūros paveldo objekte ir ką tai reiškia pirkėjui?
Taip, pastatas yra nekilnojamoji kultūros vertybė (registruotas su kodu 48460). Bet kokie pastato tvarkybos, remonto ar rekonstrukcijos darbai turi būti atliekami laikantis kultūros paveldo apsaugos reikalavimų pagal galiojančius teisės aktus.
Kokia yra buto būklė ir kas atsako už elektros tiekimą?
Patalpos parduodamos esamos būklės. Skolų už elektros energijos tiekimą nėra, tačiau savivaldybė neįsipareigoja užtikrinti nenutrūkstamo elektros tiekimo ar vidinių elektros tinklų techninio tvarkingumo; su visais vidaus tinklų remonto ir atnaujinimo klausimais pirkėjas tvarkosi savo lėšomis ir rizika.
Per kiek laiko turi būti sudaryta pirkimo-pardavimo sutartis ir apmokėta kaina?
Sutartis turi būti sudaryta per 30 dienų nuo pardavimo aukcione vykdymo dienos. Visa nekilnojamojo turto kaina turi būti sumokėta ne vėliau kaip per 10 dienų po sutarties pasirašymo.

⏱ Aukciono laikas

Aukcionas pasibaigė

Registracija

Iki: 2025-12-10 23:59:59

Aukcionas

Iki: 2025-12-16 13:59:59

🏠 Objekto informacija

📍 Adresas
Vilniaus m. sav. Vilniaus m. Kalvarijų g. 335-3
Tipas
Pakartotinis
Potipis
Patalpos/Butai
Objekto ID: 403761
💰 Pradinė kaina
33410.00 €
Užstatas
3341.00 €
Registracijos mokestis
145.00 €
Mažiausias kainos didinimas
334.00 €
Patvirtinimas
per 2 d. d.
Dalyvauti aukcione
🔑 Raktažodžiai
butas Vilniuje Kalvarijų g. nekilnojamo turto aukcionas Vilnius butas kultūros paveldo name Vilnius investicinis butas 19 m2 Vilnius aukcionas butas Kalvariju 335 33410