LT EN RU UA

Butas Vilniuje, Taikos g. 94 – 3 kambarių, 67 m², pradinė kaina 79 200 EUR

📝 Aprašymas

★★★★★ ★★★★★ 4.0
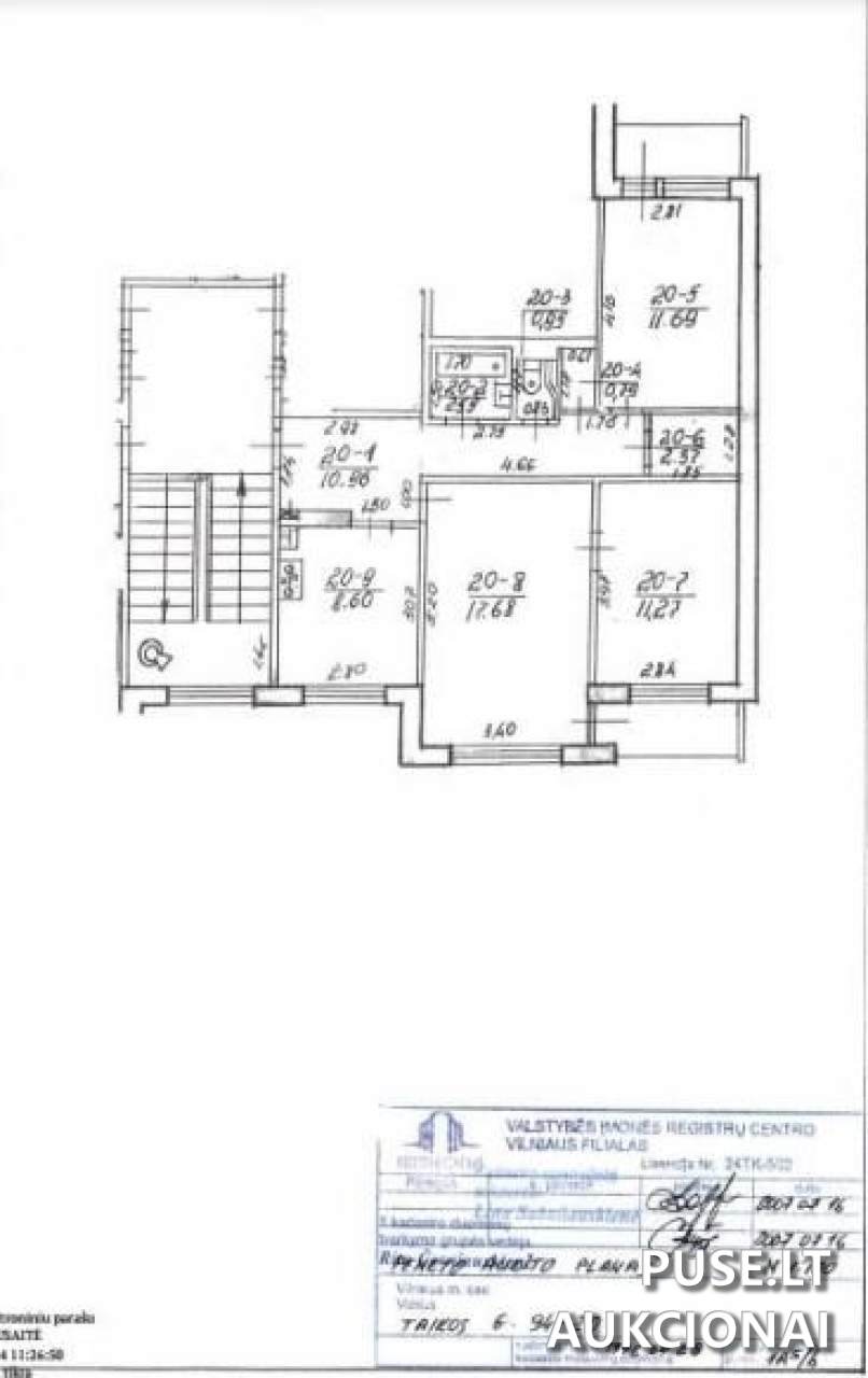
Parduodamas 3 kambarių butas Vilniuje, Taikos g. 94 (buto dalis 1/1). Bendras plotas 66.86 m² (naud. plotas), gyvenamasis plotas 40.64 m². Pastato statybos pabaigos metai 1984. Išorės sienos iš gelžbetonio plokščių, baigtumo lygis 100 proc. Butas įrengtas 5 aukšte iš 5, rūsys yra. Šildymas – centrinis iš centralizuotų sistemų; šaltas vanduo ir nuotekos prijungtos prie miesto tinklų. Buto patalpų išdėstymas: koridorius 10.96 m², vonia 2.55 m², tualetas 0.95 m², sandėlis 0.79 m², kambarys (su balkonu) 11.69 m², sandėlis 2.37 m², kambarys 11.27 m², kambarys (su balkonu) 17.68 m², virtuvė 8.60 m². Yra du įstiklinti balkonai (plastiko rėmai su stiklo paketais). Unikalus kadastrinis nr.: 1098-4012-9015:0020. Pradinė aukciono kaina 79 200 EUR. Aukcionas vyksta kaip antrosios pakartotinės antstolių varžytinės. Apribojimai: hipotekos nutartis. Dokumentuose pateikta buto vidaus patalpų išdėstymo plano kopija ir NTR išrašas.

📍 Objekto lokacija

📍 Vilniaus m. sav. Vilniaus m. Taikos g. 94-20

❓ Dažnai užduodami klausimai

Kokia yra pradinė aukciono kaina ir kokios aukciono datos?
Pradinė kaina yra 79 200 EUR. Aukcionas prasideda 2025-11-12 13:28:59 ir baigiasi 2025-12-12 13:28:59.
Koks yra objekto adresas ir unikalus kadastrinis numeris?
Adresas: Vilniaus m., Taikos g. 94. Unikalus kadastrinis nr.: 1098-4012-9015:0020.
Kokia buto plotų struktūra ir kambarių išdėstymas?
Bendras plotas 66.86 m²; gyvenamasis plotas 40.64 m². Patalpos: koridorius 10.96 m², vonia 2.55 m², tualetas 0.95 m², sandėliai 0.79 m² ir 2.37 m², kambariai 11.69 m² (su balkonu), 11.27 m², 17.68 m² (su balkonu), virtuvė 8.60 m². Yra du įstiklinti balkonai.
Kokie yra svarbiausi techniniai ir infrastruktūros požymiai?
Pastatas statytas 1984 m.; išorės sienos iš gelžbetonio plokščių; šildymas centrinis, šaltas vanduo ir nuotekos prijungtos prie miesto tinklų; butas turi rūsį.
Ar ant objekto yra apribojimų ar įkeitimų?
Taip. Dokumentuose nurodyta hipotekos nutartis (apribojimas).
Kaip sužinoti apie registraciją ar apžiūrą?
Dokumentuose registracijos terminai neįrašyti; apžiūros informacija dokumente nebuvo pateikta. Dėl tikslių apžiūros ar registracijos sąlygų kreiptis į varžytynių organizatorių arba antstolių kontorą.
Koks yra aukciono statusas ir ką reiškia 'Antrosios pakartotinės'?
Aukciono statusas: vykstančios antstolių varžytynės. 'Antrosios pakartotinės' reiškia, kad tai yra antras kartas, kai turtas siūlomas parduoti per pakartotinį aukcioną pagal antstolio procedūras.

⏱ Aukciono laikas

Aukcionas pasibaigė

Aukcionas

Iki: 2025-12-12 13:28:59

🏠 Objekto informacija

📍 Adresas
Vilniaus m. sav. Vilniaus m. Taikos g. 94-20
Tipas
Antrosios pakartotinės
Potipis
Patalpos/Butai
⚠️ Apribojimai
Hipotekos nutartis
Objekto ID: 404379
💰 Pradinė kaina
79200.00 €
Dalyvauti aukcione
🔑 Raktažodžiai
butas Vilniuje Taikos g. 94 butas pardavimui Vilnius 3 kambariai nekilnojamas turtas Vilniuje aukcionas butas su rūsiu Taikos gatvė antstolių varžytynės butas Vilnius