LT EN RU UA

Butas Jonavos rajone, Dvaro g. 8 — pradinė kaina 742 EUR, kultūros paveldo objektas

📝 Aprašymas

★★★★★ ★★★★★ 3.8
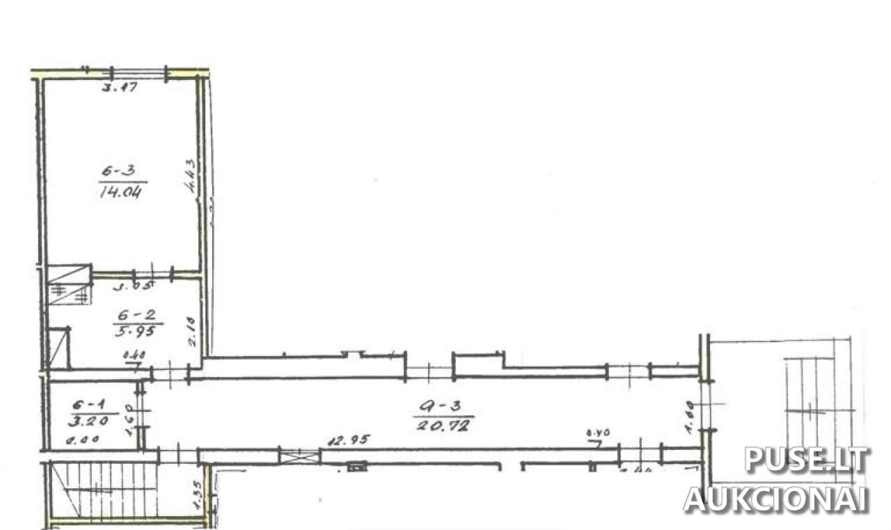
Butas (Nr.6) Jonavos r. sav., Palankesių k., Dvaro g. 8-6. Parduodamas kaip-is, pagal atnaujintus nekilnojamojo turto kadastro duomenis. Nuosavybės unikalus numeris 4400-0446-0226:2201. Butas turi 1/4 dalį bendro naudojimo patalpos a-3 (20.72 kv. m), tai sudaro 5.18 kv. m; bendras buto plotas 23.19 kv. m. Taip pat parduodama 1/8 dalis ūkinio pastato (užstatyto ploto 215.00 kv. m, unikalus Nr. 4693-0002-9026). Parduodami statiniai yra Palankesių dvaro sodybos teritorijoje (unikalus objekto kodas 127) ir pastatas įrašytas į Nekilnojamųjų kultūros vertybių registrą (unikalus objekto kodas 37983); naudojimas ir tvarkymas reglamentuojami nekilnojamojo kultūros paveldo ir statybos teisės aktais. Turtas yra valstybinėje žemėje, žemės sklypas nesuformuotas — VĮ Turto bankas neturi ir neperleidžia teisių į sklypą ar jo dalį. Bendraturčiai nėra sudarę naudojimosi tvarkos, turtas faktiškai naudojamas trečiojo asmens (buto bendraturčio); apžiūra ribota. VĮ Turto bankas neįsipareigoja iškraustyti asmenų iki nuosavybės perleidimo. Bendrojo naudojimo objektų administravimas: UAB "Jonavos paslaugos" (įmonės kodas 156916523).

📍 Objekto lokacija

📍 Jonavos r. sav. Palankesių k. Dvaro g. 8-6

❓ Dažnai užduodami klausimai

Kokia yra pradinė aukciono kaina ir kokie mokesčiai?
Pradinė kaina 742 EUR. Garantinis įnašas 74 EUR. Registracijos mokestis 1 EUR.
Kada vyksta aukcionas ir registracija?
Aukcionas prasideda 2026-01-12 09:00:00 ir baigiasi 2026-01-13 13:59:59. Registracija vyksta nuo 2026-01-05 00:00:00 iki 2026-01-07 23:59:59.
Kur yra objektas ir kas parduodama?
Adresas: Jonavos r. sav., Palankesių k., Dvaro g. 8-6. Parduodamas butas Nr.6 (visiška 1/1 dalis) su 1/4 dalimi bendro naudojimo patalpos (a-3) ir 1/8 dalimi ūkinio pastato (užstatytas plotas 215.00 kv. m). Unikalus Nr. 4400-0446-0226:2201 ir 4693-0002-9026.
Ar yra apribojimų dėl paveldo ar statybos?
Taip. Turtas yra Palankesių dvaro sodybos teritorijoje, o pastatas įrašytas į Nekilnojamųjų kultūros vertybių registrą (unikalus kodas 37983). Naudojimas ir tvarkymas (statybos, tvarkybos, restauracijos, rekonstrukcijos, remonto darbai) reglamentuojami kultūros paveldo ir statybos teisės aktais.
Ar objektas laisvas ir ar bus iškeldinti asmenys prieš nuosavybės perleidimą?
Turtas faktiškai naudojamas trečiojo asmens (buto bendraturčio); VĮ Turto bankas neįsipareigoja iškraustyti jame esančių asmenų iki nuosavybės perleidimo aukciono laimėtojui.
Kaip susitvarkyti su apžiūra?
Apžiūros vykdomos iki registracijos pradžios, iš anksto individualiai suderinus laiką su Valstybės įmonės Turto banko Turto komercijos skyriumi per oficialius kontaktus.

⏱ Aukciono laikas

Aukcionas pasibaigė

Registracija

Iki: 2026-01-07 23:59:59

Aukcionas

Iki: 2026-01-13 13:59:59

🏠 Objekto informacija

📍 Adresas
Jonavos r. sav. Palankesių k. Dvaro g. 8-6
Tipas
Pirminis
Potipis
Patalpos/Butai
Objekto ID: 404892
💰 Pradinė kaina
742.00 €
Užstatas
74.00 €
Registracijos mokestis
1.00 €
Mažiausias kainos didinimas
50.00 €
Patvirtinimas
per 2 d. d.
Dalyvauti aukcione
🔑 Raktažodžiai
butas Jonavos rajone pardavimas Dvaro gatvė 8 butas aukcionas kultūros paveldo objektas pardavimas nekilnojamojo turto aukcionas Palankesiai pigus butas aukcione 742 EUR