Garažas Palangoje, Ganyklų g. 20, 87 kv.m. pradinė kaina 49800 EUR
📝 Aprašymas
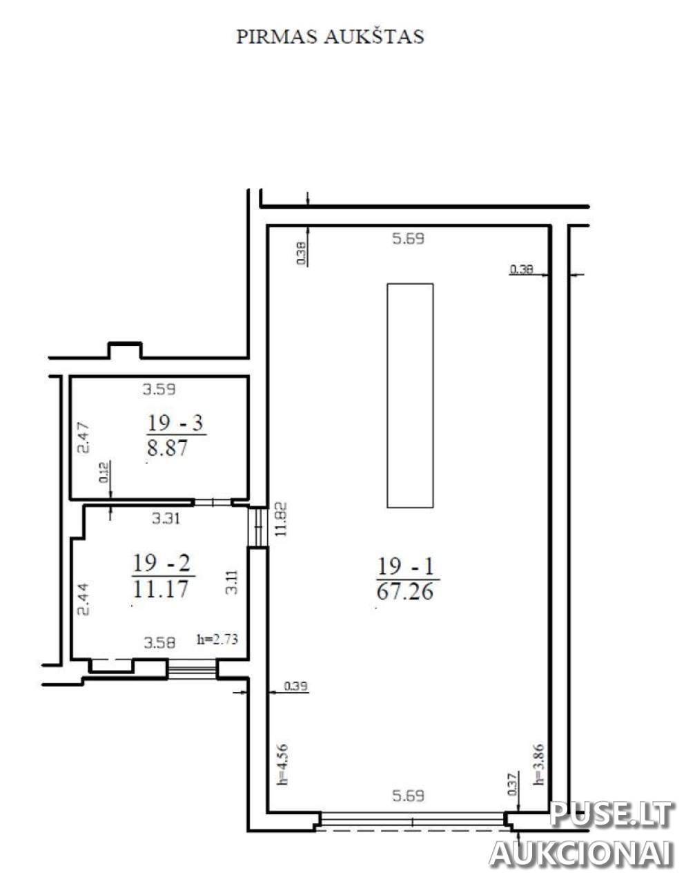
Parduodamas negyvenamosios paskirties patalpos - garažas su 87,30 kv. m. bendru plotu Palangoje, Ganyklų g. 20 K1-19, per Turto banko aukcioną. Tai pirminio tipo patalpų pardavimas, prasidedantis 2026-01-06. Objekto unikalus numeris yra 4400-2341-2364:2008. Pardavimas vyksta esamos fizinės ir funkcinės būklės, kaip nurodyta kadastro duomenyse.
Svarbu pirkėjui žinoti, kad parduodama garažo patalpa (nuo 19-1 iki 19-3) yra suformuotame žemės sklype (kadastro nr. 2501/0025:28), kurį patikėjimo teise valdo Palangos miesto savivaldybė. Pardavėjas teisių į šį žemės sklypą neperleidžia. Vis dėlto, pagal Civilinio kodekso nuostatas, pirkėjas įgyja teisę naudotis atitinkama žemės sklypo dalimi tokiomis pat sąlygomis, kokios buvo taikomos pardavėjui.
Atkreiptinas dėmesys, kad parduodamas objektas neturi jokių komunikacijų. Valstybės įmonė Turto bankas neįsipareigoja nustatyti aktualios kadastro būklės ir neiškraustyti objekte esamų daiktų. Žemės sklype taip pat registruota tretiesiems asmenims priklausanti kiemo aikštelė (unikalus nr. 4400-5610-9427).
Pradinė pardavimo kaina yra 49800 EUR. Dalyvaujant aukcione, būtina sumokėti 4980 EUR dydžio garantinį mokestį ir 40 EUR registracijos mokestį. Aukciono registracija vyksta nuo 2025-12-29 iki 2025-12-31.
Svarbu pirkėjui žinoti, kad parduodama garažo patalpa (nuo 19-1 iki 19-3) yra suformuotame žemės sklype (kadastro nr. 2501/0025:28), kurį patikėjimo teise valdo Palangos miesto savivaldybė. Pardavėjas teisių į šį žemės sklypą neperleidžia. Vis dėlto, pagal Civilinio kodekso nuostatas, pirkėjas įgyja teisę naudotis atitinkama žemės sklypo dalimi tokiomis pat sąlygomis, kokios buvo taikomos pardavėjui.
Atkreiptinas dėmesys, kad parduodamas objektas neturi jokių komunikacijų. Valstybės įmonė Turto bankas neįsipareigoja nustatyti aktualios kadastro būklės ir neiškraustyti objekte esamų daiktų. Žemės sklype taip pat registruota tretiesiems asmenims priklausanti kiemo aikštelė (unikalus nr. 4400-5610-9427).
Pradinė pardavimo kaina yra 49800 EUR. Dalyvaujant aukcione, būtina sumokėti 4980 EUR dydžio garantinį mokestį ir 40 EUR registracijos mokestį. Aukciono registracija vyksta nuo 2025-12-29 iki 2025-12-31.
📍 Objekto lokacija
📍 Palangos m. sav. Palangos m. Ganyklų g. 20 K1-19
❓ Dažnai užduodami klausimai
Kokia parduodamo garažo Palangoje pradinė kaina ir plotas?
Garažo, esančio Ganyklų g. 20 K1-19, pradinė kaina yra 49800 EUR, o bendras plotas siekia 87,30 kv. m.
Kada vyks Turto banko aukcionas šiam garažui?
Aukcionas prasidės 2026-01-06 09:00:00 ir baigsis 2026-01-07 13:59:59.
Kokie papildomi mokesčiai reikalingi dalyvaujant aukcione Ganyklų g. 20?
Reikalingas 4980 EUR garantinis mokestis ir 40 EUR registracijos mokestis.
Kokia yra registracijos į aukcioną eiga?
Registracija prasideda 2025-12-29 00:00:00 ir baigiasi 2025-12-31 23:59:59.
Ar garažo patalpoms yra prijungtos komunikacijos?
Ne, nurodoma, kad objektas neturi komunikacijų.
Kokios sąlygos taikomos žemės sklypui, kuriame yra garažas?
Pardavėjas neperleidžia teisių į žemės sklypą, tačiau pirkėjas įgyja teisę naudotis atitinkama dalimi tokiomis pat sąlygomis kaip pardavėjas, kadangi sklypą patikėjimo teise valdo Palangos miesto savivaldybė.
Kurioje vietoje Palangoje yra parduodamas garažas ir koks jo unikalus numeris?
Objektas yra Palangoje, Ganyklų g. 20 K1-19. Unikalus numeris: 4400-2341-2364:2008.