1/2 dalis gyvenamojo namo Šiaulių rajone, Leičių k. 2, 540 EUR, su tvarto dalimi
📝 Aprašymas
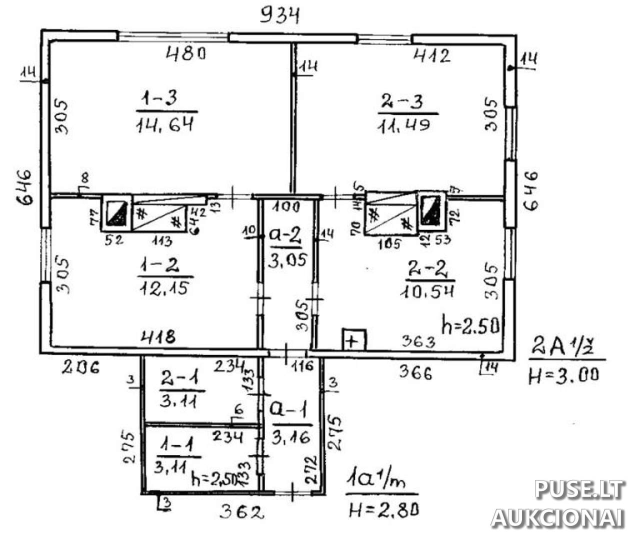
Parduodama 1/2 dalis gyvenamojo namo Leičių kaime, Šiaulių rajono savivaldybėje, adresu Leičių k. 2. Šis nekilnojamasis turtas parduodamas pakartotinio aukciono būdu esamos faktinės būklės ir pagal atnaujintus kadastro duomenis. Bendras parduodamos gyvenamojo namo dalies plotas yra 61.25 kv. m. Unikalus gyvenamojo namo registro Nr. 9196-1021-9024.
Be gyvenamojo namo dalies, parduodama ir 31/100 dalis tvarto, kurio užstatytas plotas siekia 45.00 kv. m. Tvaro unikalus Nr. 9196-1021-9035. Turtas yra Šiaulių r. sav., Raudėnų seniūnijoje, Leičių kaime.
Svarbu paminėti, kad parduodami statiniai yra valstybinėje žemėje, kuriai žemės sklypas nėra suformuotas. Valstybės įmonė Turto bankas neturi teisių į šį sklypą ar jo dalį ir jų neperleidžia. Taip pat, bendraturčiai nėra sudarę susitarimų dėl bendros dalinės nuosavybės turto naudojimosi tvarkos jokių apribojimų.
VĮ Turto bankas neįsipareigoja nustatyti aktualios nekilnojamojo turto kadastro duomenų būklės, taip pat neįsipareigoja iškraustyti iš parduodamų statinių esančių daiktų. Pirkėjas privalo atkreipti dėmesį į šias sąlygas įsigyjant turtą.
Aukciono pradinė kaina yra 540 EUR. Užtikrinant dalyvavimą, privalomas 54 EUR garantinis mokestis ir 1 EUR registracijos mokestis.
Be gyvenamojo namo dalies, parduodama ir 31/100 dalis tvarto, kurio užstatytas plotas siekia 45.00 kv. m. Tvaro unikalus Nr. 9196-1021-9035. Turtas yra Šiaulių r. sav., Raudėnų seniūnijoje, Leičių kaime.
Svarbu paminėti, kad parduodami statiniai yra valstybinėje žemėje, kuriai žemės sklypas nėra suformuotas. Valstybės įmonė Turto bankas neturi teisių į šį sklypą ar jo dalį ir jų neperleidžia. Taip pat, bendraturčiai nėra sudarę susitarimų dėl bendros dalinės nuosavybės turto naudojimosi tvarkos jokių apribojimų.
VĮ Turto bankas neįsipareigoja nustatyti aktualios nekilnojamojo turto kadastro duomenų būklės, taip pat neįsipareigoja iškraustyti iš parduodamų statinių esančių daiktų. Pirkėjas privalo atkreipti dėmesį į šias sąlygas įsigyjant turtą.
Aukciono pradinė kaina yra 540 EUR. Užtikrinant dalyvavimą, privalomas 54 EUR garantinis mokestis ir 1 EUR registracijos mokestis.
📍 Objekto lokacija
📍 Šiaulių r. sav. Leičių k. 2
❓ Dažnai užduodami klausimai
Kokia yra gyvenamojo namo dalies ir tvarto pradinė kaina aukcione?
Gyvenamojo namo 1/2 dalies pradinė kaina yra 540 EUR. Taip pat parduodama 31/100 dalis tvarto.
Kada vyks aukcionas ir kada reikia registruotis?
Aukcionas vyks nuo 2026-01-19 09:00 iki 2026-01-20 13:59:59. Registracija vyksta nuo 2026-01-12 00:00:00 iki 2026-01-14 23:59:59.
Koks parduodamo gyvenamojo namo plotas ir unikalus numeris?
Parduodama 1/2 dalis gyvenamojo namo, kurio bendras plotas yra 61.25 kv. m. Unikalus nr. 9196-1021-9024.
Kokie yra papildomi mokesčiai, reikalingi dalyvaujant aukcione?
Reikalingas 54 EUR garantinis mokestis ir 1 EUR registracijos mokestis.
Koks parduodamo objekto adresas ir kokios yra sąlygos dėl žemės sklypo?
Objekto adresas yra Šiaulių r. sav. Leičių k. 2. Parduodami statiniai yra valstybinėje žemėje, kuriai žemės sklypas nesuformuotas, o Turto bankas teisių į sklypą neperleidžia.
Kas atsakingas už pardavimo sąlygas ir sutarties projektus?
Aukciono organizatorius yra Valstybės įmonė Turto bankas (įm. k. 112021042). Sutarties projektai skelbiami nurodytame nuorodoje, o dėl detalių galima kreiptis į Ligitą Petravičienę.