1/2 dalis 44.73 kv. m buto Panevėžio r. Bobiniškių k. su ūkiniu pastatu, pradinė kaina 423 EUR
📝 Aprašymas
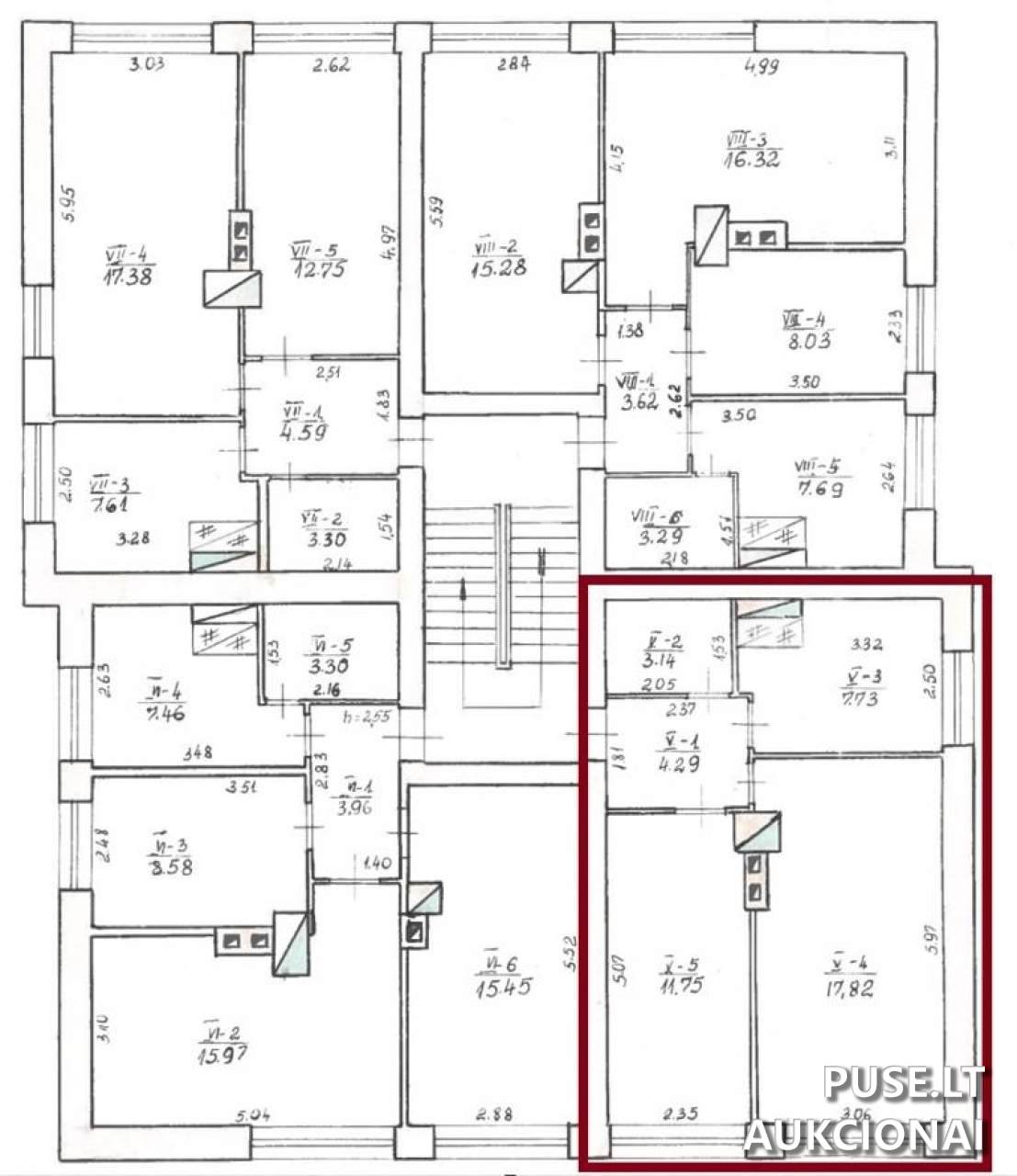
Parduodama 1/2 dalis buto Panevėžio rajone, Bobiniškių kaimo 16-5 adresu, kurios bendras plotas yra 44.73 kv. m. Šis pardavimas apima ir 1/16 dalį ūkinio pastato, kurio užstatytas plotas siekia 200.00 kv. m, unikalus Nr. 6696-9012-8027, esančio toje pačioje vietovėje. Nekilnojamojo turto unikalus Nr. 6696-9012-8016:0002, parduodamas per Valstybės įmonę Turto bankas.
Svarbu atkreipti dėmesį į tai, kad šis nekilnojamasis turtas parduodamas esamos faktinės būklės ir pagal neatnaujintus kadastro duomenis. Valstybės įmonė Turto bankas neprisiima įsipareigojimų nustatyti aktualios nekilnojamojo turto kadastro duomenų būklės ar iškraustyti jame esančius daiktus. Be to, kadangi parduodami statiniai yra valstybinėje žemėje, kurioje žemės sklypas nėra suformuotas, Turto bankas neturi teisių į sklypą ar jo dalį ir jų neperleidžia. Bendraturčiai nėra sudarę jokių susitarimų dėl bendros dalinės nuosavybės naudojimosi tvarkos.
Šio objekto pardavimo aukciono pradinė kaina yra 423 EUR. Aukciono dalyvio registracijai yra reikalingas 1 EUR registracijos mokestis ir 42 EUR garantinis mokestis.
Aukcionas vyks 2026-01-19 09:00:00 val. iki 2026-01-20 13:59:59 val. Registracija į aukcioną vyksta nuo 2026-01-12 00:00:00 val. iki 2026-01-14 23:59:59 val.
Kontaktinis asmuo dėl nekilnojamojo turto apžiūros yra VĮ Turto bankas atstovas. Objektų apžiūros organizuojamos tik iki registracijos pradžios, iš anksto individualiai suderinus laiką.
Svarbu atkreipti dėmesį į tai, kad šis nekilnojamasis turtas parduodamas esamos faktinės būklės ir pagal neatnaujintus kadastro duomenis. Valstybės įmonė Turto bankas neprisiima įsipareigojimų nustatyti aktualios nekilnojamojo turto kadastro duomenų būklės ar iškraustyti jame esančius daiktus. Be to, kadangi parduodami statiniai yra valstybinėje žemėje, kurioje žemės sklypas nėra suformuotas, Turto bankas neturi teisių į sklypą ar jo dalį ir jų neperleidžia. Bendraturčiai nėra sudarę jokių susitarimų dėl bendros dalinės nuosavybės naudojimosi tvarkos.
Šio objekto pardavimo aukciono pradinė kaina yra 423 EUR. Aukciono dalyvio registracijai yra reikalingas 1 EUR registracijos mokestis ir 42 EUR garantinis mokestis.
Aukcionas vyks 2026-01-19 09:00:00 val. iki 2026-01-20 13:59:59 val. Registracija į aukcioną vyksta nuo 2026-01-12 00:00:00 val. iki 2026-01-14 23:59:59 val.
Kontaktinis asmuo dėl nekilnojamojo turto apžiūros yra VĮ Turto bankas atstovas. Objektų apžiūros organizuojamos tik iki registracijos pradžios, iš anksto individualiai suderinus laiką.
📍 Objekto lokacija
📍 Panevėžio r. sav. Bobiniškių k. 16-5
❓ Dažnai užduodami klausimai
Kokia nekilnojamojo turto dalis parduodama Panevėžio r. Bobiniškių k. 16-5?
Parduodama 1/2 dalis buto (44.73 kv. m bendro ploto) ir 1/16 dalis ūkinio pastato (200.00 kv. m užstatyto ploto).
Kokia pradinė buto dalies kaina aukcione?
Pradinė kaina sudaro 423 EUR.
Kada vyks aukcionas ir kada baigiasi registracija?
Aukcionas vyks nuo 2026-01-19 09:00:00 iki 2026-01-20 13:59:59. Registracija baigiasi 2026-01-14 23:59:59.
Kokie yra mokami mokesčiai dalyvaujant aukcione?
Dalyvio registracijos mokestis yra 1 EUR, o garantinis mokestis yra 42 EUR.
Kokios pagrindinės turto būklės sąlygos perkant?
Nekilnojamasis turtas parduodamas esamos faktinės būklės bei pagal neatnaujintus kadastro duomenis. Turto bankas neišrašo daiktų ir netaiso kadastro duomenų.
Ar yra aiški žemės sklypo nuosavybės situacija?
Parduodami statiniai yra valstybinėje žemėje, kurioje žemės sklypas nesuformuotas. VĮ Turto bankas teisių į sklypą ar jo dalį neturi ir neperleidžia.