Parduodamas 56 kv.m. butas Vilniuje, Jūratės g. 4, pradinė kaina 124500 EUR
📝 Aprašymas
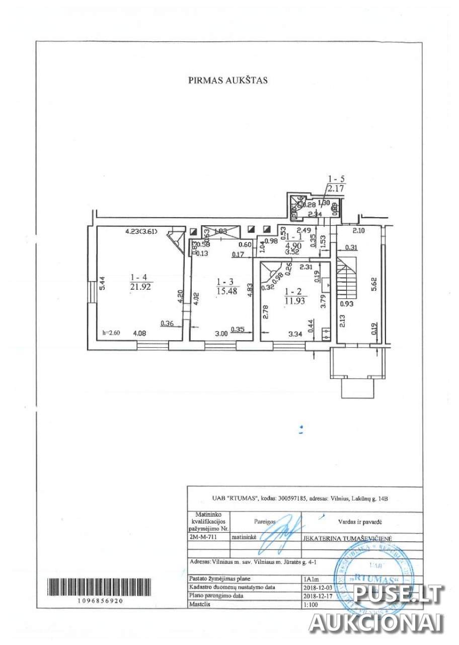
Parduodamas 1/1 dalies butas Vilniaus mieste, Jūratės gatvėje 4-1, esantis vieno aukšto medinio pastato pirmame aukšte. Objekto plotas siekia 56,40 kv. m. Pradinė objekto kaina aukcione yra 124500 EUR. Unikalus numeris 4400-0510-0345:1266.
SVARBI SĄLYGA: Nekilnojamasis turtas parduodamas esamos fizinės ir funkcinės būklės. Pastate, kuriame yra parduodama patalpa, VĮ Registrų centro išraše įregistruota žyma, kad pastatas yra avarinis. Tai nustatyta 2014-09-17 Statinio pripažinimo avariniu aktu Nr. A32-2448/14 (2.9.2.8-AP2). Pirkėjas įsipareigoja spręsti su elektros tiekimo atnaujinimu ir vidaus tinklų remontu susijusius klausimus savo lėšomis ir rizika.
KULTŪROS PAVELDO APRIBOJIMAI: Patalpos yra valstybės saugomos nekilnojamosios kultūros vertybės - Vilniaus senamiesčio, paskelbto kultūros paminklu (unikalus kodas - 16073) vizualinės apsaugos pozonio teritorijoje. Visi darbai turi būti vykdomi vadovaujantis Nekilnojamojo kultūros paveldo apsaugos įstatymu.
ELEKTROS TIEKIMO PASTABA: Skolų už elektros energiją nėra, tačiau savivaldybė neužtikrina nenutrūkstamo tiekimo ar vidaus tinklo tvarkingumo. Galimi laikini apribojimai.
Aukcionas prasideda 2026-01-26 09:00:00 ir baigiasi 2026-01-27 13:59:59. Turto apžiūra vyks 2026-01-05 15.00 val. ir 2026-01-12 15.00 val.
SVARBI SĄLYGA: Nekilnojamasis turtas parduodamas esamos fizinės ir funkcinės būklės. Pastate, kuriame yra parduodama patalpa, VĮ Registrų centro išraše įregistruota žyma, kad pastatas yra avarinis. Tai nustatyta 2014-09-17 Statinio pripažinimo avariniu aktu Nr. A32-2448/14 (2.9.2.8-AP2). Pirkėjas įsipareigoja spręsti su elektros tiekimo atnaujinimu ir vidaus tinklų remontu susijusius klausimus savo lėšomis ir rizika.
KULTŪROS PAVELDO APRIBOJIMAI: Patalpos yra valstybės saugomos nekilnojamosios kultūros vertybės - Vilniaus senamiesčio, paskelbto kultūros paminklu (unikalus kodas - 16073) vizualinės apsaugos pozonio teritorijoje. Visi darbai turi būti vykdomi vadovaujantis Nekilnojamojo kultūros paveldo apsaugos įstatymu.
ELEKTROS TIEKIMO PASTABA: Skolų už elektros energiją nėra, tačiau savivaldybė neužtikrina nenutrūkstamo tiekimo ar vidaus tinklo tvarkingumo. Galimi laikini apribojimai.
Aukcionas prasideda 2026-01-26 09:00:00 ir baigiasi 2026-01-27 13:59:59. Turto apžiūra vyks 2026-01-05 15.00 val. ir 2026-01-12 15.00 val.
📍 Objekto lokacija
📍 Vilniaus m. sav. Vilniaus m. Jūratės g. 4-1
❓ Dažnai užduodami klausimai
Kokia pradinė buto Jūratės g. 4-1 kaina ir su kokiu depozitu reikia dalyvauti?
Pradinė kaina yra 124500 EUR. Dalinis mokestis-garantinis mokestis yra 12450 EUR, registracijos mokestis 145 EUR.
Kada vyks nekilnojamojo turto aukcionas Vilniuje?
Aukcionas prasidės 2026-01-26 09:00:00 ir baigsis 2026-01-27 13:59:59.
Koks yra parduodamo buto plotas ir adresas?
Parduodamas 56,40 kv. m. butas Vilniaus mieste, Jūratės g. 4-1, esantis medinio pastato pirmame aukšte.
Kokie yra pagrindiniai apribojimai, susiję su šiuo objektu?
Pastatas yra pripažintas avariniu (2014-09-17 aktas Nr. A32-2448/14) ir yra Vilniaus senamiesčio, kuris yra kultūros paminklas, vizualinės apsaugos zonoje. Remonto darbai reglamentuojami kultūros paveldo teisės aktais.
Kada galima apžiūrėti butą Jūratės g. 4-1?
Turto apžiūra numatyta 2026-01-05 15.00 val. ir 2026-01-12 15.00 val. Būtina iš anksto suderinti laiką su atsakingu darbuotoju.
Kiek laiko yra skiriama sutarčiai sudaryti ir visai kainai sumokėti po aukciono laimėjimo?
Sutartis turi būti sudaryta per 30 dienų nuo pardavimo dienos, o visa kaina sumokėta ne vėliau kaip per 10 dienų po sutarties pasirašymo.