Kambarys Vilniuje Pelesos g. 5, 10.29 kv.m. su dalimi bendro naudojimo patalpų 18700 EUR
📝 Aprašymas
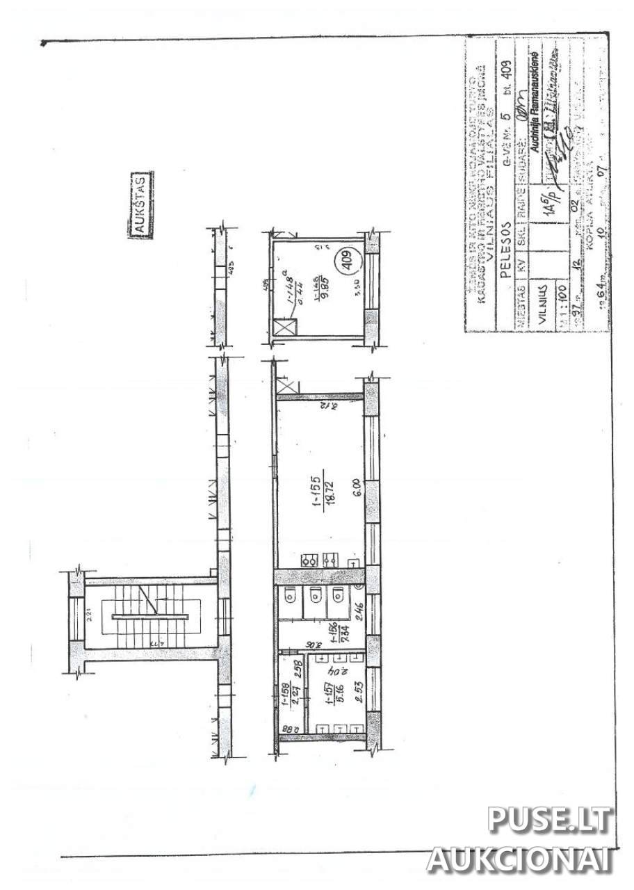
Parduodamas 10,29 kv. m. kambarys Vilniaus miesto savivaldybėje, Pelesos gatvėje 5-409. Šis nekilnojamasis turtas, turintis pradinę kainą 18700 EUR, yra vieno vieneto (1/1 dalis) nuosavybės teisėmis. Patalpos yra penkių aukštų mūrinio pastato ketvirtame aukšte, bendras plotas apima 10,29 kv. m. parduodamo ploto ir 1,71 kv. m. bendrojo naudojimo patalpų.
Objektas yra valstybės saugomo nekilnojamosios kultūros vertybės - Vilniaus senamiesčio (unikalus kodas - 16073) vizualinės apsaugos zonoje. Todėl visos su turto naudojimu, tvarkymu, statybos (remonto, rekonstrukcijos) darbais susijusios sąlygos yra griežtai reglamentuojamos Lietuvos Respublikos nekilnojamojo kultūros paveldo apsaugos įstatymu bei kitais atitinkamais teisės aktais. Patalpos parduodamos esamos būklės.
Aukciono dalyviai turi atkreipti dėmesį į elektros tiekimo sąlygas. Nors skolų už elektros energiją nėra, Savivaldybė negarantuoja nenutrūkstamo ar techniškai tvarkingo vidaus elektros tinklo. Pirkėjas prisiima visą riziką ir įsipareigojimą savo lėšomis spręsti visus su vidaus elektros tinklų remontu ir tiekimo atnaujinimu susijusius klausimus tiesiogiai bendradarbiaudamas su paslaugų teikėjais.
Aukciono registracija vyksta nuo 2026-01-19 iki 2026-01-21. Pats elektroninis aukcionas prasideda 2026-01-26 09:00:00 ir baigiasi 2026-01-27 13:59:59. Būtinas garantinis mokestis yra 1870 EUR, o registracijos mokestis - 70 EUR. Sutartis turi būti pasirašyta per 30 dienų nuo pardavimo dienos, o visa kaina sumokėta per 10 dienų po sutarties pasirašymo.
Objektas yra valstybės saugomo nekilnojamosios kultūros vertybės - Vilniaus senamiesčio (unikalus kodas - 16073) vizualinės apsaugos zonoje. Todėl visos su turto naudojimu, tvarkymu, statybos (remonto, rekonstrukcijos) darbais susijusios sąlygos yra griežtai reglamentuojamos Lietuvos Respublikos nekilnojamojo kultūros paveldo apsaugos įstatymu bei kitais atitinkamais teisės aktais. Patalpos parduodamos esamos būklės.
Aukciono dalyviai turi atkreipti dėmesį į elektros tiekimo sąlygas. Nors skolų už elektros energiją nėra, Savivaldybė negarantuoja nenutrūkstamo ar techniškai tvarkingo vidaus elektros tinklo. Pirkėjas prisiima visą riziką ir įsipareigojimą savo lėšomis spręsti visus su vidaus elektros tinklų remontu ir tiekimo atnaujinimu susijusius klausimus tiesiogiai bendradarbiaudamas su paslaugų teikėjais.
Aukciono registracija vyksta nuo 2026-01-19 iki 2026-01-21. Pats elektroninis aukcionas prasideda 2026-01-26 09:00:00 ir baigiasi 2026-01-27 13:59:59. Būtinas garantinis mokestis yra 1870 EUR, o registracijos mokestis - 70 EUR. Sutartis turi būti pasirašyta per 30 dienų nuo pardavimo dienos, o visa kaina sumokėta per 10 dienų po sutarties pasirašymo.
📍 Objekto lokacija
📍 Vilniaus m. sav. Vilniaus m. Pelesos g. 5-409
❓ Dažnai užduodami klausimai
Kokia yra šio kambario Pelesos g. 5, Vilnius, pradinė kaina ir unikalus numeris?
Pradinė kambario (unikalus Nr. 1096-4011-2016:0126) kaina yra 18700 EUR. Plotas yra 10,29 kv. m. su 1,71 kv. m. bendrojo naudojimo patalpomis.
Kada vyks elektroninis aukcionas, kuriame parduodamas šis turtas?
Aukcionas prasideda 2026-01-26 09:00:00 ir baigiasi 2026-01-27 13:59:59.
Kokia yra registracijos į aukcioną data ir kiek reikia mokėti pasiruošimui?
Registracija vyksta nuo 2026-01-19 iki 2026-01-21. Mokėtinas registracijos mokestis yra 70 EUR, o garantinis mokestis - 1870 EUR.
Kokie yra pagrindiniai apribojimai, susiję su šio turto Vilniaus senamiesčio zonoje įsigijimu?
Patalpos yra Vilniaus senamiesčio vizualinės apsaugos pozonio teritorijoje (kultūros paminklas, kodas 16073). Todėl visos statybos (remonto, rekonstrukcijos) ir tvarkymo darbai griežtai reglamentuojami Kultūros paveldo apsaugos įstatymo.
Ar pardavėjas garantuoja tvarkingą elektros tiekimą įsigyjamame kambaryje?
Ne, Savivaldybė neįsipareigoja užtikrinti nenutrūkstamo ar techniškai tvarkingo vidaus elektros tinklo. Pirkėjas įsipareigoja visus su vidaus elektros tinklų remontu ir atnaujinimu susijusius klausimus spręsti savo lėšomis ir rizika.
Koks yra nekilnojamojo turto pardavimo sutarties pasirašymo ir kainos apmokėjimo terminas po aukciono laimėjimo?
Pirkimo-pardavimo sutartis turi būti sudaryta per 30 dienų nuo aukciono vykdymo dienos, o visa kaina sumokėta ne vėliau kaip per 10 dienų po sutarties pasirašymo.