Žemės sklypas, miškas Kaišiadorių rajone, Mikalaučiškių kaimas, 7200 EUR pradinė kaina
📝 Aprašymas
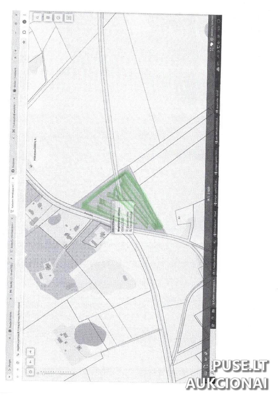
Parduodamas 0,7282 ha miško žemės sklypas Kaišiadorių rajono savivaldybėje, Mikalaučiškių kaime, kurio pradinė kaina aukcione siekia 7200 EUR. Šis sklypas yra registruotas Miškų valstybės kadastre ir pasižymi 35,1 našumo balu, kas yra svarbus rodiklis vertinant jo potencialą.
Atsižvelgiant į Lietuvos Respublikos Žemės ūkio paskirties žemės įsigijimo įstatymo nuostatas, šis ūkio paskirties žemės plotas gali būti įsigyjamas tik tų asmenų, kurie nurodyti 2-osios straipsnio 1-osios dalies nuostatose. Tai reiškia, kad pirkėjai, atitinkantys minėtus kriterijus, privalo gauti Nacionalinės žemės tarnybos padalinio, esančio pagal žemės buvimo vietą, sutikimą. Šis sutikimas yra privalomas ir turės būti pateiktas antstoliui turto pardavimo iš varžytynių akto pasirašymo metu.
Turto bendrasis plotas yra 0,7282 hektaro, visos 1/1 dalies pardavimas yra vykdomas per antstolių varžytynes. Sklypo turto identifikacijai naudojami šie kodai: Kadastro Nr. 4935/0003:60 ir Unikalus Nr. 4935-0003-0060. Turtas yra areštuotas, o pardavimas vyksta kaip Antstolių varžytynės.
Atsižvelgiant į Lietuvos Respublikos Žemės ūkio paskirties žemės įsigijimo įstatymo nuostatas, šis ūkio paskirties žemės plotas gali būti įsigyjamas tik tų asmenų, kurie nurodyti 2-osios straipsnio 1-osios dalies nuostatose. Tai reiškia, kad pirkėjai, atitinkantys minėtus kriterijus, privalo gauti Nacionalinės žemės tarnybos padalinio, esančio pagal žemės buvimo vietą, sutikimą. Šis sutikimas yra privalomas ir turės būti pateiktas antstoliui turto pardavimo iš varžytynių akto pasirašymo metu.
Turto bendrasis plotas yra 0,7282 hektaro, visos 1/1 dalies pardavimas yra vykdomas per antstolių varžytynes. Sklypo turto identifikacijai naudojami šie kodai: Kadastro Nr. 4935/0003:60 ir Unikalus Nr. 4935-0003-0060. Turtas yra areštuotas, o pardavimas vyksta kaip Antstolių varžytynės.
📍 Objekto lokacija
📍 Kaišiadorių r. sav. Mikalaučiškių k.
❓ Dažnai užduodami klausimai
Kokia žemės sklypo pagrindinė informacija ir kaina?
Parduodamas 0,7282 ha miško sklypas Kaišiadorių r. sav., Mikalaučiškių k., su 35,1 našumo balu. Pradinė aukciono kaina yra 7200 EUR.
Kada vyks žemės sklypo aukcionas?
Aukcionas prasideda 2025-11-27 11:43:16 ir baigiasi 2025-12-29 11:43:59.
Kokie yra unikalūs ir kadastriniai šio miško sklypo identifikatoriai?
Kadastro Nr.: 4935/0003:60, Unikalus Nr.: 4935-0003-0060.
Kokie apribojimai taikomi įsigyjant šį žemės ūkio paskirties sklypą?
Sklypą gali įsigyti tik LR Žemės ūkio paskirties žemės įsigijimo įstatymo 2 straipsnio 1 dalyje nurodyti asmenys, gavę Nacionalinės žemės tarnybos sutikimą, kurį reikia pateikti akto pasirašymo metu.
Kokia yra parduodama turto dalis?
Parduodama visa 1/1 dalis minėto žemės sklypo.
Kas organizuoja šį turto pardavimą varžytynėse?
Varžytynes organizuoja Antstolis Darius Jonaitis, atstovaujamas Antstolio Dariaus Jonaičio kontoros.