Nekilnojamas turtas Ignalinos rajone: 35.63 kv.m butas Didžiasalyje nuo 71 EUR
📝 Aprašymas
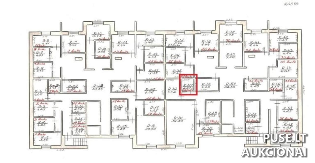
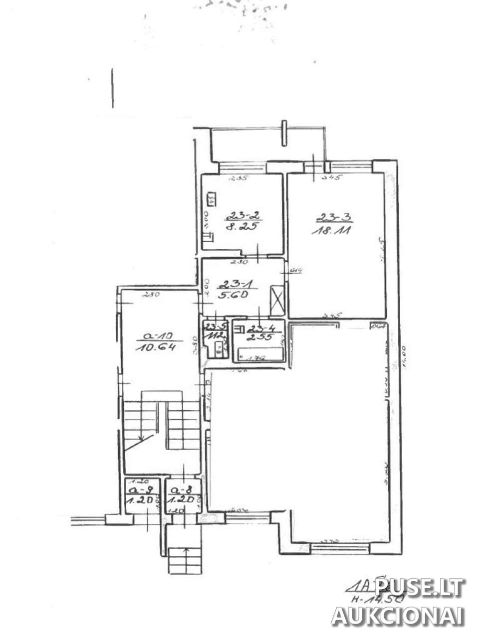
Parduodamas 35.63 kv. m bendro ploto butas su 2.37 kv. m rūsiu (kodas R-33) Ignalinos rajono savivaldybėje, Didžiasalio kaime, Dumblio g. 1-23, parduodamas per Turto banko aukcioną. Šis pirminio tipo būstas yra parduodamas esamos fizinės ir funkcinės būklės, todėl pirkėjas turi įvertinti turto realią padėtį. VĮ Turto bankas neprisiima atsakomybės nustatyti aktualią nekilnojamojo turto kadastro duomenų būklę ir neprivalo iškraustyti jame esančių daiktų. Visiškai nuosavybės teisė 1/1 dalis parduodama už pradinę kainą 71 EUR.
Svarbu atkreipti dėmesį, kad parduodamas butas yra gyvenamajame name, kuris yra valstybinėje žemėje, kurios sklypas nėra suformuotas, todėl teisės į žemės sklypą neperleidžiamos. Minėtas gyvenamasis namas (ženklintas 1Ū5/b) yra neeksploatuojamas ir užkonservuotas, visos komunikacijos yra atjungtos. Tai yra investavimo galimybė, reikalaujanti papildomų lėšų atnaujinimui ir komunikacijų prijungimui.
Pradinis aukcionas vyks nuo 2026-01-12 09:00:00 iki 2026-01-13 13:59:59. Registracija dalyvavimui priimama nuo 2026-01-05 00:00:00 iki 2026-01-07 23:59:59. Būtina sumokėti 7 EUR garantinį mokestį ir 1 EUR registracijos mokestį, kad būtų galima dalyvauti aukcione.
Objekto unikalaus numeris yra 4595-8001-5014:0021. Pirkimo-pardavimo sutarčių projektai yra prieinami nuorodoje, o dėl detalesnės informacijos galima kreiptis į nurodytus kontaktus.
Svarbu atkreipti dėmesį, kad parduodamas butas yra gyvenamajame name, kuris yra valstybinėje žemėje, kurios sklypas nėra suformuotas, todėl teisės į žemės sklypą neperleidžiamos. Minėtas gyvenamasis namas (ženklintas 1Ū5/b) yra neeksploatuojamas ir užkonservuotas, visos komunikacijos yra atjungtos. Tai yra investavimo galimybė, reikalaujanti papildomų lėšų atnaujinimui ir komunikacijų prijungimui.
Pradinis aukcionas vyks nuo 2026-01-12 09:00:00 iki 2026-01-13 13:59:59. Registracija dalyvavimui priimama nuo 2026-01-05 00:00:00 iki 2026-01-07 23:59:59. Būtina sumokėti 7 EUR garantinį mokestį ir 1 EUR registracijos mokestį, kad būtų galima dalyvauti aukcione.
Objekto unikalaus numeris yra 4595-8001-5014:0021. Pirkimo-pardavimo sutarčių projektai yra prieinami nuorodoje, o dėl detalesnės informacijos galima kreiptis į nurodytus kontaktus.
📍 Objekto lokacija
📍 Ignalinos r. sav. Didžiasalio k. Dumblio g. 1-23
❓ Dažnai užduodami klausimai
Kokia nekilnojamojo turto pradinė kaina aukcione?
Nekilnojamojo turto (35.63 kv. m butas su rūsiu) pradinė kaina yra 71 EUR.
Kada baigiasi aukcionas šiam butui Ignalinos rajone?
Aukcionas baigiasi 2026-01-13 13:59:59.
Kur yra parduodamas turtas?
Turtas yra Ignalinos r. savivaldybėje, Didžiasalio kaime, Dumblio g. 1-23.
Kokie papildomi mokesčiai reikalingi dalyvaujant aukcione?
Reikalingas 7 EUR garantinis mokestis ir 1 EUR registracijos mokestis.
Kokios yra pagrindinės turto būklės sąlygos?
Butas parduodamas esamos fizinės ir funkcinės būklės. Namas yra neeksploatuojamas, užkonservuotas ir visos komunikacijos yra atjungtos.
Ar aukciono metu perleidžiamos teisės į žemės sklypą?
Ne, teisės į žemės sklypą neperleidžiamos, nes namas yra valstybinėje žemėje, kurios sklypas nesuformuotas.