Parduodamas 89.11 kv.m. butas su rūsio patalpomis Šilutės r. sav., Rusnėje, Neringos g. 1C-2, pradinė kaina 73102 EUR
📝 Aprašymas
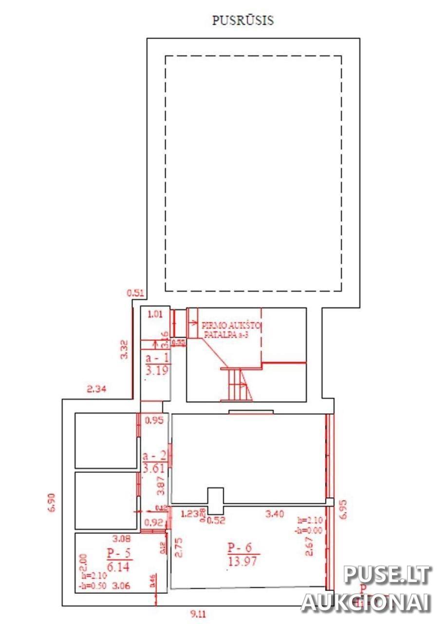
Šiuo metu skelbiamas Valstybės įmonės Turto bankas aukcionas parduoti 1/1 dalį nekilnojamojo turto – buto su papildomomis rūsio patalpomis ir dalimi bendro naudojimo patalpų bei žemės sklypo Šilutės rajono savivaldybėje, Rusnės mieste, Neringos g. 1C-2. Bendra buto/patalpos ploto dalis, apimanti ir dalį bendro naudojimo erdvių, yra 89.11 kv. m. Prie buto taip pat priskiriamos pusrūsio patalpos P-5 (6.14 kv. m) ir P-6 (13.97 kv. m). Visas parduodamas kompleksas apima ir 3723/13300 dalis inžinerinių statinių – tvoros, unikalus numeris 8897-1000-8022, bei 0.0575 ha dalį iš 0.1830 ha žemės sklypo (unikalus numeris 8854-0003-0094, adresu Neringos g. 1C, Rusnė).
Buto pardavimo pradinė kaina yra nustatyta 73102 EUR. Aukcionas vyks nuo 2026-01-12 09:00:00 iki 2026-01-13 13:59:59. Dalyvių registracija vyks nuo 2026-01-05 00:00:00 iki 2026-01-07 23:59:59. Garanto mokestis, reikalingas dalyvavimui, sudaro 7310 EUR, o registracijos mokestis yra 60 EUR.
Svarbu atkreipti dėmesį į specifines objekto naudojimo sąlygas. Nekilnojamasis turtas parduodamas esamos fizinės ir funkcinės būklės, Turto bankas neįsipareigoja nustatyti aktualios kadastro būklės ar iškraustyti jame esančių daiktų. P-5 ir P-6 patalpose yra bendrosios pastato komunikacijos - elektros ir vandentiekio įvadai. Naujasis savininkas privalės neterminuotai užtikrinti patekimą prie šių bendro naudojimo komunikacijų. Be to, kol bus įrengti atskiri skaitliukai, naujasis savininkas bus atsakingas už elektros ir vandens perdavimą subabonentams pagal pastato sutartis. Nuotekų šulinys yra neeksploatuojamas ir prastos būklės; susitarimai dėl jo naudojimo tarp bendraturčių nėra sudaryti.
Aukciono laimėtojas privalės pasirašyti žemės sklypo ir tvoros naudojimosi tvarką, kuri nustatys individualų 1C-2 buto savininko naudojimąsi žemės dalimi B ir jai priklausančia tvoros dalimi. Dalys A ir C bus naudojamos atitinkamai kitų bendraturčių arba bendrai. Pirkimo-pardavimo sutartyje šalys atsisakys pirmenybės teisės pirkti žemės sklypo ir tvoros dalį. Su detalesniais pirkimo-pardavimo sutarčių projektais ir naudojimosi tvarkos sąlygomis galima susipažinti nurodytose nuorodose.
Buto pardavimo pradinė kaina yra nustatyta 73102 EUR. Aukcionas vyks nuo 2026-01-12 09:00:00 iki 2026-01-13 13:59:59. Dalyvių registracija vyks nuo 2026-01-05 00:00:00 iki 2026-01-07 23:59:59. Garanto mokestis, reikalingas dalyvavimui, sudaro 7310 EUR, o registracijos mokestis yra 60 EUR.
Svarbu atkreipti dėmesį į specifines objekto naudojimo sąlygas. Nekilnojamasis turtas parduodamas esamos fizinės ir funkcinės būklės, Turto bankas neįsipareigoja nustatyti aktualios kadastro būklės ar iškraustyti jame esančių daiktų. P-5 ir P-6 patalpose yra bendrosios pastato komunikacijos - elektros ir vandentiekio įvadai. Naujasis savininkas privalės neterminuotai užtikrinti patekimą prie šių bendro naudojimo komunikacijų. Be to, kol bus įrengti atskiri skaitliukai, naujasis savininkas bus atsakingas už elektros ir vandens perdavimą subabonentams pagal pastato sutartis. Nuotekų šulinys yra neeksploatuojamas ir prastos būklės; susitarimai dėl jo naudojimo tarp bendraturčių nėra sudaryti.
Aukciono laimėtojas privalės pasirašyti žemės sklypo ir tvoros naudojimosi tvarką, kuri nustatys individualų 1C-2 buto savininko naudojimąsi žemės dalimi B ir jai priklausančia tvoros dalimi. Dalys A ir C bus naudojamos atitinkamai kitų bendraturčių arba bendrai. Pirkimo-pardavimo sutartyje šalys atsisakys pirmenybės teisės pirkti žemės sklypo ir tvoros dalį. Su detalesniais pirkimo-pardavimo sutarčių projektais ir naudojimosi tvarkos sąlygomis galima susipažinti nurodytose nuorodose.
📍 Objekto lokacija
📍 Šilutės r. sav. Rusnės mstl. Neringos g. 1C-2
❓ Dažnai užduodami klausimai
Kokia nekilnojamojo turto pardavimo pradinė kaina ir kada vyksta aukcionas?
Pradinė kaina yra 73102 EUR. Aukcionas vyks nuo 2026-01-12 09:00:00 iki 2026-01-13 13:59:59.
Koks tikslus parduodamo buto plotas ir unikalus numeris?
Bendras buto/patalpos plotas yra 89.11 kv. m. Unikalus nekilnojamojo turto numeris sistemoje yra 4400-6538-7426:8701.
Kokie papildomi mokesčiai mokami aukcione?
Būtina sumokėti 7310 EUR garantinį mokestį ir 60 EUR registracijos mokestį.
Kada galima registruotis į turtą parduodantį aukcioną?
Registracija vyksta nuo 2026-01-05 00:00:00 iki 2026-01-07 23:59:59.
Kokios yra sąlygos dėl bendrųjų pastato komunikacijų (elektros ir vandens)?
Naujasis savininkas turės užtikrinti patekimą prie bendrųjų komunikacijų ir bus atsakingas už energijos bei vandens perdavimą subabonentams, kol šie įsirengs atskirus skaitliukus.
Ar parduodamas objektas apima dalį žemės sklypo Neringos g. 1C?
Taip, parduodama 0.0575 ha dalis iš 0.1830 ha žemės sklypo (unikalus nr. 8854-0003-0094). Laimėtojas pasirašys naudojimosi tvarką, pagal kurią bus priskirta dalis B žemės sklypo.
Koks yra objekto adresas ir kur galimą jį apžiūrėti?
Adresas yra Šilutės r. sav., Rusnės mstl., Neringos g. 1C-2. Apžiūros organizuojamos iš anksto individualiai suderinus laiką iki registracijos pradžios.