Sodyba Akmenės rajone Kinkiuose su 0.2919 ha sklypu - pradinė kaina 10638 EUR
📝 Aprašymas
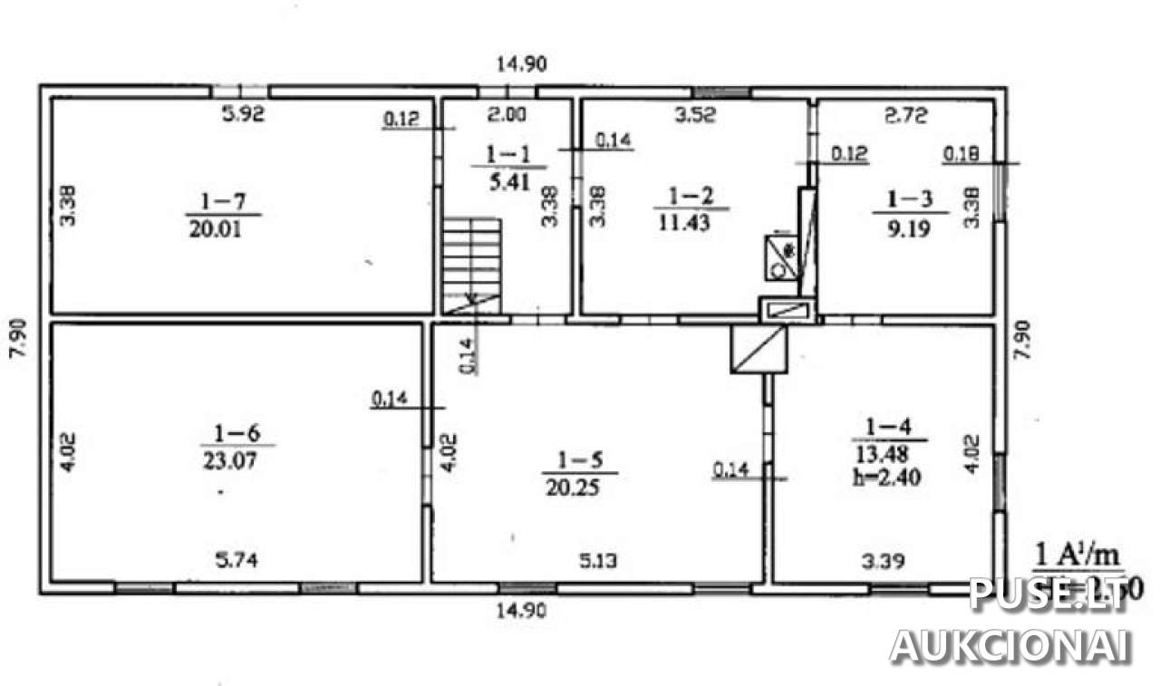
Parduodamas gyvenamasis namas su ūkiniais pastatais ir 0.2919 ha žemės sklypu Akmenės rajone, Kinkiu II kaime, Smilgų g. 14, per Turto banko elektroninį aukcioną su pradine kaina 10638 EUR.
Visas parduodamas kompleksas apima gyvenamąjį namą (102.84 kv. m., unikalus Nr. 3292-9001-6016), Ūkinį pastatą (užstatytas plotas 170.00 kv. m., unikalus Nr. 3292-9001-6027), Sandėlį (15.00 kv. m., unikalus Nr. 3292-9001-6038), kitą Sandėlį (7.00 kv. m., unikalus Nr. 3292-9001-6049), Daržinę (94.00 kv. m., unikalus Nr. 3292-9001-6052) bei Kiemo statinius (šulinys, lauko tualetas, stoginė 6I1ž, unikalus Nr. 3292-9001-6066). Prie pastatų priklauso 0.2919 ha žemės sklypas (unikalus Nr. 3205-0009-0023).
Svarbios pardavimo sąlygos: Turtas parduodamas esamos fizinės ir funkcinės būklės bei pagal esamus kadastro duomenis. Ūkinio pastato (plane pažymėto 2I1p) langas yra užmūrytas. VĮ Turto bankas neturi informacijos apie rekonstrukcijos datą ar teisėtumą ir neįsipareigoja nustatyti ar registruoti aktualios kadastro būklės. Pirkėjui rekomenduojama išnagrinėti visas su tokios būklės pirkimu susijusias teisines ir ekonomines rizikas bei atlikti apžiūrą vietoje.
Papildomos sąlygos nurodo, kad inžinierinis statinys (lauko tualetas) neatitinka įrengimo ir eksploatavimo teisės aktų reikalavimų. VĮ Turto bankas neatsako už jokius nuostolius dėl statinio trūkumų, neatitikimo teisės aktams ar privalomų leidimų nebuvimo. Taip pat, VĮ Turto bankas neįsipareigoja iškraustyti jame esančių daiktų.
Aukciono registracija vyksta nuo 2026-01-05 ir baigiasi 2026-01-07 23:59:59. Pats aukcionas prasideda 2026-01-12 09:00:00 ir baigiasi 2026-01-13 13:59:59. Garantinis mokestis yra 1063 EUR, o registracijos mokestis – 40 EUR. Visas turtas parduodamas 1/1 dalimis.
Visas parduodamas kompleksas apima gyvenamąjį namą (102.84 kv. m., unikalus Nr. 3292-9001-6016), Ūkinį pastatą (užstatytas plotas 170.00 kv. m., unikalus Nr. 3292-9001-6027), Sandėlį (15.00 kv. m., unikalus Nr. 3292-9001-6038), kitą Sandėlį (7.00 kv. m., unikalus Nr. 3292-9001-6049), Daržinę (94.00 kv. m., unikalus Nr. 3292-9001-6052) bei Kiemo statinius (šulinys, lauko tualetas, stoginė 6I1ž, unikalus Nr. 3292-9001-6066). Prie pastatų priklauso 0.2919 ha žemės sklypas (unikalus Nr. 3205-0009-0023).
Svarbios pardavimo sąlygos: Turtas parduodamas esamos fizinės ir funkcinės būklės bei pagal esamus kadastro duomenis. Ūkinio pastato (plane pažymėto 2I1p) langas yra užmūrytas. VĮ Turto bankas neturi informacijos apie rekonstrukcijos datą ar teisėtumą ir neįsipareigoja nustatyti ar registruoti aktualios kadastro būklės. Pirkėjui rekomenduojama išnagrinėti visas su tokios būklės pirkimu susijusias teisines ir ekonomines rizikas bei atlikti apžiūrą vietoje.
Papildomos sąlygos nurodo, kad inžinierinis statinys (lauko tualetas) neatitinka įrengimo ir eksploatavimo teisės aktų reikalavimų. VĮ Turto bankas neatsako už jokius nuostolius dėl statinio trūkumų, neatitikimo teisės aktams ar privalomų leidimų nebuvimo. Taip pat, VĮ Turto bankas neįsipareigoja iškraustyti jame esančių daiktų.
Aukciono registracija vyksta nuo 2026-01-05 ir baigiasi 2026-01-07 23:59:59. Pats aukcionas prasideda 2026-01-12 09:00:00 ir baigiasi 2026-01-13 13:59:59. Garantinis mokestis yra 1063 EUR, o registracijos mokestis – 40 EUR. Visas turtas parduodamas 1/1 dalimis.
📍 Objekto lokacija
📍 Akmenės r. sav. Kinkių II k. Smilgų g. 14
❓ Dažnai užduodami klausimai
Kokia yra gyvenamojo namo ir ūkinių pastatų su sklypu pardavimo pradinė kaina?
Nekilnojamojo turto komplekso pradinė kaina aukcione yra 10638 EUR.
Kada baigiasi registracija į aukcioną laiduojančią šio objekto įsigijimą?
Aukciono dalyvių registracija baigiasi 2026-01-07 23:59:59, o pats aukcionas vyks nuo 2026-01-12 09:00:00 iki 2026-01-13 13:59:59.
Koks yra priskiriamas garantinis mokestis ir registracijos mokestis?
Garantinis mokestis yra 1063 EUR, o registracijos mokestis – 40 EUR.
Kokiame mieste/rajone yra parduodamas turtas ir koks yra objekto unikalus numeris?
Turtas yra Akmenės r. sav., Kinkiuose II k., Smilgų g. 14. Gyvenamojo namo unikalus Nr. yra 3292-9001-6016.
Kokias juridines rizikas turiu žinoti apie statinių būklę?
Turtas parduodamas esamos būklės. Ūkinio pastato langas užmūrytas, o lauko tualetas neatitinka teisės aktų reikalavimų. Pardavėjas neįsipareigoja nustatyti aktualios kadastro būklės.
Koks yra bendras žemės sklypo plotas, priskirtas kompleksui?
Žemės sklypas, priskirtas šiam kompleksui, yra 0.2919 ha (unikalus Nr. 3205-0009-0023).